第2回 POLUS‐ポラス‐木造住宅インターハイ 開催のお知らせ
ポラスグループ ポラス株式会社

ポラスグループ ポラス株式会社(本社:埼玉県越谷市 代表取締役:中内晃次郎)は2022年11月30日(水)より、15歳以上18歳未満かつ高等学校、工業高等学校、高等専門学校等、各種学校の学生(2023年4月1日時点)を対象に、「第2回 POLUS-ポラス-木造住宅インターハイ」を開催いたします。
本インターハイは、「ものづくり」の要素に重点を置き、模型製作を作品提出の条件に入れることでアイデアを具現化させるものとなっています。第1回目となる昨年は、140点ものご応募をいただき、テーマに対して様々な切り口で自由に表現された作品群から各賞が決定しました。
第2回は「屋根から考える暮らし」をテーマに、魅力的なアイデアを募集いたします。本インターハイを通し、今後の木造建築・ものづくり全般の技術者又は技能者の育成に寄与していきたいと考えております。
受賞作品は、2023年5月中旬に公式サイトにて発表いたします。
公式サイト:https://kenchiku.co.jp/polus-inter-high/

| 【テーマ】:「屋根から考える暮らし」 屋根から暮らしを創造する。 それは、雨や雪、太陽など天気との対話によるデザインでもあるし、塔のように建物の一番高い部分のデザインでもあるし、街並みや村の風景のように、集まり方のデザインでもある。 屋根を考えることは、その屋根をきっかけに、そこでどんな暮らしをデザインするかを考えることだ。 屋根の大きさも形状も勾配も素材も登れるかどうかも、全て自由に捉え(これ屋根なの?くらい、これまでの当たり前を崩し てOKです)、その屋根らしい暮らしを考えてもらいたい。 |
<応募に関するお問い合わせ先>
POLUS-ポラス-木造住宅インターハイ 事務局 (株)建報社内
公式サイト:https://kenchiku.co.jp/polus-inter-high/
「第2回 POLUS-ポラス-木造住宅インターハイ」概要
■主催 ポラス株式会社〈 https://www.polus.co.jp/ 〉
■共催 ポラスハウジング協同組合
■テーマ 「屋根から考える暮らし」
■審査員
西田 司 建築家・東京理科大学准教授
小林 保博 POLUS 社内審査グループ代表
■賞
最優秀賞 1 点 賞状・図書カード3万円
優秀賞 1 点 賞状・図書カード 1 万円 ポラスハウジング協同組合賞 3 点 賞状・図書カード5千円
佳作 5 点 賞状・図書カード3千円
造形・造作優秀 5選 5 点 賞状・図書カード千円
奨励賞 20 点 賞状
■応募期間
2022年11月30日(水)~2023年4月21日(金)
■作品応募締切日
2023年4月21日(金)消印有効
※応募作品は郵便または宅配便を用い事務局宛に送付。持参は受け付けません。
■応募資格
2023年4月1日時点で、15歳以上18歳未満かつ高等学校、工業高等学校、高等専門学校等、 各種学校の学生であること。
■作品条件
内容:「屋根から考える暮らし」のテーマに沿った作品
構造:木造軸組工法 規模:住宅一棟(2階建て)
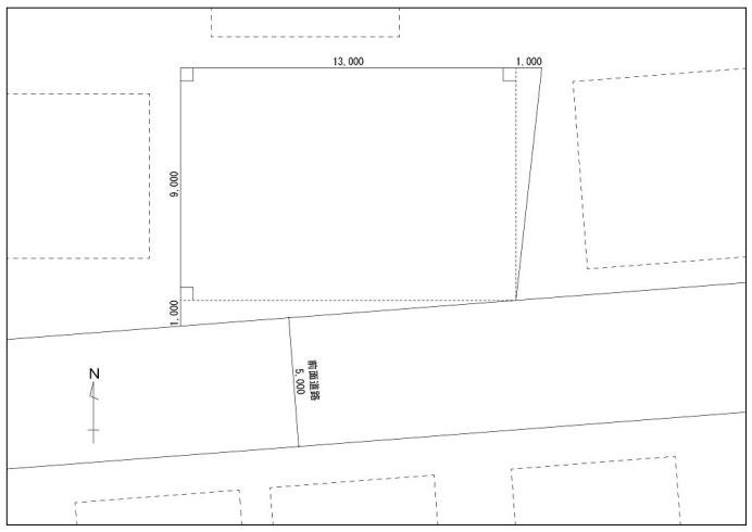
建蔽率60%・容積率100% 敷地:別図参照
■登録方法
公式サイト〈 https://kenchiku.co.jp/polus-inter-high/ 〉より応募登録を行ってください。
■発表
2023年5月中旬に公式サイトにて入賞結果を発表します。
【別図】敷地:図のような環境にある区画です。

このプレスリリースには、メディア関係者向けの情報があります
メディアユーザーログイン既に登録済みの方はこちら
メディアユーザー登録を行うと、企業担当者の連絡先や、イベント・記者会見の情報など様々な特記情報を閲覧できます。※内容はプレスリリースにより異なります。
すべての画像