コモンスペースを介して「街と混ざる」賃貸住宅『Well-Blend阿佐ヶ谷』開業
本シリーズは、19棟1,201室(2022年3月時点)のシェア型賃貸住宅『シェアプレイス』シリーズの企画運営ノウハウ(※)を活かして生まれた賃貸住宅です。
※多機能性のある空間構成、ほどよい距離感の交流が生まれるハード・ソフトの設計、イベントを通じた地域プレイヤーとの協働、地域住民にとってサードプレイスとなる場づくり等

- 『Well-Blend』シリーズとは

シェアプレイスとWell-Blendの違い
『Well-Blend阿佐ヶ谷』の専有部代表プラン平面図
- コンセプトは「街と混ざる」
在宅時間や自宅周辺で過ごす時間の充実へ注目が集まっている昨今。身近な街の中に、サードプレイスを求める人も増えたのではないでしょうか。『Well-Blend阿佐ヶ谷』では、住まいでありながら街の中のサードプレイスとも感じられる仕組みをもたせます。ジャズや文学のカルチャーといった要素と多世代が心地よく混ざる阿佐ヶ谷のように、街の要素や人とゆるやかにつながり、入居者が街を楽しみ、街への帰属感や愛着を持てる暮らしを目指します。
- 『Well-Blend阿佐ヶ谷』の特徴
『Well-Blend阿佐ヶ谷』は多機能交流型賃貸住宅として、住むだけの機能ではなく暮らしを豊かにする機能を備えています。
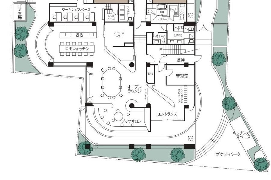
コモンスペース紹介
・オープンラウンジ:食事や作業など様々な用途やシーンで利用できるラウンジ。キッチンカーでのテイクインにより、入居者以外の方もご利用いただけます。
・ブックサロン:『Well-Blend阿佐ヶ谷』のために選書された本を楽しめるサロン空間。株式会社ひらくにより、「街」「くらし」「人」といったテーマで本の選書をしています。入居者以外の方もご利用いただけます。
・コモンキッチン:調理器具や食器を備えた、広々としたキッチンスペース。
・ワーキングスペース :仕事や作業に集中したいときに使える半個室空間。自室以外でも、Wi-Fiを完備した作業スペースが確保できます。
・ルーフテラス:アウトドアファニチャーを設えた外部空間。Wi-Fi完備で、PC作業も可能。
・サウナ・バスルーム:1人用フィンランド式サウナとユニットバス(※有料)。家にいながら手軽にサウナを楽しめます。
1F共用部平面図
特徴②|デイリーズカフェによる食事提供で「街と混ざる」
中央線沿線エリアで飲食店舗やライフスタイルショップを展開する、運営パートナーの有限会社デイリーズが運営する「デイリーズカフェ」。オープンラウンジにあるカウンターにて、健康的な食事を販売します。メニューは朝食・昼食・夕食に加え、ドリンクメニューも提供予定。入居者には限定価格で、朝食は和食・洋食・朝カレー、昼食・夕食は日替わりワンプレートや日替わりサンドイッチやカレーを提供。毎日楽しんでいただけるよう、種類豊富にご用意しています。
建物前のアプローチに設けたポケットパークには、キッチンカーも出店します。ここでは、食事を楽しんだり、ベンチで休憩をしたりと、街と『Well-Blend阿佐ヶ谷』を媒介し、「街と混ざる」場として機能します。また、デイリーズの商品を購入した方は、入居者以外の方もオープンラウンジ・ブックサロンを利用することができます。この仕組みが、『Well-Blend阿佐ヶ谷』の入居者と地域住民の方をゆるやかにつなぐ役割を担い、街への帰属感や愛着を持つきっかけになります。
ポケットパーク
メニューイメージ
特徴③|「街と混ざる」を表現する空間デザイン
空間デザインは、株式会社ミハデザイン一級建築士事務所が手がけ、既存の独身寮をコンセプトである「街と混ざる」を体現する計画としました。また、専有部4室の造作家具のデザインも担当しています。
■株式会社ミハデザイン一級建築士事務所 コメント

オープンラウンジやブックサロンは、入居者に限らず街にも開放され、「食べる・集う・働く」などの様々な活動に使用されます。
円形カウンター、壁に添うように置かれたベンチ、多様な形・数に組み合わせが変えられるテーブル、大勢で囲むことができるダイニングテーブルなど、建物の形状・個性を活かし、際立たせながらも様々な使い方・場面に対応できるよう工夫しています。
また、ピンクグレイを基調としたラウンジは「阿佐ヶ谷らしい」雰囲気を体現するよう、文学的で包み込まれるようなあたたかさを感じさせる空間です。
個々の住空間をきちんと確保しつつも、豊かな木々の庭を介して街とつながり、穏やかに過ごし語らえるこの「プライベートとパブリックの間のやわらかな場」が、様々な交流と共に、街と混ざり合っていくことを意図しています。
ブックサロン
造作家具のデザインを担当した専有部
特徴④|環境配慮への取り組み
リビタは、事業・プロジェクトを通してサステイナブルで豊かな未来づくりを目指しています。本プロジェクトにおいても、リノベーションにより、新築に比べCO2の排出量や廃棄物を大幅に低減しています。また、全住戸に熱交換システムを採用。一部住戸には既存建物のサッシ部分にインナーサッシを設置することで省エネルギー化を実現しています。プラスチックごみを削減する取り組みの一環として、施設内に給水機を設置するなど、持続可能な社会に向けた取り組みを行っています。
- 物件概要

■事業関係者
・建物所有者:ジェイアール東海不動産株式会社
・企画・プロデュース・統括設計・運営管理:株式会社リビタ
・設計・監理:株式会社ベイス
・デザイン監修:株式会社ミハデザイン一級建築士事務所
・植栽デザイン :有限会社ブロカント
・リノベーション施工:株式会社ストラクス
・グラフィックデザイン:高い山株式会社
・プロモーションパートナー:タシリンゴ合同会社
・運営パートナー:有限会社デイリーズ
・ブックサロン選書:株式会社ひらく
- 株式会社リビタについて
社会、くらしをリノベーションし、あなたと環境にとって豊かな未来をつくる会社として設立。「次の不動産の常識をつくり続ける」を経営ビジョンに掲げ、一棟、一戸単位のマンションや戸建てのリノベーション分譲事業やリノベーションコンサルティング事業、投資事業、シェア型賃貸住宅や商業施設、公共施設の企画・運営、PM・サブリース事業、ホテル事業、オフィス事業を手がけています。
現在、一棟まるごとリノベーション事業の企画・分譲供給実績は55棟1,670戸(2022年3月時点)、また『シェアプレイス』シリーズをはじめとするシェア型賃貸住宅は、都内近郊に19棟1,201室を運営中(2022年3月時点)。リノベーション分譲事業では、100平米超の面積を有し、立地と資産価値にこだわったマンションを紹介する『R100 TOKYO』をはじめ、一戸単位のマンションリノベーションの企画・供給実績は1,097戸(2022年3月時点)。その他、東京内神田のシェア型複合施設『theC』、大人の部活がうまれる街のシェアスペース『BUKATSUDO』など、暮らしの概念を「働く」「遊ぶ」「学ぶ」などにも領域を広げたプロジェクトの企画・プロデュース・運営も多く手がけています。2016年3月にはホテル事業を開始、全国で『THE SHARE HOTELS』を9店舗展開。また、2021年よりオフィス事業を本格化し、暮らしを自由にするオフィス『12』シリーズを展開。
名称:株式会社リビタ
設立:2005年(2012年より京王グループ)
代表取締役社長:川島純一
住所:東京都目黒区三田1‐12‐23 MT2ビル
URL:https://www.rebita.co.jp
-------------------------
■お問い合わせ、ご質問、取材のお申込み、画像・素材のお貸し出し
株式会社リビタ PRコミュニケーションデザイン部 田村・石川
pr@rebita.co.jp
-------------------------
このプレスリリースには、メディア関係者向けの情報があります
メディアユーザー登録を行うと、企業担当者の連絡先や、イベント・記者会見の情報など様々な特記情報を閲覧できます。※内容はプレスリリースにより異なります。
すべての画像
