アイダ設計 注文住宅標準仕様「断熱と耐震の家BRAVO」リニューアル
断熱等級5 耐震等級3 創エネ・蓄エネ搭載

注文住宅標準仕様『断熱と耐震の家 BRAVO(ブラーボ)2』は昨今自然災害が多発しているなか、安心に暮らせる「耐震性」と、省エネかつ、健康に暮らすための「断熱性」を高めた商品です。今回のリニューアルでは、標準的なプランでの性能値の表示、さらにリース契約での太陽光発電システム・蓄電池を標準採用しました。注文住宅標準仕様での再生可能エネルギー導入は、2050年カーボンニュートラル実現に向け、当社の取り組みとして大きな一歩と捉えています。
アイダ設計はこれからも変わりゆくライフスタイルに柔軟に対応し、お客様へご満足いただける住まいづくりのご提案に、より一層努めてまいります 。
(『断熱と耐震の家 BRAVO 2』 詳細HP : https://www.aidagroup.co.jp/order/view/1)
【『断熱と耐震の家 BRAVO(ブラーボ)2』の特長】
『断熱と耐震の家 BRAVO(ブラーボ)』は、「理想の住まい」に求められる「断熱性」「耐震性」を高め、創エネ・蓄エネを搭載、新たなライフスタイルにフィットした快適な住まいを提供します。

高性能グラスウール等の断熱材、アルゴンガス入り複層ガラス・アルミ樹脂複合サッシなど、高い断熱性により、家全体を包み込む保温効果が生まれ、家の中の温度を安定させます。


耐力面材MDF
壁全体で地震力・風圧力を受け止め、集中してかかる力をバランスよく分散し、接合部への力の集中を緩和します。

初期費用0円ではじめられる、リース型の太陽光発電システムと蓄電池を搭載。蓄電池は日々の節約としても、非常時の電源としても頼りになります。

長期に渡り住まいを守る15・16㎜サイディング。自然の風合いを活かし耐久性のある塗装の床材。高機能シャワー搭載のシステムバス。など、快適性を高めた充実の設備をラインナップ。
(『断熱と耐震の家 BRAVO 2』 詳細HP : https://www.aidagroup.co.jp/order/view/1)
【『断熱と耐震の家 BRAVO(ブラーボ)2』の特長】
『断熱と耐震の家 BRAVO(ブラーボ)2』は、「断熱等級5(Ua値0.55)」「一次エネルギー等級6」「耐震等級3」「耐風等級2」相当の高性能な住宅となっています。※参考プランによる数値
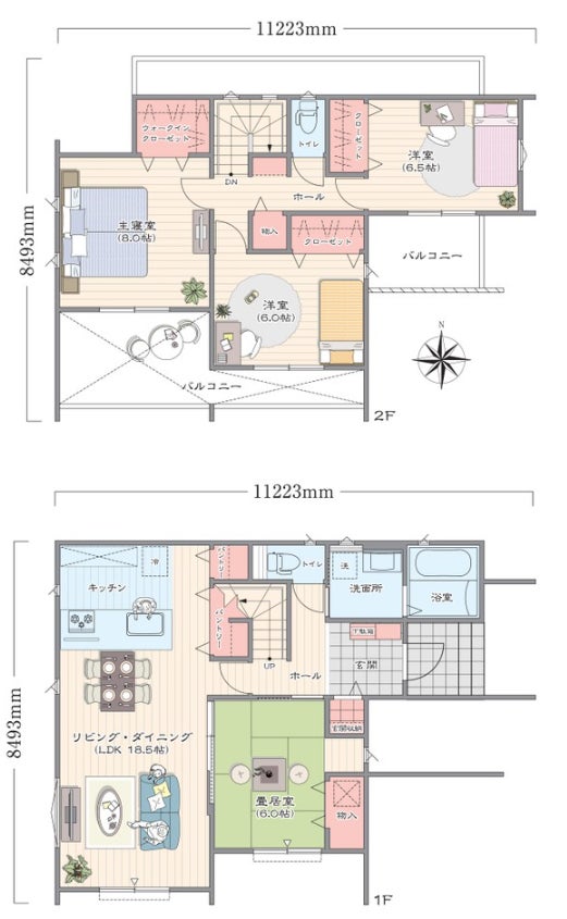
【参考プラン】4LDK 建物面積/約111.78㎡(約33.74坪)1F/62.93㎡(18.99坪) 2F/48.85㎡(14.74坪)


D-STYLE(BRAVO-H)高い断熱性と気密性により、D-STYLE PLAN02東(西)道路プラン【耐震等級3・耐風等級2(垂直積雪量74cm以下、基準風速38m/s以下、設計地耐力24kN/㎡以上)断熱等級5(UA値=0.55W/㎡K)一次エネ等級6(BEI=0.74)】
※間取り実例による数値となります。
※ZEH、耐震等級の性能評価を取得する際は、構造計算費用など別途費用が必要となります。
※建築地域や計画間取りによって、上記数値及び基準がクリアしない場合があります。
※間取りにはオプションが含まれます。
<商品概要>
商品名 :断熱と耐震の家BRAVO 2
発売日 :2023年3月1日(水)
販売エリア:関東1都6県、福島県、宮城県、新潟県、山梨県、長野県、静岡県、愛知県、
岐阜県、三重県、京都府、大阪府、広島県、福岡県、佐賀県、熊本県、鹿児島県
※沖縄県「断熱と耐震の家BRAVO 2」は仕様が異なります ※離島は除く
※多雪地域・塩害地域等エリア・条件によっては建築できない場合が御座います
<アイダ設計のSDGs>
当社は住空間を提供する企業として、木造建築やZEH住宅の促進、安定した品質の供給と技術の継承、環境に負荷をかけない家づくりなどを通じて、地域社会とともに、持続可能な社会の実現に向けた活動を実践していきます。
本リリースの取り組みは、SDGsにおける下記の目標に貢献しています。
目標7 エネルギーをみんなに そしてクリーンに
目標12 つくる責任つかう責任
目標13 気候変動に具体的な対策を

人にも環境にもやさしいZEH商品の促進
環境にやさしく快適な住宅の普及に取り組み、パッシブデザインや省エネ性能の高い住宅設備を取り入れ、再生可能エネルギーを選定して、CO2削減等による温室効果ガス抑制へ貢献しています。ZEH住宅は省エネだけでなく、高断熱・高気密でヒートショックやシックハウスなどの健康リスクを軽減し、健康寿命の延伸につながるため、そのメリットをご提案してまいります。
( アイダ設計のSDGs : https://www.aidagroup.co.jp/p/activities )
<会社概要>
社名 : 株式会社 アイダ設計
本社所在地: 〒330-0854 埼玉県さいたま市大宮区桜木町2丁目286番地
電話 : 048-650-0222(代)
代表者 : 代表取締役社長 會田 貞光
株式 : 東京証券取引所 TOKYO PRO Market (証券コード:2990)
創立 : 昭和56年1月6日
資本金 : 2億1,632万円
従業員数 : 1,051人(令和4年3月末時点)
事業内容 : 不動産業・建設業・建築設計・土地造成・プレカット加工・損害保険代理業 他
URL : https://www.aidagroup.co.jp/
このプレスリリースには、メディア関係者向けの情報があります
メディアユーザー登録を行うと、企業担当者の連絡先や、イベント・記者会見の情報など様々な特記情報を閲覧できます。※内容はプレスリリースにより異なります。
すべての画像
