第3 回 POLUS‐ポラス‐木造住宅インターハイ開催のお知らせ
ポラスグループ ポラス株式会社

ポラスグループ ポラス株式会社(本社:埼玉県越谷市、代表取締役:中内晃次郎)は、15 歳以上18 歳未満かつ高等学校、工業高等学校、高等専門学校等、各種学校の学生(2024 年4 月1 日時点)を対象に、「第3 回POLUS-ポラス-木造住宅インターハイ」を開催いたします。
本インターハイは、「ものづくり」の要素に重点を置き、模型製作を作品提出の条件に入れることでアイデアを具現化させるものとなっています。第2回目となる昨年は、117 点ものご応募をいただき、テーマに対して様々な切り口で自由に表現された作品群から各賞が決定しました。
第3 回からは新たに二部門制を導入し、「ボタニカルガーデンハウス」をテーマに2023 年11 月30 日(木)から2024 年4 月26 日(金)にかけて、建築設計に優れた作品を表彰する「設計部門」、模型の造形・造作に優れた作品を表彰する「造形・造作部門」の二部門で魅力的なアイデアを募集いたします。本インターハイを通して今後の木造建築・ものづくり全般の技術者又は技能者の育成に寄与していきたいと考えております。
受賞作品は、2024 年5 月下旬に公式サイトにて発表いたします。
公式サイト:https://kenchiku.co.jp/polus-inter-high/

【テーマ】:「ボタニカルガーデンハウス」 SDGs が広く浸透するなか、緑や森林などの環境と共生する暮らしが注目されている。またコロナを経て、自宅で仕事をしたり、住まいを都市部から環境の良い地域に移動している人もいる。その地域の植生や環境を暮らしに取り込むこと、また屋内と屋外を同じくらい大切に考えること、加えて軒下空間など半屋外の環境と暮らしを同時に考えることで、これからの暮らしのデザインが生まれる。気候や植生や風土など環境要素から、建築がどう影響を受け、その共存をどう楽しむかのデザインをボタニカルガーデンハウスとして提案してもらいたい。 |
「第3 回 POLUS-ポラス-木造住宅インターハイ」概要
■主催
ポラス株式会社〈 https://www.polus.co.jp/ 〉
■共催
ポラスハウジング協同組合、ポラテック株式会社、ポラテック東北株式会社、ポラテック富士株式会社、
ポラテック西日本株式会社、ポラテック九州株式会社
■テーマ
「ボタニカルガーデンハウス」
■審査員
設計部門 審査委員 西田 司 建築家・東京理科大学 准教授
造形・造作部門 審査委員 佐々木 昌孝 ものつくり大学 教授
総合審査委員 小林 保博 POLUS 社内審査グループ 代表
■賞
設計部門 : 建築設計に優れた作品を表彰
最優秀賞(設計部門) 1 点 賞状・図書カード3 万円
優秀賞(設計部門) 1 点 賞状・図書カード1 万円
佳作(設計部門) 5 点 賞状・図書カード3 千円
奨励賞(設計部門) 15 点 賞状
造形・造作部門 : 模型の造形・造作に優れた作品を表彰
最優秀賞(造形・造作部門) 1 点 賞状・図書カード3 万円
優秀賞(造形・造作部門) 1 点 賞状・図書カード1 万円
佳作(造形・造作部門) 5 点 賞状・図書カード3 千円
奨励賞(造形・造作部門) 15 点 賞状
■応募期間
2023 年11 月30 日(木)~2024 年4 月26 日(金)
■作品応募締切日
2024 年4 月26 日(金)消印有効
応募作品の送付は、郵便または宅配便とします。持参は受け付けません。
■応募資格
2024 年4 月1 日時点で、15 歳以上18 歳未満かつ高等学校、工業高等学校、高等専門学校等、各種学校の学生であること。
■作品条件(二部門共通)
内容:「ボタニカルガーデンハウス」のテーマに沿った作品
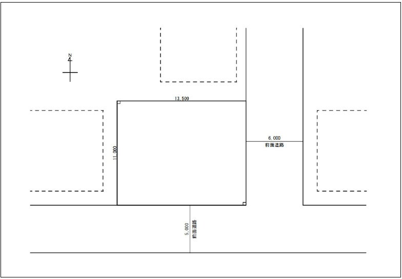
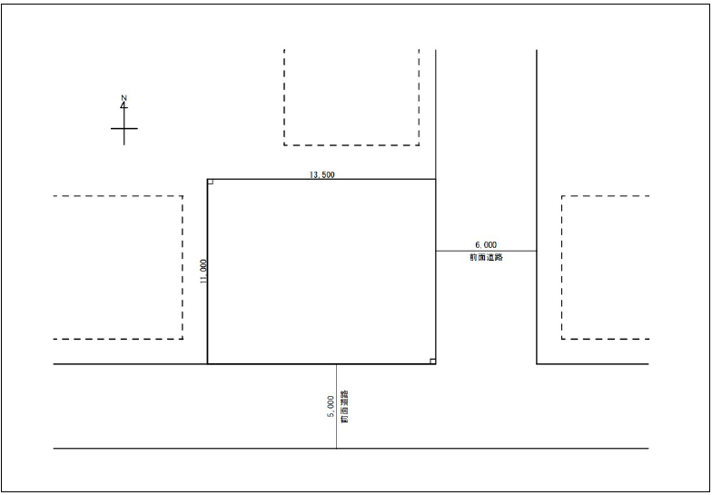
構造:木造軸組工法 / 規模:住宅一棟(2 階建て)建蔽率60%・容積率100% / 敷地:別図参照
■応募方法
公式サイト〈 https://kenchiku.co.jp/polus-inter-high/ 〉より応募登録を行ってください。
■発表
2023 年5 月下旬に公式サイトにて入賞結果を発表します。

応募に関するお問い合わせ先 POLUS-ポラス-木造住宅インターハイ事務局 polus-inter-high@kenchiku.co.jp |
【別図】敷地:図のような環境にある区画です。

このプレスリリースには、メディア関係者向けの情報があります
メディアユーザー登録を行うと、企業担当者の連絡先や、イベント・記者会見の情報など様々な特記情報を閲覧できます。※内容はプレスリリースにより異なります。
すべての画像