余白が生み出す“家族”のゆるやかなつながり ニコイチなど若年子育て世帯向けリノベーション住戸が完成!!
1月31日(月)より入居者募集開始@茶山台団地
『ニコイチ』 家族の奥行きをみつける
『リノベ45』 家族の繋がりをみつける
■お部屋のコンセプト
公社では、高齢化が進む高経年の団地に単身世帯や若年夫婦、子育て世帯などの若年層を誘引するため、2015年度から公募により建築家などの民間事業者のノウハウを活用した住戸リノベーション『ニコイチ』、『リノベ45』を供給しています。
今回は「茶山台団地で家族の風景をみつける」をテーマに、扉を設けない動線により暮らしの中で家族がゆるやかにつながるプランを実現しました。一人一人の時間や成長が家族の風景として感じられる間取りとなっています。必要な部屋を作っていくのではなく、動線となる余白と居場所を作ることで、余白部分に抜ける光と風を媒体に、家族でいる場所と個人でいる場所がゆるやかにつながるよう設計されています。
■入居募集について
入居申込受付:2022年1月31日(月)10時00分~(先着順)
募集戸数 :隣り合う2戸を1戸にするリノベーション『ニコイチ』 2戸
1住戸リノベーション 『リノベ45』 1戸
申込方法 :裏面記載のウェブサイトからインターネット申し込み
入居時期 :3月上旬予定
隣り合う2戸を1戸にするリノベーション 『ニコイチ』 2戸
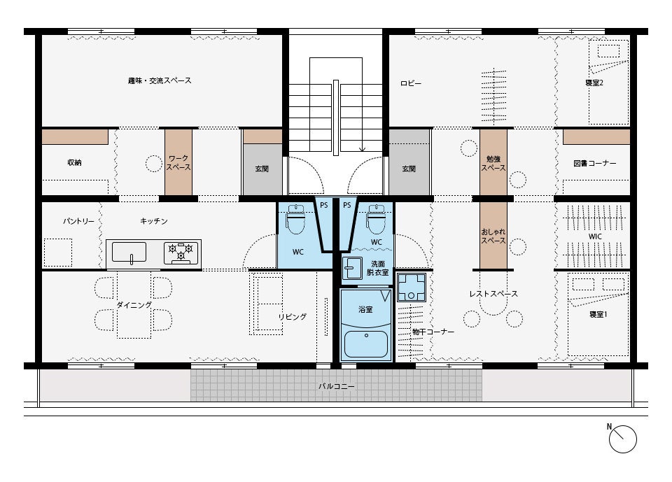
①家族の重なりをみつける
間取り:3LDK 面積:91.68㎡ 家賃:78,000円
『ニコイチ』家族の重なりをみつける 間取り図面
『ニコイチ』家族の重なりをみつける 室内写真
『ニコイチ』家族の重なりをみつける 室内写真
子どもの成長、大人の多様な働き方にあわせたプランニング
それぞれの空間をフレーム家具でつなぐことにより、空間が分断されず重なり合うことで、さまざまな場所で「家族の風景」を「重ねて」みつけることができます。子どもとの距離感は成長と共に変化していくことを想定し、親子がつかず離れずの距離感を生み出しました。また、大人のためのワークスペースやデスクは玄関やリビング、寝室に隣接して設け、多様な働き方に対応させています。
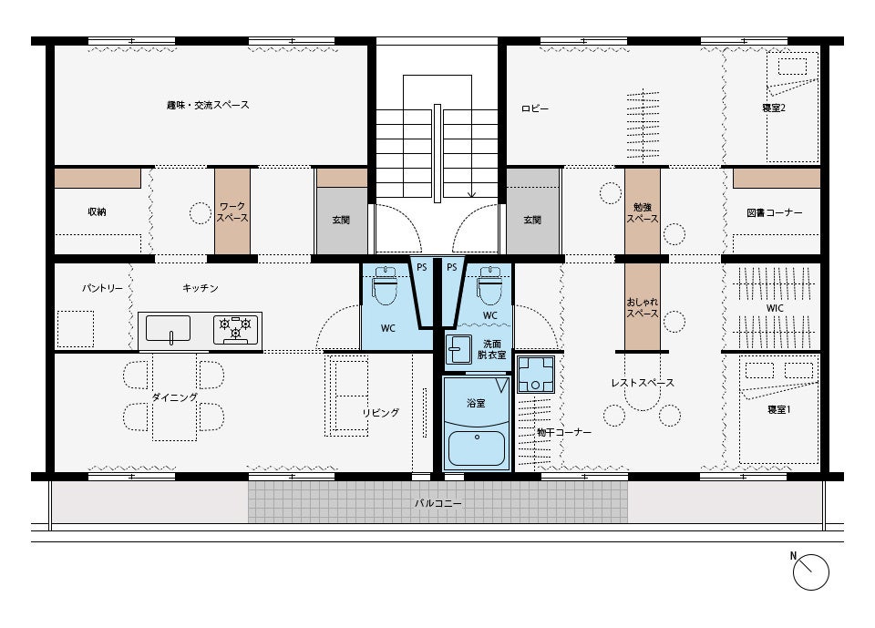
②家族の奥行きをみつける
間取り:3LDK 面積:91.68㎡ 家賃:80,000円
『ニコイチ』家族の奥行きをみつける 間取り図面
『ニコイチ』家族の奥行きをみつける 室内写真
『ニコイチ』家族の奥行きをみつける 室内写真
子どもの成長、大人の多様な働き方、近隣との交流に対応したプラン
壁によって仕切られた4つの空間をつくり、その空間を南北に通り抜ける視線の先に「奥行き」を感じながら「家族の風景」をみつけることができます。ニコイチ①プランと同様に、親子の距離感の設定と大人の多様な働き方に対応するとともに、住戸が低層階の2階に位置することから、近隣住民との積極的な交流を想定して、フリースペースを設置しています。
▼詳しくはこちら ※VRでお部屋の中をご覧いただけます。
https://2ko1.danchi-renovation.com/rent-plan/
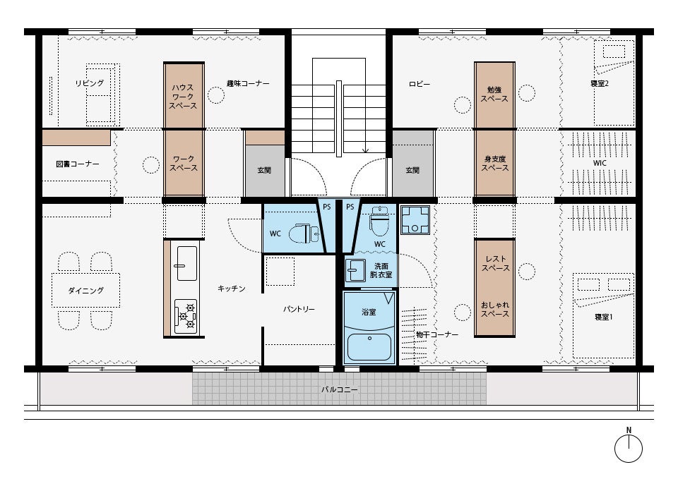
1住戸リノベーション 『リノベ45』 1戸
家族の繋がりをみつける
間取り:2LDK 面積:45.11㎡ 家賃:50,000円
『リノベ45』家族の繋がりをみつける 間取り図面
『リノベ45』家族の繋がりをみつける 室内写真
『リノベ45』家族の繋がりをみつける 室内写真
家族の気配を感じることができる大きなワンルーム
開口部やらんまを設けたり、回遊性のある大きなワンルーム状のプランとすることで、常に家族の気配が感じられ、「家族の風景」の「繋がり」をみつけることができます。また、趣味や交流、団欒やくつろぎを想定したスペースが縦横に入り混じることで、用途に縛られない自由な使い方を促します。
▼詳しくはこちら ※VRでお部屋の中をご覧いただけます。
https://renov45.danchi-renovation.com/rent-plan/
これらのリノベーション住戸は、泉北ニュータウン内に若年夫婦・⼦育て世帯向けの魅⼒的な住宅を供給し、若年層を誘引することを目的とした「堺市と⼤阪府住宅供給公社による泉北ニュータウン住⼾リノベーション促進連携事業」として実施したものです。
■設計者
STUDIO RAKKORA ARCHITECTS
京都市の建築設計事務所。
地域の特性と文化を尊重し、様々な事象との対話や探求を通して、社会に貢献する生き生きとした建築を生みます。
木村日出夫 / 一級建築士(写真 左)
木村淳子 / 一級建築士(写真 右)
▽設計者インタビュー
https://2ko1.danchi-renovation.com/STUDIORAKKORAARCHITECTS/
■オープンルーム概要
日時 :2022年1月29日(土)、30日(日)10時00分~16時00分(最終受付15時00分)
集合場所 :茶山台団地 24棟集会所(堺市南区茶山台2丁1番)
申込方法 :下記URLから事前にインターネット申し込み(完全予約制)
https://airrsv.net/renovation/calendar
※新型コロナウイルス感染症対策を実施して開催
アクセス :泉北高速鉄道「泉ケ丘」駅より徒歩約10分
オープンルーム 地図
https://www.osaka-kousha.or.jp/x-whatsnew/pdf/PressRelease_2022-1-17_2.pdf
■茶⼭台団地 概要
所在地 :堺市南区茶⼭台2丁1番・2番
⼊居開始 :1971年 4⽉
総⼾数 ︓924⼾
構造 ︓鉄筋コンクリート造 5階建
住⼾専有⾯積︓ 44 .98m² 〜 91 .68m²
交通 ︓泉北⾼速鉄道「泉ケ丘」駅より徒歩約10分
◆大阪府住宅供給公社概要
公社賃貸住宅SMALIOロゴ
所在地 :大阪市中央区今橋2丁目3番21号
事業内容 :・公社賃貸住宅SMALIO(スマリオ)等の管理・運営事業
・府営住宅管理事業(大阪府から受託)
ウェブサイト :https://www.osaka-kousha.or.jp/
SDGsロゴ
このプレスリリースには、メディア関係者向けの情報があります
メディアユーザー登録を行うと、企業担当者の連絡先や、イベント・記者会見の情報など様々な特記情報を閲覧できます。※内容はプレスリリースにより異なります。
すべての画像
