先進的な働き方改革が進む熊本に、全国展開のコワーキングスペースが九州初進出 自治体のテレワーク推進やフレックスタイム制度導入を背景に「BIZcomfort熊本城前」 2025年11月1日(土)開業
コワーキングスペース・レンタルオフィスのBIZcomfort(ビズコンフォート)を運営する、株式会社WOOC(読み方:ウォーク 、所在地:東京都品川区、代表取締役:阪谷 泰之 以下、WOOC)は、九州初進出となる「BIZcomfort熊本城前」を2025年11月1日(土)に開業します。熊本県庁を中心とした自治体の働き方改革推進の流れに呼応し、地方都市における柔軟な働き方の選択肢拡大を支援します。

熊本で加速する働き方改革
熊本県は、2025年4月に厚生労働省と連携して「働き方改革推進支援センター」を設立しました。(※1)熊本市も、テレワークやフレックスタイム制度など柔軟な勤務制度の導入を積極的に推進しています。(※2)こうした行政主導の働き方改革が進む一方で、企業が制度を実際に運用するための場所やインフラの不足が課題となっています。「BIZcomfort熊本城前」は、自治体の政策を実現する民間の受け皿として、熊本全体の働き方改革を加速させる役割を担います。
※1 https://hatarakikatakaikaku.mhlw.go.jp/consultation/kumamoto/
※2 https://www.city.kumamoto.jp/kiji00334693/3_34693_up_1zbartqe.pdf (p7)
ビジネス集積地に誕生する新しい働き方の拠点
当施設がある熊本市中央区は、昼夜間人口比率125%(※3)と、県内外から多くのビジネスパーソンが集まるエリアです。行政がテレワークや柔軟な勤務制度を推進しても、実際に業務を行える環境が不足していることが、制度普及の障壁となっていました。
24時間365日利用可能な当施設は、企業のテレワーク導入やフレックスタイム制度を物理的に支える環境を提供します。レンタルオフィス、会議室、WEB会議用テレフォンブースなど多様なスペースを備え、スタートアップから大企業のサテライトオフィスまで幅広く対応。さらに、都市部から熊本へのU・Iターン人材の受け皿としても機能し、人口減少時代における地方都市の競争力強化に貢献します。
※3 https://www.e-stat.go.jp/(2020年度国勢調査)
BIZcomfort熊本城前 内覧会・無料体験会の事前予約受付中!
【内覧会】2025年11月1日(土)~11月3日(月祝)9:30~18:00(最終受付17:00)
【無料体験会】2025年11月1日(土)~11月16日(日)10:00~17:00(最終受付16:00)
【予約受付】2025年11月15日(土)まで
内覧会は11月4日以降も随時受付しております。 無料体験会は上記期間のみ予約可能です。
【利用方法】
BIZcomfort熊本城前HPから内覧予約ページにアクセスし、ご希望日時・必要事項を入力の上ご予約ください。
確定日時は追ってご連絡いたします。皆様のご参加を心よりお待ちしております。
※メディア関係者の取材や撮影も歓迎しております。ぜひお気軽にお越しください。事前にご連絡をお願いいたします。
担当:株式会社 WOOC 北川(きたがわ) TEL:03-5789-3325 MAIL:pr@wooc.co.jp
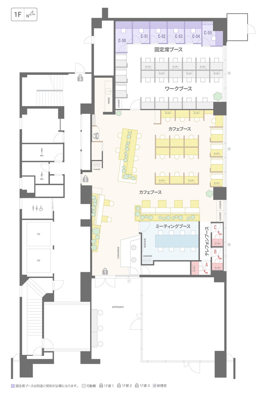
BIZcomfort熊本城前の特徴
特徴1.”九州1号店” 24時間365日使えるシェアオフィス

熊本市電花畑町1分に位置する当施設は、通勤前後の隙間時間にも立ち寄れる利便性です。日中のテレワークだけでなく、出社前の早朝や帰宅前の夜間利用にも対応できる24時間365日使えるシェアオフィスとなっています。緑豊かなコワーキングスペースは、熊本市民のライフスタイルに合わせた、自由で快適なワーク環境を提供します。
特徴2. 仕事も休憩も。効率的なコワーキングスペース

当施設では、利用シーンに応じてブースを用意しています。カフェブースはWEB会議やランチにも利用でき、リラックスしながら作業できます。ワークブースは全席間仕切り付きで、モニター付きの席ならパソコン画面に集中しやすく、広々とした1名用ソファー席では長時間作業できる効率重視の環境です。プライバシーを重視したい方には、個室での通話やWEB会議ができる1名用テレフォンブース、8名収容可能な会議室(※4)には、大型モニターを設置しており、クライアントを招待してスムーズな情報交換や商談も可能です。
※4テレフォンブースと会議室は予約制・有料
特徴3.レンタルオフィスは個人事業主やサテライトオフィスに

当施設では、1~6名用の完全個室を全49室ご用意しています。個室プランでは、デスク・チェア・Wi-Fi・電源などが完備され、ポストも付帯されているため“即日”ビジネスがスタート可能な環境です。通常のオフィス契約で発生しがちな敷金などの初期費用は不要で(※5)、法人登記や事業所登録にも対応、各種許認可の取得実績もあります。開業や支店開設を検討されている方にも安心してご利用いただけます。
※5 別途契約金等が必要
特徴4.充実した設備で“手ぶらワーク”を実現

高速Wi-Fi、無料プリンターやシュレッダーなど、充実した設備を取り揃えています。フリードリンクでは、コーヒーやお茶で作業の合間にリフレッシュもできます。
一定の時間帯には、コンシェルジュが在籍し、宅配便の受取、来客の一次対応など利用者のあらゆるニーズをサポートします。(※6)会員登録不要のドロップイン利用も可能です。初めての方や短時間の利用を希望される方も、気軽にコワーキングスペースの快適な環境を体験いただけます。
※6 一部オプション契約が必要
BIZcomfort熊本城前 施設概要
住所:熊本県熊本市中央区花畑町10-26 SPring熊本城前ビル1F・2F
アクセス:熊本市電「花畑町駅」徒歩1分/高速バス「桜町バスターミナル駅」徒歩7分
広さ:570.77㎡(172.66坪)
席数:【コワーキングスペース】オープンスペース51席/固定席6席/【レンタルオフィス】49戸
利用料金:【コワーキングスペース】
全日プラン(24時間365日いつでも使える):12,100円/月
土日祝プラン(土日祝のみ使える):5,500円/月
全拠点プラン(全国のBIZcomfortが使える):22,000円/月
固定席プラン(自分専用の半個室が使える):29,700円~/月
ライトプラン(月額基本料2,200円を超えた分は1日ごとの従量課金制で使える):2,200円~/月
ドロップイン(会員登録不要で1時間から使える):440円/時、1,650円/日
【レンタルオフィス】39,600円~/月 (共益費込み、部屋により異なる)
設備:Wi-Fi、フリードリンク、無料プリンター、ロッカー、ポスト、登記可、会議室、WEB会議用個室、コンシェルジュ
HP:https://bizcomfort.jp/kumamotoken/kumamotojomae.html
BIZcomfort熊本城前 フロアマップ


BIZcomfortについて
近年は働き方が多様化し、フリーランスや副業、スタートアップなど、自分の特技や強みを生かした働き方を選択する人が増加しています。さらに企業側も、働き方改革の一環で、シェアオフィスを用いたテレワークの導入や、子育て・介護世代が自宅近くでも働けるサテライトオフィスを設置する傾向にあり、働くスタイルや意識が大きく変わろうとしています。
そんな背景の中、当社では”「はたらく」をもっと自由に快適に!”をコンセプトに、シェアオフィス「BIZcomfort」を運営。関東・関西を中心に、全国展開に向けて積極的に拡大しています。
2025年9月オープンしたBIZcomfort※一部
BIZcomfort札幌すすきの 2025年9月17日オープン
眠らない街すすきのに誕生した24時間シェアオフィス。“交流と集中”を両立するハイブリッド型コワーキングスペース。
住所:北海道札幌市中央区南三条西1-8-10 CONNECT SAPPORO 4F

BIZcomfort品川シーサイド 2025年9月1日オープン
品川シーサイド駅直結の大型ワークラウンジ。開放的で洗練された109席のコワーキングスペース。
住所:東京都品川区東品川4-12-6 品川シーサイドキャナルタワー4F

WOOC 会社概要
商号:株式会社WOOC(ウォーク)
代表:代表取締役 阪谷 泰之
本社所在地:東京都品川区西五反田2-30-4 BR五反田ビル7F
電話:03-5789-3323
設立:2008年9月
資本金:17,510万円(資本準備金8,255万円含む)
年間売上高:17期 6,779,540(千円)
店舗数:レンタルオフィス189拠点・コワーキングスペース180拠点(提携店舗・新規オープン予定を含む)
従業員数:計 208名(社員85名・パート123名)※2025年10月時点
事業内容:レンタルオフィス・コワーキングスペース事業/住宅サブリース事業/リフォーム・リノベーション事業/不動産管理・仲介事
業/不動産売買仲介事業
WOOCのSDGsについて
WOOCは、「空間再生」と「シェアオフィス運営」を通じてSDGsの推進に取り組んでいます。シェアオフィス「BIZcomfort」は、都心だけでなく住宅地や郊外にも展開し、誰もがどこでも働ける環境を提供。多様な働き方や労働生産性の向上を支援し、「働きがい」と「経済成長」に貢献しています。

WOOCの働き方について
WOOCは、「女性活躍推進法」に基づく厚生労働大臣認定の「えるぼし」において、最高位の3つ星を獲得しました。多様な働き方をサポートする企業として、自社内でも男女問わず互いを尊重し、自分らしく活躍できる環境実現への取り組みを続けてまいります。

このプレスリリースには、メディア関係者向けの情報があります
メディアユーザー登録を行うと、企業担当者の連絡先や、イベント・記者会見の情報など様々な特記情報を閲覧できます。※内容はプレスリリースにより異なります。
すべての画像
