「じぶん時間を照らすサステナブルな暮らし」ニコイチなど住戸リノベーション事業提案競技 参加者募集開始
~泉北ニュータウン 茶山台B団地(堺市南区)~
大阪府内において公社賃貸住宅SMALIO(スマリオ)を提供する大阪府住宅供給公社(本社:大阪市中央区、理事長:山本 讓、「以下、公社」)は、子育て世帯など若年層の多様なニーズに対応し、快適に住み続けることのできる住⼾リノベーションプランについて、設計・施工・工事監理一式の事業提案競技を茶⼭台B団地(堺市南区)において実施することとし、本日5⽉24⽇(火)より参加者の募集を開始します。
2021年度『ニコイチ』の最優秀提案 「家族の重なりをみつける」(図面)
2021年度『ニコイチ』の最優秀提案 「家族の重なりをみつける」(室内)
https://www.osaka-kousha.or.jp/x-whatsnew/2022-05-24-chayamab/index.html
■実施の背景
公社では⾼齢化が進む⾼経年の団地において、単⾝世帯や若年夫婦、⼦育て世帯などの若年層を誘引するため、2014年度から若手建築家などのアイデアや⺠間事業者のノウハウを活⽤した住⼾リノベーションを継続的に実施しています。
また、2021年5月には堺市が、茶山台B団地のある泉北ニュータウン地域において、将来にわたって多様な世代が快適に住み続けることのできる「持続発展可能なまち」を目指して、「SENBOKU New Design」(※)を策定しました。加えて、近年はテレワークの浸透や働き方の多様化により生み出された時間を「じぶん時間」として新たな学びや趣味などに有効活用する人が増え、生活や住まい方に変化をもたらしています。このことから、今年度は「じぶん時間を照らすサステナブルな暮らし」をテーマに、「家族の団らん」と「じぶん時間」を楽しみ、心地よく過ごせる住まいと、その住まいを照らす明かりとして快適でくつろげる照明計画、そして環境に配慮された内装等のサステナブルな暮らしを意識した新たな住空間の提案を期待しています。
※ SENBOKU New Design
https://www.city.sakai.lg.jp/shisei/toshi/senbokusaisei/gaiyou/keikaku/saiseishishin/senboku-ND.html

| 茶⼭台B団地の住⼾リノベーションの事業提案競技は、堺市と連携して若年夫婦・⼦育て世帯向けの魅⼒的な住宅を供給し、若年層を誘引することを目的とした住⼾リノベーション事業です。 |
■事業概要
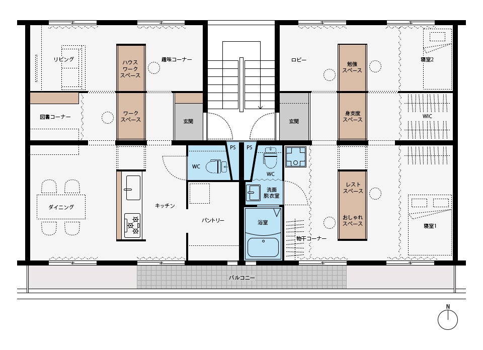
今年度は2戸1化リノベーションタイプ(ニコイチ)を2住戸、1住戸リノベーションタイプ(リノベ50)を1住戸の計3住戸のプランを募集します。事業提案競技で選定した最優秀作品提案者とは、設計・施⼯業務(工事監理業務を含む)にかかる契約を締結する予定です。
<業務内容>
(1) ニコイチ※:横つながりの2戸1化リノベーション(49.23㎡+49.23㎡=98.46㎡/戸)×2住戸
※躯体壁に開口を設けず、玄関およびバルコニーを介した往来で隣り合う2住戸を一体的に利用するもの。
(2) リノベ50:1住戸リノベーション(49.23㎡/戸)×1住戸
<条件価格> 3戸で計2,040 万円(税込)
▽これまでのリノベーションを下記ウェブサイトにて紹介しています。
https://2ko1.danchi-renovation.com/
▲ ニコイチ(2021年度実施)
2022年 5月24日(火) 提案募集要項公表・申込受付開始
2022年 7月 6日(水) 応募書類提出締切
2022年 8月 3日(水) 最優秀作品選定
2022年 12月 22日(木) 完成・引渡し
2023年 1月 下旬 入居者募集
▲ リノベ45(2021年度実施)
■茶⼭台B団地の概要
所 在 地 ︓ 堺市南区茶⼭台2丁8番
総 ⼾ 数 ︓ 269 ⼾
構 造 ︓ 鉄筋コンクリート造 5階建
住⼾専有⾯積 ︓ 49 .23m² ・ 98 .46m²
⼊居開始 ︓ 1974年 6⽉
交 通 ︓ 泉北⾼速鉄道「泉ケ丘」駅より徒歩約13分
◆大阪府住宅供給公社概要
公社賃貸住宅『SMALIO』ロゴ
所在地 :大阪市中央区今橋2丁目3番21号
事業内容 :公社賃貸住宅SMALIO(スマリオ)等の管理・運営事業公社
WEBサイト :https://www.osaka-kousha.or.jp/

このプレスリリースには、メディア関係者向けの情報があります
メディアユーザーログイン既に登録済みの方はこちら
メディアユーザー登録を行うと、企業担当者の連絡先や、イベント・記者会見の情報など様々な特記情報を閲覧できます。※内容はプレスリリースにより異なります。
すべての画像
