直方リバーサイドパークにひまわりとコスモスを咲かせます
〜官民共同のプロジェクト始動〜
直方リバーサイドパークの魅力を更に向上させるため、昨年度に引き続き、夏から秋にかけてひまわりとコスモスを咲かせます。


経緯
春にはチューリップフェアでたくさんの人が訪れる直方リバーサイドパークですが、夏から秋にかけては草生して緑の絨毯が広がるばかりとなっています。そこで、秋にも花を咲かせて皆様に楽しんで頂くと共に、直方の魅力を高めようと、令和4年度よりひまわりとコスモスを咲かせる取り組みを始めました。
本年度は引き続き、本市にて花壇にひまわり、直方中央ロータリークラブで緑地部にコスモスを植え、開花時期をずらし、長く花を楽しめるよう取り組みます。また、ひまわりの種植えは市内野球チームの子どもたちもお手伝い頂く予定です。
開花場所
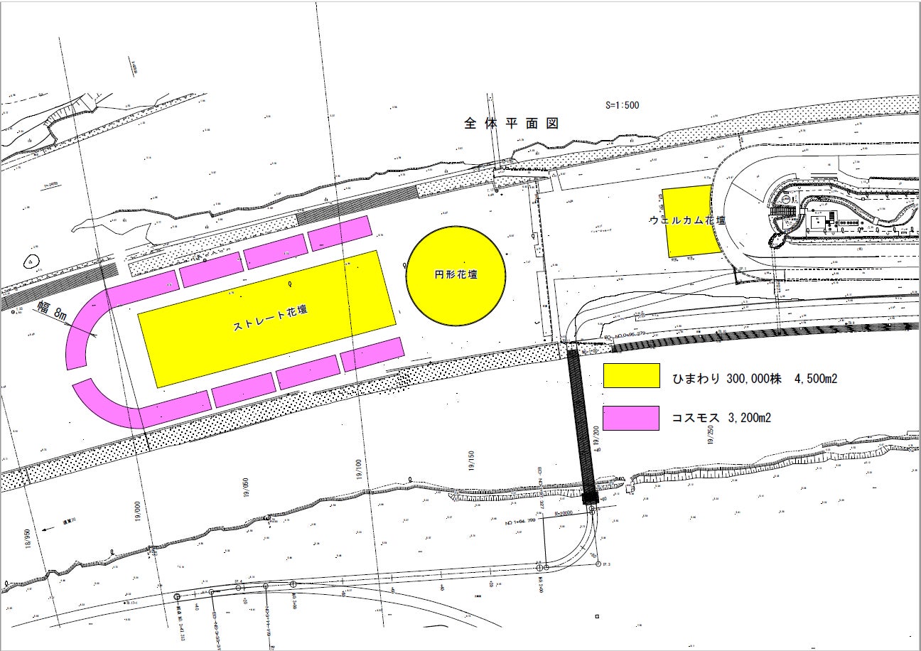
ひまわり:直方リバーサイドパーク内花壇(約300,000株) (昨年度 約300,000株)
コスモス:直方リバーサイドパーク緑地部(約3,200㎡) (昨年度 約2,500㎡)

品種
ひまわり:超極早生40日ひまわり
※種蒔きから40日で開花する、草丈が0.7~1.2mの矮性品種。
開花が早く、霜にも比較的強いため、11月頃まできれいな花が楽しめます。
コスモス:ドワーフ・センセーション
※早咲きのセンセーションの特徴を持ち、ドワーフ(小人)のように背丈が低くて
風に倒れにくい、育てやすい品種です。約55日で開花します。
開花時期
ひまわり:9月中旬~10月上旬ごろ(種まき日は8月9日(金)を予定)
コスモス:10月上旬~10月下旬ごろ(種まきは8月上旬を予定)
(天候により前後する可能性があります。)
【本リリースに関する報道お問い合わせ先】
直方市 都市計画課 公園街路係(担当:村中、東)
TEL:0949-25-2200 FAX:0949-25-2555
e-mail:n-shigai@city.nogata.lg.jp
すべての画像
- 種類
- その他
- ビジネスカテゴリ
- 政治・官公庁・地方自治体
- ダウンロード
