子育て世代の“働きたい”を支える新拠点、職住近接ワークスペース 『KEISEI×BIZcomfort市川』が4月22日オープン 送り迎えの合間やテレワーク時にも使える、仕事や自習用の集中環境を提供
コワーキングスペース・レンタルオフィスのBIZcomfort(ビズコンフォート)を運営する、株式会社WOOC(読み方:ウォーク 、所在地:東京都品川区、代表取締役:清水 裕久 以下、WOOC)は、2026年4月22日(水)にシェアオフィス「KEISEI×BIZcomfort(ケイセイ×ビズコンフォート)市川」をオープンします。
当施設は京成不動産株式会社(所在地:千葉県鎌ケ谷市、代表取締役:清水 健司 以下、京成不動産)とWOOC のコラボレーションにより生まれた7拠点目のシェアオフィスで、都心へのアクセスが良く、住宅地が広がる利便性の高いエリアとして人気の市川駅から徒歩2分に位置します。周辺に住むビジネスワーカーや子育て世代のワークライフバランス支援の場となることを目指しています。

市川市では、商業・住宅・子育て支援施設などを備えた複合都市開発が進んでいます。都心へのアクセス性と生活利便性の高さを背景に、居住地としての人気も年々高まっており、居住人口の増加とともに街のポテンシャルはさらに高まっています。こうした都市の進化に伴い、テレワークや副業など多様な働き方に対応した“職住近接”のワークスペース需要も拡大しており、本施設はそのニーズに応える拠点として開設します。
子育て世代にやさしい、ぬくもりのあるオフィス
市内には認可保育園・幼稚園・小中学校が充実しているほか、里見公園をはじめ自然豊かな公園が点在しています。街路樹が多く緑を感じられる景観も魅力で、ファミリー層を中心に人気の高いエリアです。さらに地域の子育て支援センターを中心に、親子の交流や専門的な相談サポートが充実しており、安心して子育てできる環境が整っています。※1このまちで働き、子育てする方々に「ほっと一息つきながら集中できる」温かみのあるサードプレイスを提供します。
※1市川市こども計画(令和7年3月)p.46 https://www.city.ichikawa.lg.jp/uploaded/attachment/11357.pdf
KEISEI×BIZcomfort市川 内覧会・無料体験会 開催!
KEISEI×BIZcomfort市川のオープンを記念し、内覧会とコワーキングスペースの無料体験会を以下日程で開催します。
【内覧会】2026年4月22日(水)~25日(土)9:30~18:00(最終受付 17:00)
【無料体験会】2026年4月24日(金)~26日(日)10:00~17:00(最終受付 16:00)
※4月24日以降の内覧予約も随時受付しております。
※無料体験会は上記期間のみ予約可能です。
【利用方法】
KEISEI×BIZcomfort市川HPの内覧予約から希望の日時を選択し、必要事項を入力の上ご予約ください。追ってこちらから確定日時をご連絡いたします。また、無料体験会ご希望の方はご要望等の欄に「無料体験希望」とご記入ください。
※メディア関係者の取材や撮影も大歓迎ですので、ぜひお気軽にお越しください。事前にご連絡をお願いいたします。
担当:株式会社 WOOC 片平(かたひら) TEL:03-5789-3325 MAIL:pr@wooc.co.jp
▼KEISEI×BIZcomfort市川の特徴
特徴1. 駅徒歩2分! 24時間365日使えるシェアオフィス
KEISEI×BIZcomfort市川は、24時間365日利用できるシェアオフィスです。市川駅徒歩2分、市川真間駅徒歩10分とアクセスに優れ、仕事前や帰宅前の1時間、休日の前後など、日常のスキマ時間にも気軽に利用できます。ソロワーカーやテレワーカーの集中作業、自習、子育て世代のスキマ時間での仕事など、幅広い働き方に対応し、仕事と暮らしを無理なく両立できる、地域に根ざした拠点を目指しています。

特徴2. 仕事も勉強も。効率的なコワーキングスペース
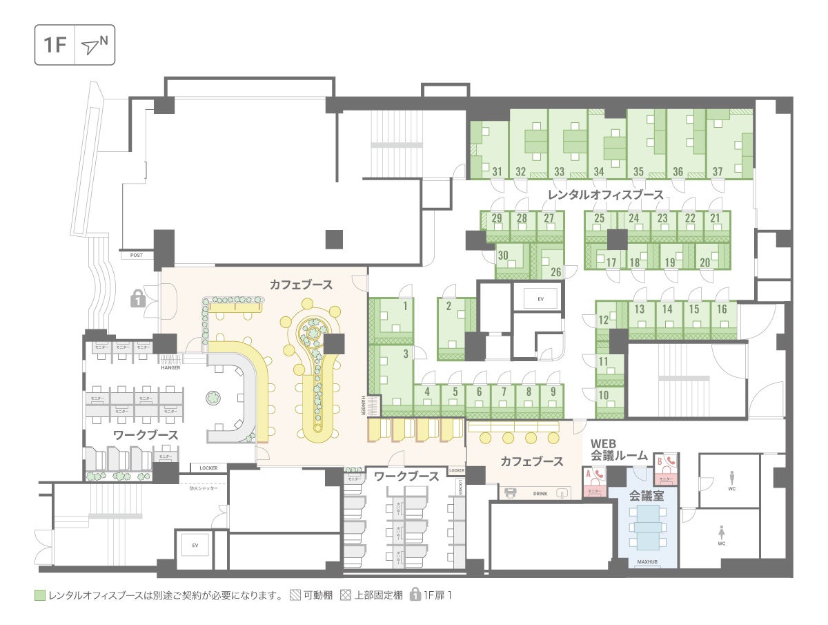
当施設では、利用シーンに応じてブースを用意しています。コミュニケーションやランチに適したカフェブース、全席に仕切りがある自習や集中作業向きのワークブース、広々とした1名用ソファ席やモニター席など多様なブースをご用意。プライバシーを重視したい方には、個室での通話やオンラインミーティングができるWEB会議ルーム※2を用意しています。
※2予約制・有料

特徴3. 事務所やサテライトオフィスにも使えるレンタルオフィス
当施設では、1名から3名まで対応可能な鍵付きの完全個室を用意しています。通常のオフィス契約時に発生する敷金などの高額な初期費用が一切不要※3で、デスクやチェアも備え付けているため、すぐに業務を開始できます。また、各種許認可の対応実績も豊富で、リーズナブルかつ安心して事務所を構えることが可能です。
※3別途契約金が必要

特徴4. 会議室や登記・ポストオプションも完備
6名用の会議室※4には大型モニターを完備しており、クライアントとの打ち合わせや商談、面談・面接に便利な環境を用意しています。また、ポストや登記オプション※5も用意しているため、個室を契約しなくても郵便物の受け取りや法人登記が可能です。
※4予約制・有料 ※5定額プラン契約必須・有料

特徴5.フリードリンクなどの無料の設備も充実
Wi-Fi 、無料プリンター、シュレッダーなど、ビジネスに欠かせない 機器の他、フリードリンクも用意しています。毎日通えば1日およそ476円※6で利用でき、カフェのコーヒー1杯程度の費用で、快適な作業環境を手に入れることができます。
※6全日プラン(月額14,300円)で30日間利用した場合

▼KEISEI×BIZcomfort市川 施設概要
住所 :千葉県市川市市川1丁目9番11号 サン市川ハイツ1F
アクセス :JR総武線「市川駅」北口徒歩2分
京成線「市川真間駅」南口徒歩10分
広さ : 599.85㎡(約181坪)
席数 :【コワーキングスペース】57席/【レンタルオフィス】37戸
利用料金:【コワーキングスペース】
全日プラン(24時間365日いつでも使える):14,300円/月(税込)
土日祝プラン(土日祝のみいつでも使える):5,500円/月(税込)
千葉プラン(千葉県のBIZcomfortが全て使える):15,400円/月(税込)
全拠点プラン(全国のBIZcomfortが全て使える):22,000円/月(税込)
【レンタルオフィス】45,100円~/月 (税込・共益費込み、部屋により異なる)
設備 :Wi-Fi、フリードリンク、無料プリンター、ロッカー、ポスト、登記可、会議室、WEB会議用個室
HP :https://bizcomfort.jp/chibaken/ichikawa.html
▼KEISEI×BIZcomfort市川 フロアマップ

近くのBIZcomfort
■KEISEI×BIZcomfort八千代台
京成本線「八千代台駅」東口徒歩1分のコワーキングスペース・レンタルオフィスです。新規起業、スタートアップの他、サテライトオフィスや支店などにも使えます。
住所:千葉県八千代市八千代台南1-2-1 八千代台南1丁目ビル2F

■KEISEI×BIZcomfort稲毛
JR総武線「稲毛駅」から徒歩2分!レンタルオフィスをはじめ、ストレス無く電話やWEB会議ができる「テレフォンブース」、食事が可能な「カフェブース」、静かに作業ができる「サイレントブース」など様々なブースを設けたコワーキングスペースです。
住所: 千葉県千葉市稲毛区小仲台2-6-1 京成稲毛ビル2F

▼BIZcomfortについて
近年は働き方が多様化し、フリーランスや副業、スタートアップなど、自分の特技や強みを生かした働き方を選択する人が増加しています。さらに企業側も、働き方改革の一環で、シェアオフィスを用いたテレワークの導入や、子育て・介護世代が自宅近くでも働けるサテライトオフィスを設置する傾向にあり、働くスタイルや意識が大きく変わろうとしています。
そんな背景の中、当社では”「はたらく」をもっと自由に快適に!”をコンセプトに、シェアオフィス「BIZcomfort」を運営。関東・関西を中心に、全国展開に向けて積極的に拡大しています。
【WOOC 会社概要】
商号 :株式会社WOOC(ウォーク)
代表 :代表取締役 清水 裕久
本社所在地 :東京都品川区東五反田一丁目14番10号 三井住友銀行五反田ビル6階・8階
電話 :03-5789-3323
設立 :2008年9月
資本金 :17,510万円(資本準備金8,255万円含む)
年間売上高 :17期 6,779,540(千円)
店舗数 :レンタルオフィス195拠点・コワーキングスペース191拠点(提携店舗・新規オープン予定を含む)
従業員数 :計 214名(社員86名・パート128名)※2026年3月末時点
事業内容 :レンタルオフィス・コワーキングスペース事業/住宅サブリース事業/リフォーム・リノベーション事業/不動産管理・仲介事
業/不動産売買仲介事業
公式HP :https://www.wooc.co.jp/
【WOOCのSDGsについて】(https://www.wooc.co.jp/sustainability.html)
WOOCは、「空間再生」と「シェアオフィス運営」を通じてSDGsの推進に取り組んでいます。シェアオフィス「BIZcomfort」は、都心だけでなく住宅地や郊外にも展開し、誰もがどこでも働ける環境を提供。多様な働き方や労働生産性の向上を支援し、「働きがい」と「経済成長」に貢献しています。

【WOOCの働き方について】
WOOCは、「女性活躍推進法」に基づく厚生労働大臣認定の「えるぼし」において、最高位の3つ星を獲得しました。多様な働き方をサポートする企業として、自社内でも男女問わず互いを尊重し、自分らしく活躍できる環境実現への取り組みを続けてまいります。

このプレスリリースには、メディア関係者向けの情報があります
メディアユーザー登録を行うと、企業担当者の連絡先や、イベント・記者会見の情報など様々な特記情報を閲覧できます。※内容はプレスリリースにより異なります。
すべての画像
