地場工務店の匠が手掛けた断熱リノベの実例集『断熱リノベの匠』を展開 第2弾は、築56年の空き家をフルリノベーションした事例を公開
暮らし心地を体感できる体験型イベントハウスとして地域の活性化へ貢献

岡山・吉備高原の南部、旧御津郡の大工工務店として1971年に創業した「近藤建設興業」。1997年に事業継承を行いのちに移転。高性能住宅の黎明期から環境にやさしく暮らし心地のよい住まいづくりに情熱を傾けてきた、そんな匠(たくみ)が代表取締役 近藤 直岐 氏だ。
近藤氏は、建てる地の自然の力を利用したパッシブ設計に高気密・高断熱・高耐震を施した認定長期優良住宅「おかやまニュートラルパッシブ」を提唱。太陽光発電を利用したZEHにも積極的に取り組んできた。
こうした設計・技術力を既存住宅のリノベにも活かすことができれば、新しい選択肢になると考え、築56年の空き家を買取りZEH仕様にフルリノベーション。「リニュートラボ ZEH_リノベ実験室」と名付け、体験型イベントハウスをつくった。こうした新たな取り組みは、体感してもらうのが一番という想いから、岡山市から依頼があったという宿泊体験をはじめ、地域のコミュニティにも役立つ場として活用していく計画だ。

株式会社 近藤建設興業
代表取締役 近藤 直岐 氏
太陽や風など自然の力を活用し、快適に環境負荷を軽減するパッシブ設計は、断熱をデザインすること。岡山の地で最適解を導き出せるのは地元をよく知るビルダーだからできること。カーボンニュートラルの実現には、新築のみならず既存住宅のZEH化によるCO₂削減が欠かせないと近藤氏は考えている。


「リニュートラボ ZEH_リノベ実験室」
近藤氏にこの建物のコンセプトをたずねてみると「シン・昭和の家」とのこと。「原点回帰というか、最近はいろいろ贅沢になりすぎたという想いもあって、つつましい家がいいなと…」元の家の柱や梁をできるだけ活かし、床も天井も建具も地元の木材を使い、壁面は塗り壁で仕上げたそうだ。
また、岡山・津山発の家具ブランドの逸品まで展示されており、まさに地産地消の家といえるほど地元愛にあふれている。

リノベ計画中に、杉や桧の産地である津山市より、森林資源活用と地場の木工技術継承を目的に立ち上げた「TSUYAMA FUNITURE」の家具を展示してもらえないかとオファーがあり、美しい木肌の美作(みまさか)材を使用した家具もコーディネートされている

リノベ前:かなり老朽化し、長年空き家になっていた築56年の旧家屋

リノベ後: フルリノベーションで新築のように蘇った「リニュートラボ」

南面の隣家が3階建てのため、越屋根(切妻屋根の中央の一部を持ち上げた屋根)の高窓から光を採り入れ、蓄熱効果のある壁で太陽熱を蓄え、冬は夜間に放熱、夏は室温の上昇を抑えるパッシブ設計が活かされている。

昔の大工の技が残る古材
古材を見えるようにしたのは、みなさんに体感してもらうための家なので、リノベ感が伝わるようにとの狙いもあるそうだが、よく見ると継ぎ手や墨を打った跡など昔の大工の技が残る。そこに光を当てたのは先人へのリスペクトだと近藤氏は語る。
築56年の老朽化した家屋だけあって、完成に至るまでには苦労が多かったようだ。基礎に鉄筋が入っていなかったり、柱の断面欠損が大きかったりする中で、しっかり耐震性を確保しなければならないため、十分なケアが必要だったという。

「シン・昭和の家」らしい居室スペース。
畳敷きではないものの、和空間のような凛とした佇まい。
障子、地窓からのやわらかな光に心和み、癒される。

水まわりも桧などの天然木仕上げで、清潔感にあふれリラックスできる空間に。
プライバシーを保ちながら光や景色が楽しめるよう窓にも工夫が。
もちろん、新築の高性能住宅レベルの居住性能を得るための断熱性の向上は必須だ。壁や天井に「スーパーウォールパネル」を入れ、サッシは樹脂とアルミのハイブリッド窓「TW」を採用するなど、LIXILの「まるごと断熱リフォーム」によって既存住宅のZEH化を可能にした。
リノベでも高断熱が実現できる建材や工法のサポートがあるからこそ、新築のみならず既存住宅にも積極的に取り組もうという気持ちになれたと語る近藤氏。
実家や中古住宅の活用で、社会的な課題である空き家問題を解決する一歩になればという想いを胸に、ZEHリノベ普及への挑戦は、まだ始まったばかりだ。


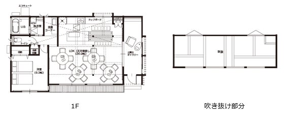
築56年の平屋をフルリノベーションで間取りも一新。木造軸組パネル工法をベースに「まるごと断熱リフォーム」を利用し、高気密・高断熱、ZEH化をはかり、リノベによる高性能住宅として蘇った。工事期間はおよそ5ヶ月。

Reform Data
床面積:延床 25.6坪 1階 /木造平屋建/築年数:1967年竣工・築56年/エリア:岡山県
断熱リフォームによる性能改善:省エネ区分 6地域
改修前3.88W/㎡K→改修後0.31W/㎡K

まるごと断熱リフォームは、今ある住まいを、一棟まるごと断熱改修することで高性能住宅化できる先進の工法。すぐれた性能の断熱材により、壁・天井・床をしっかり覆い、高断熱の窓や玄関ドアに交換。外気温の影響が少なく、快適・健康・省エネを実感できる暮らしを実現する。
About LIXIL
LIXILは、世界中の誰もが願う豊かで快適な住まいを実現するために、日々の暮らしの課題を解決する先進的なトイレ、お風呂、キッチンなどの水まわり製品と窓、ドア、インテリア、エクステリアなどの建材製品を開発、提供しています。ものづくりの伝統を礎に、INAX、GROHE、American Standard、TOSTEMをはじめとする数々の製品ブランドを通して、世界をリードする技術やイノベーションで、人びとのより良い暮らしに貢献しています。現在約55,000人の従業員を擁し、世界150カ国以上で事業を展開するLIXILは、生活者の視点に立った製品を提供することで、毎日世界で10億人以上の人びとの暮らしを支えています。
株式会社LIXIL(証券コード: 5938)は、2023年3月期に1兆4,960億円の連結売上高を計上しています。
LIXILグローバルサイト:https://www.lixil.com/jp/
LIXIL Facebook(グローバル向け):https://ja-jp.facebook.com/lixilglobal/
LIXIL Facebook(日本国内向け):https://www.facebook.com/lixilcorporation
このプレスリリースには、メディア関係者向けの情報があります
メディアユーザー登録を行うと、企業担当者の連絡先や、イベント・記者会見の情報など様々な特記情報を閲覧できます。※内容はプレスリリースにより異なります。
すべての画像
