Pacificブランド初の住宅プロジェクト「Pacific HOUSE」が誕生。
ハワイのライフスタイルを住宅に落とし込むPacificブランド × LIFE LABELによるコラボレーション住宅が登場。

七里ヶ浜のドライブインカフェPacific DRIVE-INを展開する“Pacific”シリーズが、ライフスタイル住宅ブランド「LIFE LABEL」と共同で住宅プロジェクトPacific HOUSE(パシフィック ハウス)を発表。ハワイの暮らしを想起させる外観や開放的な間取りに、Pacificの感性とデザイン性を住宅に落とし込んだ新たなライフスタイルを提案します。
LIFE LABEL代表・林哲平氏がパーソナリティを務めるラジオ番組「What’s New FUN?」にトランジットホールディングス代表・中村貞裕が出演し、対談を交わしたことをきっかけに始動。「日本人が憧れる海外の暮らし」を実現する場として構想され、“カルチャーの拠点”としての住まいを目指し、日々の暮らしの中にPacificらしい価値観を取り込むことを目的としています。
ハワイのラナイ文化を彷彿とさせる縁側スペース、グリーンが印象的な外観とロフト付きの平屋構造、玄関からLDKが広がるダイナー風のレイアウト。Pacific HOUSEは、住まいにPacificらしい感性を落とし込んだ、ライフスタイル住宅プロジェクトです。例えば、サーフィンやピックルボール、ゴルフなど、アクティブな時間を日常に取り入れながら、午後はラナイでコーヒーを飲んだり、お気に入りの音楽を流して読書を楽しんだり。自然とともに過ごす時間の中で、自分らしいリズムを大切にする“余白”のある暮らしを提案します。内装はDIYなどカスタマイズが可能で、住む人の個性が反映されていく“育てる家”としての魅力も。Pacific HOUSEは、Pacificが考える「住まいのその先の暮らし」をかたちにした、新たなライフスタイルの提案です。
特設ページ: https://pacific-house.lifelabel.jp/


キャンペーン

リリースを記念して「Pacific HOUSEで暮らすなら?」をテーマに、この家でやってみたいことを大募集中。この家に住んだ自分の姿を想像して、どんな風に暮らしてみたいかアンケートを実施します。
回答いただいた方の中から抽選で、Pacific HOUSEオリジナルグッズをプレゼント!
募集期間は、2025年8月31日まで。
【応募方法】
① InstagramでLIFE LABELアカウント(@lifelabel_official)をフォロー
② 応募フォームからアンケートにご回答

スペック

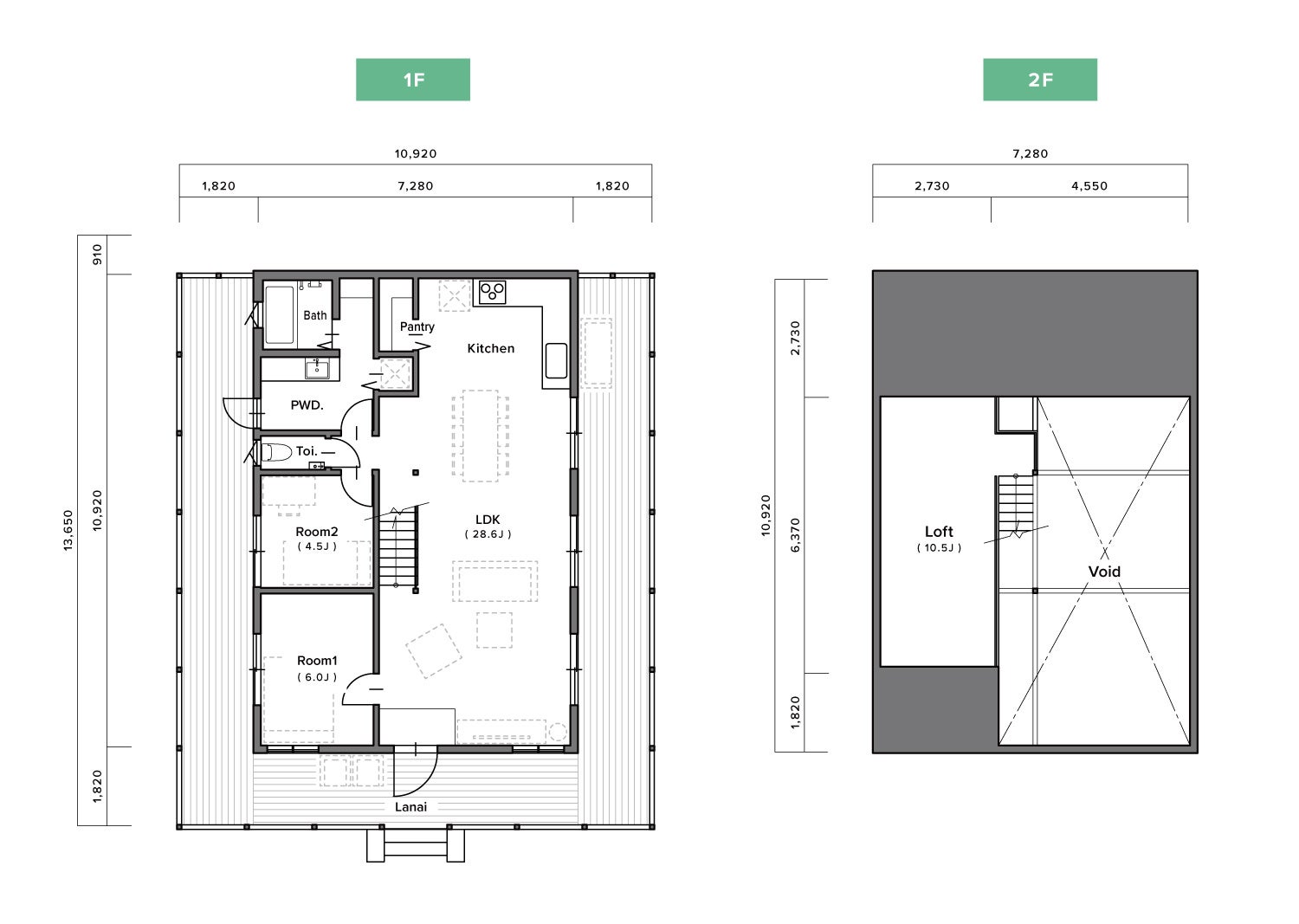
■延床面積100.19㎡(30.30坪)
■床面積
1F:79.49㎡(24.04坪)
2F:20.70㎡(6.26坪)
“Pacific”ブランドについて

“Pacific”は、七里ヶ浜のドライブインカフェPacific DRIVE-INを起点に、食・カルチャー・アクティビティを軸にライフスタイルを提案するシリーズブランドです。ハワイやカリフォルニアの空気感を感じさせる世界観と、湘南ローカルの自然体なマインドを掛け合わせた心地よい時間と空間を提供しています。
これまでに、焼きたてのペイストリーを楽しめるPacific BAKERY、ドーナツが人気のシティカフェPacific BAKE HOUSE、ライフスタイルとしてのゴルフを提案するPacific GOLF CLUB、気軽に楽しめるピックルボールカルチャーを発信するPacific PICKLE CLUBなど、多様な切り口で展開を拡大。
そして今回、Pacificシリーズ第6弾として誕生したPacific HOUSEは、“暮らし”そのものをフィールドにした住宅プロジェクト。住まいを通じて、Pacificが大切にしてきた価値観——自然との共生、カルチャーとの接点、自分らしさのある時間——を日常に取り入れる新たな試みとなります。
Pacific DRIVE-IN
Instagram:https://www.instagram.com/pacificdrivein/
LIFE LABEL(ライフレーベル)
LIFE LABELは、“Hello, new fun.” をブランドタグラインとして、2017年からスタートした住宅ブランドです。2025年1月より「NICE LIFE.」をスローガンに掲げ、身近な人にNICEとエールを送り合うポジティブな空気を伝播させていきます。また、様々なブランドとコラボレーションし規格住宅デザインを開発。FC事業として、全国160社以上のLIFE LABEL取扱店にてブランドを展開しています。
d40062-356-5f4d8f6c56951fdb9def1d46e5db1dfc.pdfこのプレスリリースには、メディア関係者向けの情報があります
メディアユーザー登録を行うと、企業担当者の連絡先や、イベント・記者会見の情報など様々な特記情報を閲覧できます。※内容はプレスリリースにより異なります。
すべての画像
