物流施設「LOGIFRONT(ロジフロント)」シリーズ 第10弾『LOGIFRONT厚木』竣工
日鉄興和不動産株式会社(本社:東京都港区、代表取締役社長:三輪 正浩)は、物流施設「LOGIFRONT」シリーズを展開しております。2024年3月、神奈川県厚木市に、シリーズ第10弾(首都圏第5弾)となる地上5階建て・延床面積約6,100坪のBOX型物流施設『LOGIFRONT厚木』が竣工いたしましたのでお知らせします。
▲建物外観(鳥瞰)
▲建物外観(全景)
『LOGIFRONT厚木』について
■立地環境・アクセス
本施設は、神奈川県厚木市・愛甲郡愛川町に跨る「神奈川県内陸工業団地」のほぼ中央部に位置しています。神奈川県内陸工業団地は、中津原台地に広がる堅固な地盤を有し、洪水・浸水の可能性が低く、BCPの観点からも安全性の高い立地です。また、計画地周辺は「神奈川県内陸工業団地建築協定」区域内にあるため各街区に「グリーンベルト」が整備されており、「上ノ原公園」が隣接するなど緑豊かな環境です。一方、徒歩圏内にはコンビニエンスストアや飲食店があり、施設利用者の利便性、快適性も備えています。
アクセス面では、首都圏中央連絡自動車道「相模原愛川」ICから約2.8kmに位置し、厚木市内、相模原市内への配送はもとより東名高速自動車道、中央高速自動車道の利用により、広域物流拠点立地としても優位性を備えています。加えて、3㎞圏内に住宅エリアが広がり、雇用面でも優位な物流拠点としてのポテンシャルを有しています。
■施設計画
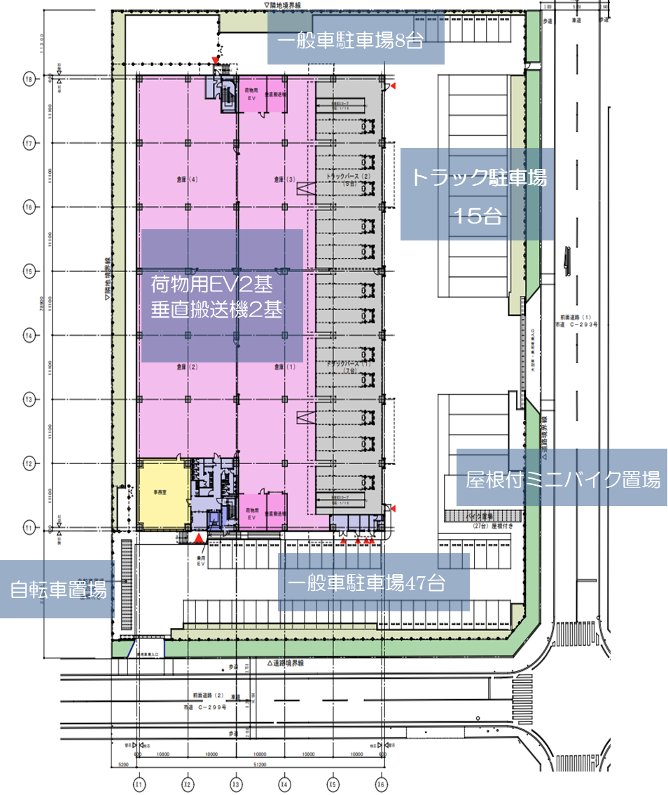
本施設は、南東角の整形地にある地上5階建てBOX型施設です。車両出入口を2カ所に設け、大型車両と通勤者・自転車・一般車の動線を分離し、安全性に配慮した動線計画としています。敷地内には、トラックバース12台、トラック駐車場15台、一般車駐車場55台のほか、屋根付ミニバイク置場・自転車置場も備え、多様なアクセスに対応します。
倉庫部は、柱スパン約11m・梁下天井有効高5.5m を確保。1~4階はブレースを配置していないため自由度の高いレイアウトが可能です。また、床荷重1.5t/㎡を確保しており、汎用性の高い仕様となっています。そのほか、休憩室や喫煙室、ドライバー専用トイレなど、ワーカーの皆さまのリフレッシュタイムを充実させる空間を提供します。
▲倉庫(1階)
▲倉庫(2階)
▲荷物用ELV・垂直搬送機
▲トラック駐車場
▲自転車置場
▲ミニバイク置場
■外観・内観デザイン
外観は断熱性・耐震性・美観に優れ、倉庫業法で定められた壁強度(2,500N/㎡)を有する金属断熱サンドイッチパネルを用い、シルバーとブラックシルバーのシャープなデザインとしています。
一方、エントランスホール、給湯室、トイレなどの内観は、「厚木」の名の由来である木調のデザインをモチーフに全体をアースカラーでまとめ、落ち着いた温もりのある上質な空間を演出しています。
▲エントランスホール
▲トイレ
▲喫煙室
■仕様・設備
▲全館LED照明(写真は事務室(1階))
荷物用エレベーターと垂直搬送機は、それぞれ建物南北に2機配置。ドッグレベラーも2機標準装備しており、区画分割対応(2分割)も想定した計画としています。
また、エントランスにはオートロック付きオートドアとカメラ付きインターホンを配備し、セキュリティも充実しています。全館LED照明をはじめ、人感センサー付き照明や節水型衛生器具などを随所に採用し、環境・省エネに配慮しました。
さらに、テナントの業務形態や施設レイアウトに応じて、監視カメラやセキュリティ機器をレイアウトすることも可能です。
■貸床面積

■各階平面図
▲1階
▲2・3階
▲4・5階
■『LOGIFRONT厚木』概要
日鉄興和不動産の物流施設「LOGIFRONT(ロジフロント)」HP https://logifront.nskre.co.jp/

名称 | LOGIFRONT厚木 |
所在地 | 神奈川県厚木市上依知字上ノ原3025番 |
交通 | 首都圏中央連絡自動車道「相模原愛川」IC 約2.8㎞ |
敷地面積 | 9,909㎡(約2,997坪) |
延床面積 | 20,256㎡(約6,127坪) |
構造・階数 | S造一部RC造・地上5階建・BOX型 |
設計・施工 | 大末建設株式会社 |
監修 | 株式会社フクダ・アンド・パートナーズ |
スケジュール | 2023年2月着工、2024年3月末竣工 |
【地図】

このプレスリリースには、メディア関係者向けの情報があります
メディアユーザー登録を行うと、企業担当者の連絡先や、イベント・記者会見の情報など様々な特記情報を閲覧できます。※内容はプレスリリースにより異なります。
すべての画像
