街や人に新たなリズムを生み出す都会の中の公園「Ginza Sony Park」 2025年1月26日(日)グランドオープン
Ginza Sony Park Project(銀座ソニーパークプロジェクト)は、東京・銀座のソニービル建て替えプロジェクトの最終形として、人々が思い思いに過ごせる多くの余白と、変わり続けるアクティビティによって、街や人に新たなリズムを生み出す都会の中の公園「Ginza Sony Park」を、2025年1月26日(日)にグランドオープンします。

Ginza Sony Parkは2024年8月の竣工後、グランドオープンに向けた工事期間中に一部フロアを開放し、工事中の空間だからこそ体感できる特別プログラムを開催しています。先月11月の「ART IN THE PARK(工事中)」は、開放的な地上の吹き抜け空間を活かしたアートなどの展示によって、交差点を行き交う来街者やツーリストだけでなく、銀座ワーカーなど1万人を超える方々が来園。思い思いのすごし方をされ、まさに「都会の中の公園」を体現するプログラムとなりました。来年1月26日に迎えるグランドオープン後も、さまざまなアクティビティを開催し、銀座の街や人々にリズムを生み出していきます。
グランドオープンと同時にスタートする第一弾プログラムは、ソニーグループの6事業をテーマに、ソニーミュージックグループを中心とした6組のアーティストとともにつくるクリエイティブな体験型プログラム「Sony Park展 2025」。Sony Park展は2021年に銀座、2022年には京都で開催し、大変ご好評いただいたGinza Sony Parkを代表するアクティビティのひとつです。「ゲームは、社交場だ。」「音楽は、旅だ。」「映画は、森だ。」など遊び心あふれるイベントテーマはそのままに、新たなアーティストの参加や一新された体験型プログラムにより、新しいSony Park展をお楽しみいただきます。
また、Ginza Sony Parkがつくる「食のアクティビティ」として、洋食をベースに食との新しい向き合い方や楽しみ方を提案するカジュアルダイニングもオープン予定です。
本日よりリニューアル公開となったSony Park公式ウェブサイトでは、Ginza Sony Parkの情報を随時更新していきます。今後の追加情報にご期待ください。
■ 「Ginza Sony Park」概要
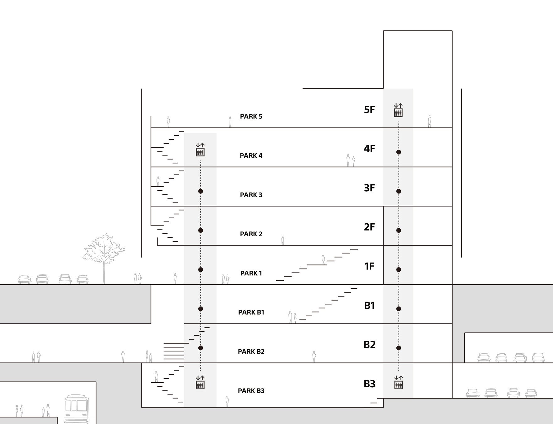
銀座の標準的な建物の半分ほどの高さにあえて低く構えることで、集積率の高い都会の中に余白と新しい景観を生み出します。また、ソニービルが大切にしてきた「街に開かれた施設」という設計思想と、「ジャンクション建築」「縦のプロムナード」といったユニークな建築的な要素はGinza Sony Parkにも継承されています。
テナントなどの常設店舗は設けず、各フロアではその時々で変化するアクティビティを行います。B3は、食のアクティビティ「カジュアルダイニング」のフロアとなり、また、地上の吹き抜け空間など随所にある「余白」のスペースは、人々が自由に散策したり休憩したりすることのできる場となります。


名称:Ginza Sony Park(銀座ソニーパーク)
所在地:東京都中央区銀座5丁目3番1号
フロア構成:地上5階、地下4階 * 地下4階は機械室など
敷地面積:707.42㎡
延床面積:4,357.49㎡(※)
高さ:33.9m(※)
設計:Ginza Sony Park Project
竣工日:2024年8月15日
Web:https://www.sonypark. com/
※ 8月21日リリース時より変更

■「Sony Park展 2025」 概要

ソニーグループがいま取り組む6つの分野「ゲーム、音楽、映画、エンタテインメントテクノロジー、半導体、金融(ファイナンス)」を、遊び心あふれるイベントテーマに変換。ソニーミュージックグループを中心とした6組のアーティストたちが加わり、Ginza Sony Parkでしか体験できない数々のプログラムを展開します。
名称:Sony Park展 2025
テーマ:ゲームは、社交場だ。
音楽は、旅だ。
映画は、森だ。
エンタテインメントテクノロジーは、
ストリートだ。
ファイナンスは、詩だ。
半導体は、SFだ。
日程:2025年1月26日(日)スタート
場所:Ginza Sony Park
ハッシュタグ: #SonyPark展2025
※ 開催日時や参加アーティスト、入場方法などのプログラム内容の詳細は後日お知らせします。
■ Ginza Sony Parkプロジェクトについて

Ginza Sony Parkプロジェクトは、「街に開かれた施設」をコンセプトに50年以上にわたって銀座の街と歩んだソニービルを建て替えるプロジェクトです。
1966年、ソニーのファウンダーのひとりである盛田昭夫によってつくられたソニービル。
そこには、「街に開かれた施設」の象徴であり、盛田が「銀座の庭」と呼んだ10坪のパブリックスペースがありました。私たちは次の50年に向けても創業者の想いを継承させたいと考え、「銀座の庭」を「銀座の公園」として拡張することで、銀座の街に新しいリズムをつくり、来街者の方が入りやすく、さまざまな楽しみ方ができる場にしようと、プロジェクトを進めてきました。
また、その建て替えプロセスもソニーらしくユニークに行いたいという想いから、これまでにない新しい発想で二段階のプロセスを採用。第一段階は新しい建物をすぐに建てず、ビルの解体途中(2018年8月~2021年9月)を公園にするという他に類を見ない実験的な試みをおこないました。結果として、コロナ禍を含む約3年間で854万人もの方々に来園いただきました。
その後、第二段階として解体・新築工事を再開し、2024年8月にプロジェクトの最終形となる「Ginza Sony Park」を竣工、2025年1月26日(日)にいよいよグランドオープンの予定です。
Sony Park 公式Webサイト・SNSアカウント
Instagram:https://www.instagram.com/ginzasonypark/
X:https://x.com/ginzasonypark/
Facebook:https://facebook.com/ginzasonypark/
YouTube:https://youtube.com/ginzasonypark/
@ginzasonypark #GinzaSonyPark
このプレスリリースには、メディア関係者向けの情報があります
メディアユーザー登録を行うと、企業担当者の連絡先や、イベント・記者会見の情報など様々な特記情報を閲覧できます。※内容はプレスリリースにより異なります。
すべての画像
