【UR都市機構・東京メトロ】虎ノ門ヒルズ駅の拡張工事完成 虎ノ門ヒルズ ステーションタワーとつながり、まちと一体となった新たな駅へ
2023年7月15日(土)から、広々とした地下鉄駅前広場と接続
「虎ノ門ヒルズ駅」は、周辺まちづくりを一体的に進めるため、UR都市機構が事業主体として事業調整、東京メトロが駅整備を担い、2020年6月に誕生しました。その後、駅に隣接する虎ノ門一・二丁目地区市街地再開発事業の協力を得ながら、駅の拡張工事を進めてまいりました。
このたび、改札を地上及び地下1階から地下2階に移設し、駅の東西や地上と地下をスムーズに行き来することができるようになります。駅出入口が虎ノ門ヒルズ ステーションタワー内に誕生する地下鉄駅前広場「ステーションアトリウム(面積約2,000㎡)」とつながり、ガラス越しに駅ホームへ自然光が入る、明るく開放的な「駅まち一体」の空間が実現します。これにより、交通結節点としての機能を果たしながら、駅とまちが連携、進化していくことで、多様な交流や新たな賑わいを生み出し、より豊かな生活の実現に貢献していきます。
なお、虎ノ門ヒルズ ステーションタワーの開業は今年の秋の予定となります。詳細は以下のとおりです。
(地下2階コンコース イメージパース)

(地下鉄駅前広場「ステーションアトリウム」イメージパース(今年秋頃))

日比谷線「虎ノ門ヒルズ駅」について(概要)
1 「駅まち一体」のまちづくり
<これまでの整備のあゆみ>
虎ノ門ヒルズ駅は、日比谷線霞ケ関駅~神谷町駅間、国道1号と環状2号線の交差点付近に位置し、1964年に日比谷線が全線開業して以来、56年ぶりに誕生した新たな駅です。当駅及びその周辺は、都市の国際競争力の強化に向け、「生活環境を備えた国際的なビジネス・交流拠点の整備」及び「交通結節機能の強化」を目指した「特定都市再生緊急整備地域の整備計画」に位置付けられています。
その実現に向け、UR都市機構が事業主体となって関係者間調整を行い、既存営業路線の安全運行を確保しながらの駅整備を東京メトロが担い、駅に隣接する虎ノ門ヒルズ ステーションタワー(A-1街区)、グラスロック(A-2街区)の施行者である虎ノ門一・二丁目地区市街地再開発組合と連携し、協力を得ながら実施してまいりました。

【役割分担】

<今後の展望>
東京2020 オリンピック・パラリンピック競技大会に合わせ、2020年6月より暫定的な出入口を設けた新駅として開業してきましたが、このたび、日比谷線ホーム下に位置する地下2階部分に、現状の倍以上の幅員となる通路(コンコース)と改札を新設することで、当駅を介して虎ノ門ヒルズ ステーションタワーとグラスロック、そしてその先のまちへと行き来できるようになり、「駅まち一体」のまちづくりが実現します。
これにより、駅とまちが連携、進化していくことで、人々の多様な交流や新たな賑わいを生み出し、より豊かな生活の実現に貢献していきます。

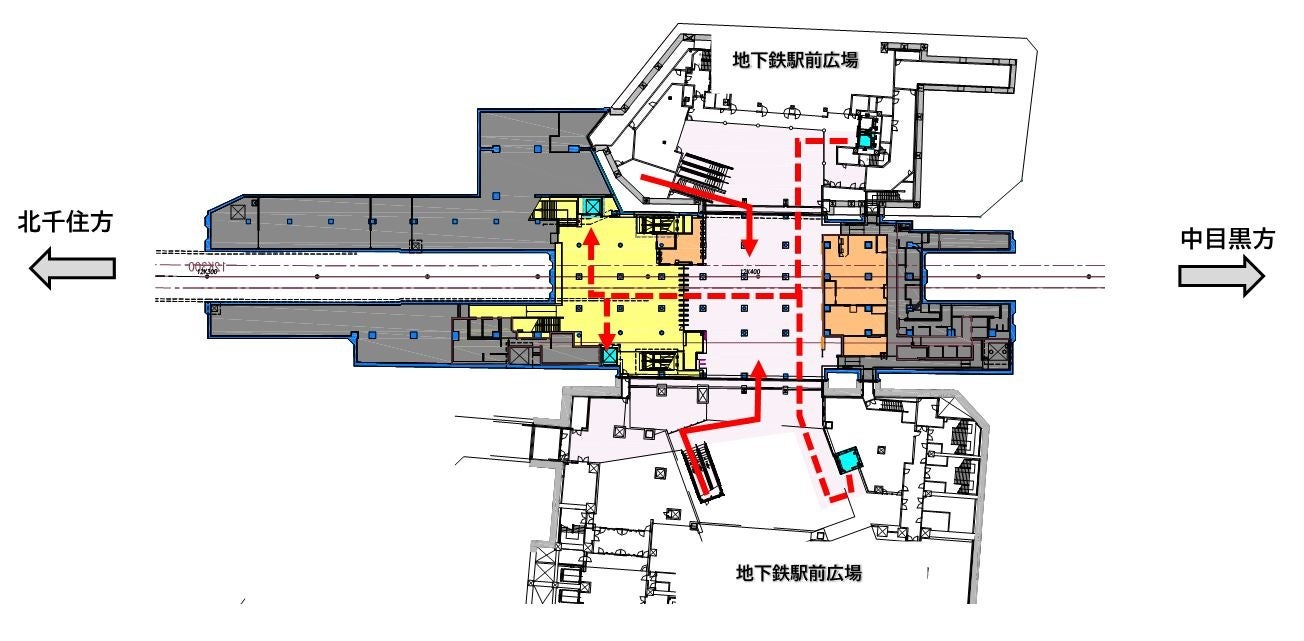
2 駅構内図

※地下2階の新改札口設置に伴い、現在の改札口(3か所)は閉鎖となります。
また、地上出入口については、A1a・A2a出入口の新設に伴い、現在のA1・A2出入口は閉鎖となります。

日比谷線「虎ノ門ヒルズ駅」について(概要)
①地上平面図

②地下1階平面図

③地下2階平面図


このプレスリリースには、メディア関係者向けの情報があります
メディアユーザー登録を行うと、企業担当者の連絡先や、イベント・記者会見の情報など様々な特記情報を閲覧できます。※内容はプレスリリースにより異なります。
すべての画像
- 種類
- 商品サービス
- ビジネスカテゴリ
- 交通・運送・引越し商業施設・オフィスビル
- ダウンロード
