【沖縄ハーバービューホテル】客室・ダイニングを全面リニューアル― “今の沖縄”を五感で感じる、クラシカルモダンなひとときを ―
予約開始:2025年5月8日(木) / 宿泊開始:2025年7月1日(火)
開業から50年、那覇のまちとともに歩んできた沖縄ハーバービューホテル(沖縄県那覇市泉崎2-46/総支配人:森山 真也)は、この夏、伝統と感性が響き合う新たな滞在体験をお届けします。

当ホテルは、2025年末のグランドオープンに向け、大規模リニューアル工事を進めています。
今回リニューアルを迎えるのは、クラシカルモダンなデザインと快適性を兼ね備えた2タイプの客室、そして、沖縄の今を“食”で味わうことをテーマにした新しいダイニング。
客室は、沖縄の伝統工芸「琉球藍染」に着想を得た深みのある藍色と、「月桃」をモチーフにしたカーペットが印象的な、クラシカルモダンの空間へと生まれ変わりました。なお、対象客室に宿泊のお客様は開放感あふれるクラブラウンジをご利用いただけます。
さらに、上質で開放的な空間へと生まれ変わったオールデイダイニングでは、“今の沖縄”をテーマにした多彩な料理を提供いたします。これからの沖縄を、この場所から。特別な時間をご体感ください。


なお、今後もガーデンプールやロビーラウンジ、クラブラウンジなど滞在体験をより豊かに彩る各種施設を順次リニューアルオープン予定です。ぜひともご期待ください。
■新客室の概要
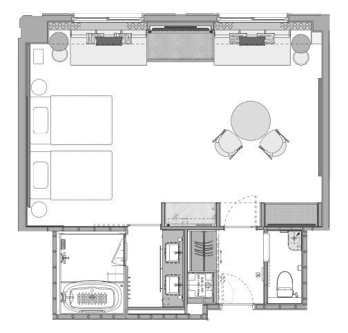
クラブエグゼクティブツインルーム(60㎡)
ご家族やグループでの滞在に最適な客室に、バルミューダの電子レンジや冷蔵庫、ドラム式洗濯乾燥機など長期滞在を快適にする設備を整えました。

【客室数】 2室
【最大定員】 6名
【ベッドサイズ】120 cm×200 cm 2台
【設 備】 BALMUDA The Range、洗濯乾燥機、
65インチTV、ReFaドライヤー など

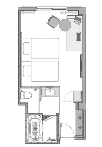
クラブデラックスツインルーム(30㎡)
コンパクトながらも、くつろぎの質にこだわった客室です。お部屋の一角に開放的な洗面スペースを設け、二枚の引き戸を閉めればプライバシーも確保。複数名の滞在でも、ゆったりとお過ごしいただけます。

【客室数】 36室
【最大定員】 4名
【ベッドサイズ】 110 cm×200 cm 2台
【設 備】 55インチTV、ReFaドライヤー など

■クラブラウンジについて
ホテル最上階に位置するクラブラウンジでは那覇市街の街並みを一望できます。夕方から夜にかけてのマジックアワーが上質なひとときを演出。ナイトタイムは夜景を眺めながら、色鮮やかなオードブルやフルーツ、アルコールをお楽しみいただけます。
■営業時間 7:00~22:00
■ブレックファスト 7:00~10:00
■ティー タイム 14:00~16:00
■バー タイム 17:00~20:00
■ナイトキャップ 20:00~22:00

≪ 沖縄ハーバービューホテル概要 ≫
名 称 :沖縄ハーバービューホテル
客室数 :352室
代表者 :総支配人 森山 真也
所在地 :〒900-0021 沖縄県那覇市泉崎2-46
連絡先 :TEL:098-853-2111(代) FAX:098-835-9696
交通機関:那覇空港より車で約10分・那覇バスターミナルより徒歩約5分・ゆいレール壷川駅より徒歩約10分
公式HP:https://oka-hvh.com/

■オリエンタルホテルズ&リゾーツとは
オリエンタルホテルズ&リゾーツは、株式会社ホテルマネージメントジャパンが運営するホテルチェーンブランドです。 “独自性のある滞在体験の提供”と、ホテルそのものが“エリアを巻き込んだデスティネーションとなること”を目指し、「オリエンタルホテル」や「ホテル オリエンタル エクスプレス」など国内16ホテル(総客室数4,169室)を展開しています。入会金・年会費無料の独自メンバーシップ「CLUB ORIENTAL(クラブオリエンタル)」では、魅力的な特典や会員限定プランをご利用いただけます。
-ホームページ:https://www.oriental-hotels.com
-Facebook:https://www.facebook.com/profile.php?id=100070068335069
-Instagram:https://www.instagram.com/oriental_hotelsandresorts
-YouTube:https://www.youtube.com/@orientalhotelsandresorts
-X:https://twitter.com/Oriental_HR
-CLUB ORIENTAL: https://www.oriental-hotels.com/club-oriental/
■株式会社ホテルマネージメントジャパン会社概要
株式会社ホテルマネージメントジャパンは、国内24ホテル(総客室数7,671室)を展開するホテル運営会社です。グループホテル総従業員数は3370名。独自ブランドである「オリエンタルホテル」と「ホテル オリエンタル エクスプレス」に加え、「ヒルトン」、「シェラトン」、「ホテル日航」など多様なホテル経営及び運営を行っています。(2025年4月現在)
このプレスリリースには、メディア関係者向けの情報があります
メディアユーザー登録を行うと、企業担当者の連絡先や、イベント・記者会見の情報など様々な特記情報を閲覧できます。※内容はプレスリリースにより異なります。
すべての画像
