コスモスイニシアのシェアオフィス『MID POINT六本木』 2025年12月19日オープン 2026年3月には「MID POINT浦和」開業決定(ニュースリリース)
大和ハウスグループの株式会社コスモスイニシア(本社:東京都港区、社長:髙智 亮大朗、以下「コスモスイニシア」)は、“ちょうどいい”をコンセプトにしたシェアオフィス『MID POINT(ミッドポイント)六本木』を、六本木駅徒歩1分の立地に12月19日(金)にオープンしました。
また、第15拠点目となる『MID POINT浦和』の2026年3月開業が決定しました。開業に先立ち、2025年12月26日から『MID POINT浦和』のホームページ(https://www.cigr.co.jp/mp/urawa/)にて、WEB内覧および入居者募集を開始いたしました。

■ 『MID POINT六本木』の特徴
1.国際色豊かなエリアに位置し、交通アクセスにも優れた利便性の高い立地
東京メトロ日比谷線・都営大江戸線「六本木」駅3番出口に直結したオフィスビルに入居しており、都心主要エリアへのアクセスが可能です。
2.六角形“ロンバス”をモチーフとした空間デザイン
施設デザインは、調和と連続性を象徴する六角形=“ロンバス”をモチーフに構成。多様な働き方に対応し、人と人とのつながりを生み出すレイアウトを採用。集中・交流・休憩の各シーンへの切り替えがしやすい空間となっています。
■ スペース概要

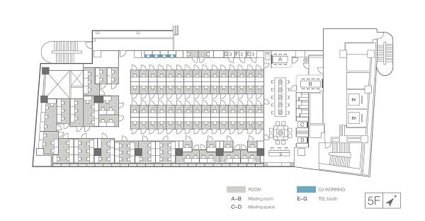
■ フロアマップ

■ 『MID POINT六本木』物件概要

|
物件名 |
『MID POINT六本木』 |
|
所在地 |
東京都港区六本木6丁目1−24 ラピロス六本木ビル5F |
|
交通 |
東京メトロ日比谷線・都営大江戸線「六本木」駅出口3徒歩1分 東京メトロ南北線「六本木1丁目」駅1番出口徒歩9分 |
|
オフィス仕様 |
コワーキング30席、1名用BOOTH7室、1名用ROOM54室、2名用ROOM8室、3名用ROOM6室、4名用ROOM3室、6名用ROOM2室、会議室(6名)1室、TELブース2室 |
|
設計会社 |
株式会社アール・イー・エム、合同会社コンベックス |
|
施工会社 |
株式会社アール・イー・エム |
|
運営主体 |
株式会社コスモスイニシア |
|
ホームページ |
■ 『MID POINT浦和』の特徴
1.“街の記憶”を継承した、浦和ならではの空間デザイン
MIDPOINT浦和は、「街の個性を散りばめる」というコンセプトのもと設計された拠点です。かつて銭湯として地域の人々が集っていたこの場所の歴史を受け継ぎ、ラウンジは“街のみんなが集う場所”をテーマに、銭湯をモチーフとしたデザインを採用しています。
2.のれんでつながる、開放感のあるワークプレイス
オープンスペースと個室の仕切りには、あえてドアではなく「のれん」を採用。視線や気配がほどよく行き交う設計により、集中・交流・リラックスを自然に切り替えられる、どこか温かみのあるオフィス空間を実現しました。
3.多様な過ごし方を受け止めるラウンジ設計
サッカー観戦を楽しむ、入居者同士で語らう、ひとりで集中するなど、利用者それぞれのスタイルに寄り添うラウンジを用意。浦和という街の人情に触れながらも、自分らしく働ける環境を提供します。
■『MIDPOINT浦和』物件概要

|
物件名 |
『MID POINT浦和』 |
|
所在地 |
埼玉県さいたま市浦和区高砂1丁目14番7号アイプラスワン3~5F |
|
交通 |
JR京浜東北線「浦和」駅西口 徒歩4分 |
|
オフィス仕様 |
コワーキング40席、1名個室66室、2名個室7室、3名個室4室、4名個室6室、6名個室3室、会議室(6名)1室、会議室(8名)1室 、TELブ―ス3室 |
|
入居開始日 |
2026年3月予定 |
|
設計会社 |
株式会社アール・イー・エム、株式会社GOOD PLACE |
|
施工会社 |
株式会社GOOD PLACE |
|
運営主体 |
株式会社コスモスイニシア |
|
ホームページ |
シェアオフィス『MID POINT(ミッドポイント)』
https://www.cigr.co.jp/mp/

「企業の成長過程における新たなステージへの通過点」をテーマに展開する、1名から利用可能なシェアオフィスです。2018年にオープンした第1号拠点『MID POINT目黒不動前』を皮切りに、東京都および神奈川県で12店舗を展開しています。24時間・365日利用可能、住所利用・法人登記、ポスト利用が可能な個室プラン・ブースプランに加え、ラウンジをご利用いただけるコワーキングプランをご用意しています。また、コミュニティマネージャーが駐在し、ゆるやかなコミュニティ形成や利用者間のコラボレーションを促進すべく、各種イベントなども開催しています。
| コスモスイニシアについて | https://www.cigr.co.jp/
コスモスイニシアは、新築マンション・一戸建、リノベーションマンションなどの住まいを提供するレジデンシャル事業、投資用・事業用不動産の開発・仲介・賃貸管理などを行うソリューション事業、ファミリー・グループでの中長期滞在に対応するアパートメントホテルなどの開発・運営を行う宿泊事業を展開しています。社会の変化とニーズの多様化とともに事業領域を拡大し、都市環境をプロデュースする企業へと進化を続けています。
私たちは、ミッション『「Next GOOD」 お客さまへ。社会へ。⼀歩先の発想で、⼀歩先の価値を。』 の実現に向けて全ての経営活動において共通価値の創造を実践していきます。これからも、期待を超える安心や喜びをもたらす価値を追求し、商品・サービスの提供を通じて社会課題を解決するため、より多くの「Next GOOD」を、お客さま、社会と共に創ってまいります。

コスモスイニシアのオウンドメディア「COSMOStyle(コスモスタイル)」
以 上
このプレスリリースには、メディア関係者向けの情報があります
メディアユーザー登録を行うと、企業担当者の連絡先や、イベント・記者会見の情報など様々な特記情報を閲覧できます。※内容はプレスリリースにより異なります。
すべての画像
