史跡と屋敷町の趣を継ぐ全159邸、重力式石積擁壁の新工法を国内初採用「ブランシエラ南洲門前通り」
~ 10月4日(土)よりモデルルームグランドオープン ~
株式会社長谷工不動産(本社:東京都港区、代表取締役社長:松本 健)は、この度、鹿児島県鹿児島市で「ブランシエラ南洲門前通り」(以下、「本物件」)のモデルルームを10月4日(土)よりグランドオープンしますのでお知らせします。
本物件は、JR日豊本線「鹿児島」駅徒歩8分※1で、天文館エリアまで車7分※2の立地に誕生します。歴史ある上町エリアの石積みを未来に継承するため、本物件では国内初採用の「重力式石積擁壁の新工法」を用いて石積み擁壁を再現しました。立地へのこだわりのほか、専有部では2LDK ~4LDKで66.97㎡~150.46㎡の全19タイプのプランバリエーションを揃え、鎌式デッドボルト錠や防犯センサーなど防犯性を高めたセキュリティ設備を採用しました。共用部は敷地内駐車場100%以上、また、人と人をつなぐコミュニティルームを設置し、ランドリーや宅配ロッカーなどマンションならではのサービスもご用意しております。マンション管理サービスは、理事会を設置しない外部管理者方式をベースに、デジタル技術を活用した「smooth-e」を導入しました。さらに、「低炭素建築物認定」や「ZEH-M Oriented」認証を取得し、住まう方にも環境にも配慮したマンションとなっております。

■「ブランシエラ南洲門前通り」の特長
①史跡と屋敷町の趣を感じながらも、鹿児島市内の中心天文館エリアまで車7分。
古くは「越前(重富)島津家」の上屋敷、近代では地元老舗企業経営者の邸宅跡地に誕生する本物件は、「天文館」まで車7分、「山形屋」まで車8分で、週末の買い物や家族との外食にも嬉しい立地です。20診療科を持つ「鹿児島医療センター」まで車6分、週末にはイベントが開催される地域の憩いの場「かんまちあ」まで徒歩10分。史跡と屋敷町の趣を感じる歴史あるエリアでありながら、世代を問わず生活の質を高める住環境が整っています。




②国内初採用「重力式石積擁壁の新工法」で歴史的石積擁壁を復元
本物件は歴史ある上町エリアの景観を守りつつ安全性を高めるため、既存の石積擁壁を再利用し、新たな重力式石積擁壁として復元しました。この新工法は、石材約1,600個を一つ一つ番号付けし、解体・再組立てを行い、背面にアンカーボルトを打ち込み重力式擁壁と一体化させることで安全性を向上させています。また、都市計画法の技術基準に準拠した擁壁としての許可取得は国内で初採用となります。




③敷地内駐車場100%超、コミュニティルームのほか宅配ロッカーなど多彩なサービスを展開
人と人とのつながりを育めるよう共用部にはコミュニティルームをご用意しました。コミュニティルームにはランドリーを完備し、大型の布団など洗いづらい衣類を洗うことができます。宅配ロッカーや24時間ゴミ出しを採用したほか、EV充電スペース5台を確保した敷地内駐車場を100%超ご用意しました。





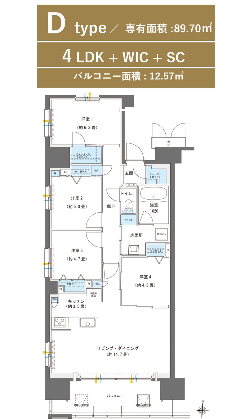
➃セキュリティに特化した安心安全の2LDK~4LDK/66.97㎡~150.46㎡
本物件はファミリータイプを中心に、2LDK~4LDK/66.97㎡~150.46㎡の広さを追求した全19のプランバリエーションを揃えました。Dタイプにはシューズインクロゼットやウォークインクロゼットなどゆとりある収納スペースをご用意しました。また、セキュリティ面では破壊されにくい鎌式デッドボルト錠や侵入者を警報音で防ぐ防犯センサーなど、マンションならではの防犯性の高い設備を採用しました。


⑤長谷工グループの外部管理者サービス「smooth-e(スムージー)」を導入
本物件では昨今注目を集める理事会を設置しない「外部管理者方式」をベースに、デジタル技術を活用したマンション管理サービス「smooth-e(スムージー)」を導入します。従来の理事会方式では、入居者の中から理事を選出し運営に携わりますが、「smooth-e」では長谷工コミュニティが管理者となり、入居者に代わって日常管理など専門的な業務を遂行します。入居者はパソコンやスマートフォンを使って気軽にマンション管理に関わることができます。

⑥「低炭素建築物認定」、「ZEH-M Oriented」認証を取得
本物件は省エネ性能の向上や再生可能エネルギーの活用、ヒートアイランド対策などにも努めており、CO2排出の抑制に貢献した建築物が認証される「低炭素建築物認定」を受けています。また、本物件は強化外皮基準(断熱性能)を満たし、省エネによる一次エネルギー消費量を基準値から20%以上削減を実現する住宅として「ZEH-M Oriented」認証を取得しました。

■現地・マンションギャラリー案内図


■物件概要

|
所在地 |
鹿児島県鹿児島市春日町4-7、4-8、4-16(地番) |
|
交通 |
JR日豊本線「鹿児島」駅徒歩8分 |
|
構造・規模 |
鉄筋コンクリート造 地下1階地上14階建 |
|
販売開始時期 |
2025年11月中旬 |
|
竣工時期 |
2027年1月 |
|
入居予定時期 |
2027年3月 |
|
敷地面積 |
6,429.96㎡ |
|
総戸数 |
159戸(他、フロントオフィス(管理事務室)1戸) |
|
間取り |
2LDK~4LDK |
|
専有面積 |
66.97㎡~150.46㎡ |
|
売主 |
株式会社長谷工不動産、東京建物株式会社 |
|
設計・監理 |
株式会社サニム建築事務所 |
|
施工 |
𠮷原建設株式会社 |
|
公式サイト |
※1 表示距離は、住宅地図をもとに現地(エントランス)から最短距離を計測し、徒歩分数は1分=80m(端数切り上げ)で計算しております。
※2 車分数は時速40kmで算出しており、一般道でGoogle Mapの所要時間検索結果(平日8時想定)を表記しています。
※3 掲載の外観完成予想CGは図面を基に描き起こしたもので、形状・色等は実際とは見え方が異なることや変更する場合があります。なお、外観形状の細部、設備機器等は表現しておりません。また敷地内のみ表現しております。
※4 掲載の写真は2024年12月に撮影したものです。
※5 掲載のコミュニティルームCGは図面を基に描き起こしたもので、形状・色等は実際とは見え方が異なることや変更する場合があります。なお、外観形状の細部、設備機器等は表現しておりません。また敷地内のみ表現しております。
※6 WIC=ウォークインクロゼット、SIC=シューズインクロゼット
※7 従来は区分所有者の「理事長」が担当。
このプレスリリースには、メディア関係者向けの情報があります
メディアユーザー登録を行うと、企業担当者の連絡先や、イベント・記者会見の情報など様々な特記情報を閲覧できます。※内容はプレスリリースにより異なります。
すべての画像