「ディアレイシャス新蒲田」販売開始のお知らせ
羽田空港のエリア価値に寄りそいつつ、多くの学生が集う街に誕生した未来志向のレジデンス。
センチュリー21レイシャス(株式会社レイシャス、本社:東京都中央区、代表:住吉 秀⼀)は、本年6⽉24⽇(金)より東京都大田区において自社で開発・販売・管理を行う投資⽤のブランドマンション「ディアレイシャス新蒲田」の販売を開始いたしました。
- 物件の特徴
- コンセプト
羽田空港への玄関口として全国的な知名度を誇りつつ、東京工科大学や日本工学院専門学校といった大規模アカデミーが展開し数多くの学生が集まる街「蒲田」。都心エリアへの快適なアクセスを実現するJR京浜東北線に寄りそいながら、駅周辺では、街並みの再整備も進展するこの羨望のポジションに、次代のアーバンライフの新基準を創出する未来志向のレジデンスが誕生しました。
コンセプト
- デザイン
ホワイトとダークブラウンのコントラストが鮮やかなファサード。まるで閃光のように壁面を走る2つのラインに導かれて、建物に足を踏み入れると、そこには、天井のライトが演出する柔らかい暖色に包まれ、独創的な迎賓空間が広がり、この邸に住まう主の感度の高さと個性、そしてステータスを物語っています。
ディアレイシャス新蒲田
エントランス
- アクセス
JR京浜東北線が都心中枢をスムーズに縦断し、JR各線はもちろん、東京メトロ各線など主要路線への軽快な接続を実現するアーバンポジション。そして、ビッグターミナル「品川」へのダイレクトアクセスを筆頭に、羽田空港エリアへも爽快にリーチできる圧巻のフットワーク。「蒲田」から始まる多彩なシーンをご堪能ください。
アクセスイメージ
アクセス
- ロケーション
独特の熱気を放ちながらもどこかノスタルジックなムードを纏う商店街を中心に、数多くの商業施設、大学、オフィスなど現代の都市機能の粋が結晶する街、「蒲田」。連日、多くの都会人に感動と興奮を与え続ける、この街並みから、次代のアーバンライフのスタンダードが織りなされていきます。
ロケーションイメージ
ロケーション
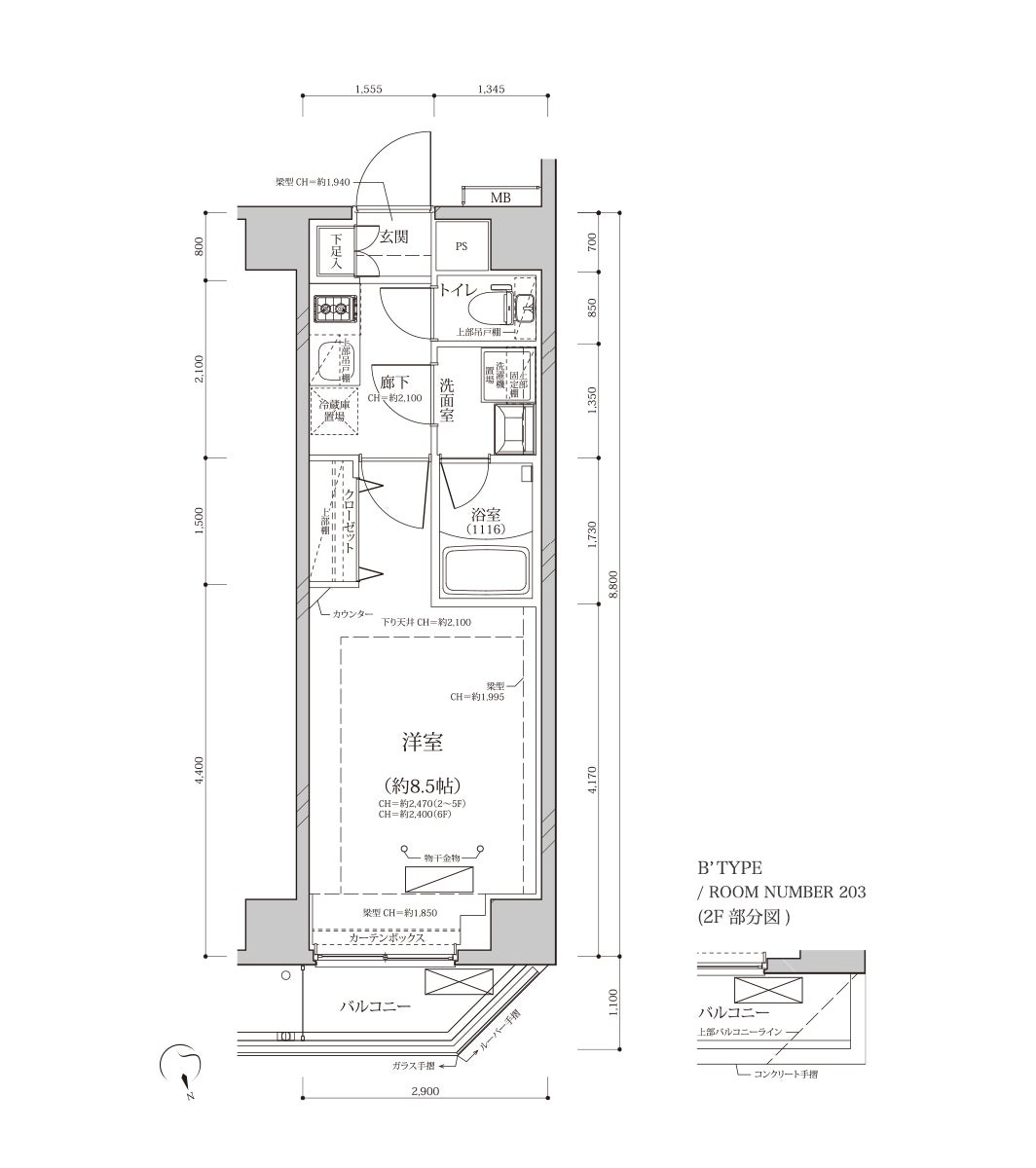
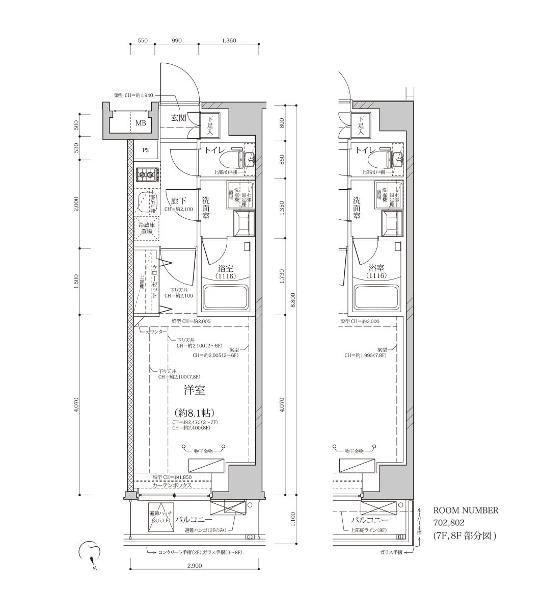
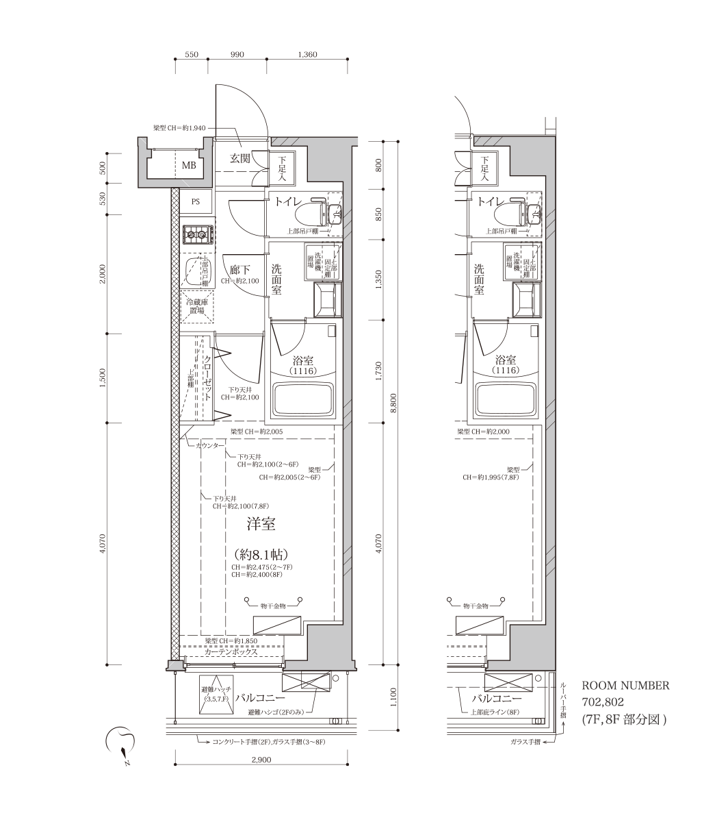
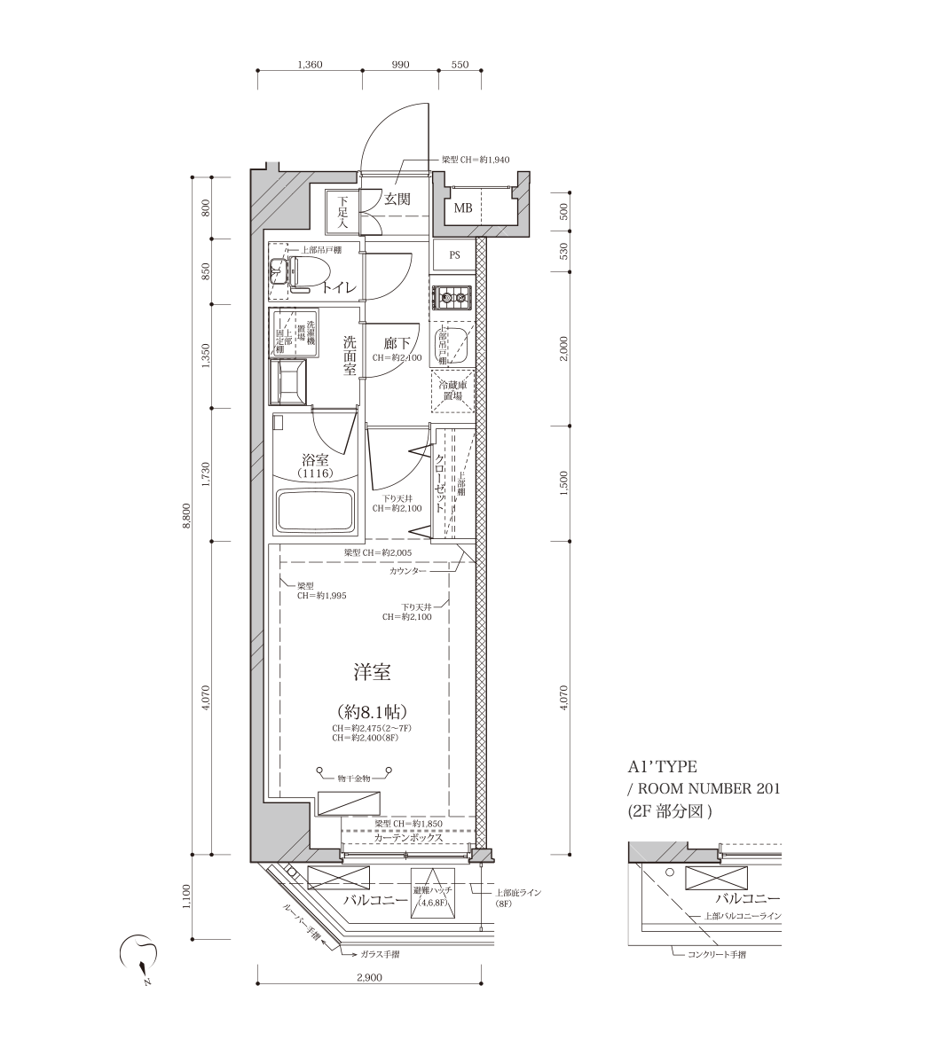
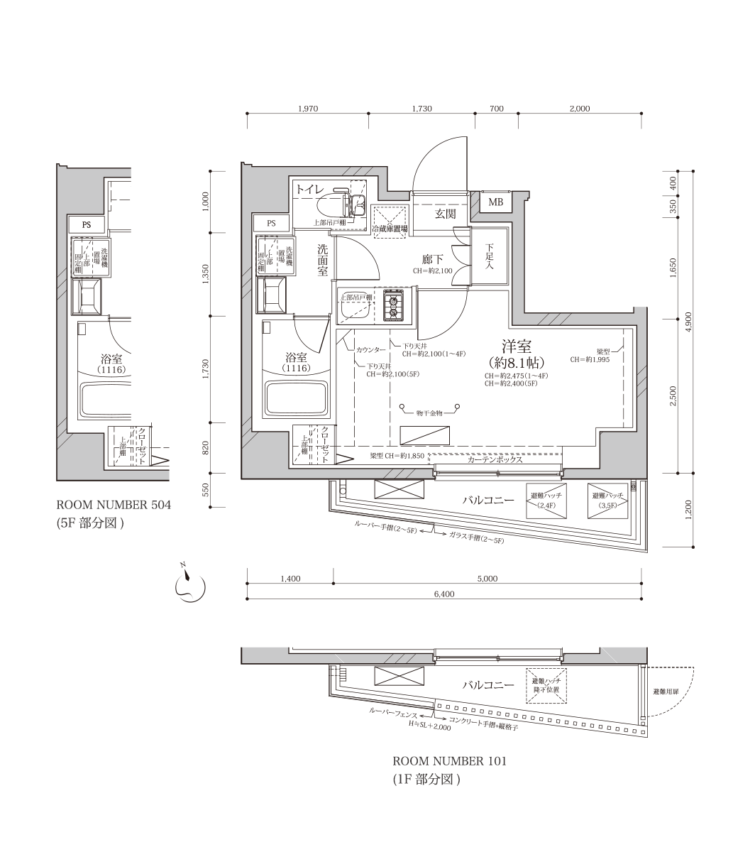
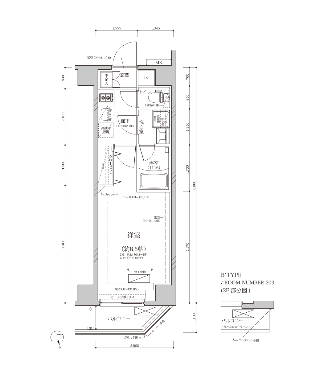
- プラン
A1タイプ
A2タイプ
Bタイプ
Cタイプ
- 物件概要

| 名称 | ディアレイシャス新蒲田 |
| 所在地 | 東京都大田区新蒲田二丁目49番9・49番10(地番) 東京都大田区新蒲田二丁目8番10−○○○号(住居表示) |
| 交通 | 東急多摩川線「矢口渡」駅徒歩6分 JR京浜東北線・東急多摩川線・東急池上線「蒲田」駅徒歩13分 東急池上線「蓮沼」駅徒歩7分 |
| 用途地域 | 準住居地域 |
| 地域・地区 | 防火地域・第三種高度地区 日影規制5−3h/4.0m 最低限度高さ7m 大田区環8沿道地区計画 |
| 建ぺい率 | 68.90%(許容70%) |
| 容積率 | 299.81%(許容300%) |
| 敷地面積 | 208.32㎡(登記簿)208.32㎡(実測)208.32㎡(建築確認) |
| 建築面積 | 143.53㎡ |
| 延床面積 | 809.91㎡ |
| 容積対象床面積 | 624.56㎡ |
| 構造・規模 | 鉄筋コンクリート造、地上8階 |
| 総戸数 | 24戸(他に管理室1戸) |
| 販売戸数 | 24戸 |
| 間取り | 1K(24戸) |
| 専有面積 | 25.41㎡(14戸)~ 25.82㎡(5戸) |
| バルコニー面積 | 2.58㎡(10戸)~ 4.37㎡(5戸) |
| 建築確認番号 | 第R03SHC−H1026号(2021年5月20日) |
| 分譲後の権利形態 | 敷地および建物共用部分は専有面積割合による所有権の共有、建物専有部分は区分所有権 |
| 事業主・売主 | 株式会社レイシャス |
| 設計・監理 | 株式会社 アクシス一級建築士事務所 |
| 施工 | 株式会社 協栄組 |
| 分譲後の管理形態 | 区分所有者全員で管理組合を結成し、管理会社へ委託 |
| 管理会社 | 株式会社レイシャス |
| 設計図書閲覧場所 | 株式会社レイシャス |
| 竣工 | 2022年6月末 |
| 入居予定 | 2022年7月初旬 |
マンションサイト URL︓https://reicious.co.jp/dearreicious/shin-kamata/
- 自社ブランドマンション「ディアレイシャス」シリーズの特徴
センチュリー21レイシャスでは、東京、名古屋を中心に自社ブランドマンション「ディアレイシャスシリーズ」を展開しております。駅徒歩10分以内の好立地で、人気設備を備えた物件は、ご入居者様にも好評となっており、賃貸稼働率98%以上を実現しております。
- センチュリー21レイシャスについて
東京23区を中⼼に、⾃社ブランドの投資⽤マンション開発・販売・管理を⾏っている。将来を⾒すえた資産形成を「真に価値あるマンション経営」という形で提案している。専任のコンサルタントは税務や法律に渡る幅広い知識を習得しており、FP(ファイナンシャルプランナー)や相続の資格保有者も多数在籍。不動産にとどまらず、顧客の資産運用や相続全般の支援を行なっている。
- 延べ1000開催、来場者3000名以上。毎月多数の自社セミナーを開催
年間200講演以上を実施する不動産投資セミナー。東京に限らず札幌・名古屋など都市部を中心にセミナーを開催しています。近年注目が高まっている資産継承、遺産相続に関するセミナーも開催しております。
セミナー情報:https://reicious.co.jp/lp_one/
このプレスリリースには、メディア関係者向けの情報があります
メディアユーザーログイン既に登録済みの方はこちら
メディアユーザー登録を行うと、企業担当者の連絡先や、イベント・記者会見の情報など様々な特記情報を閲覧できます。※内容はプレスリリースにより異なります。
すべての画像
