従来のLDK型の暮らし方からの解放。自由な暮らし方を実現する新リノベーションブランド『Crulib(クルリブ)』始動
富士建設株式会社×grafによる新プロジェクト
富士建設株式会社(取締役: 野口亮、本社 : 大阪市西区、以下当社)は2022年9月5日、ライフスタイルが多様化する時代に住まいの新しい価値を提供することを目指したリノベーションブランド「Crulib(クルリブ)」をスタートしました。
(Crulib WEBサイト https://crulib.jp/)
(Crulib WEBサイト https://crulib.jp/)

「Crulib」は生活者のライフスタイルの変化に目を向けることで生まれた、新しい考え方のリノベーションブランドです。従来の定型化された間取りや住み方に束縛されない、自由な自分らしい暮らし方を実現します。日々新しい視点からの発見があり、暮らしの可能性がどんどん広がることをビジョンに掲げ、今までのLDK型の間取りに問いを与えるような実験的な住まいを目指しました。
当社は創業以来、土木、建築工事を専業にしてきた会社です。この数十年の間に手がけた多くの構造物は、どれも熟練の技術者によるすばらしい仕事であり、それらは今でも私たちの誇りです。しかし、この時代において、新しいものだけをつくり続けていくことに課題を感じています。今あるものに手を加え、新たな価値を与える。それが、これからのものづくりではないかと考えています。
そのような想いから今回、大阪を拠点に活動するクリエイティブユニットgraf(有限会社デコラティブモードナンバースリー、代表 : 服部滋樹)とともに暮らしを本質的に豊かにする新しい住まいのあり方を提示するリノベーションブランドの立ち上げに至りました。
「Crulib」に出会うことで、住む人の暮らしの可能性が広がり、何気ない日常が豊かなものになるように。これからこの新しいリノベーションブランド「Crulib」を展開していく予定です。
- Crulibについて

- 空間について
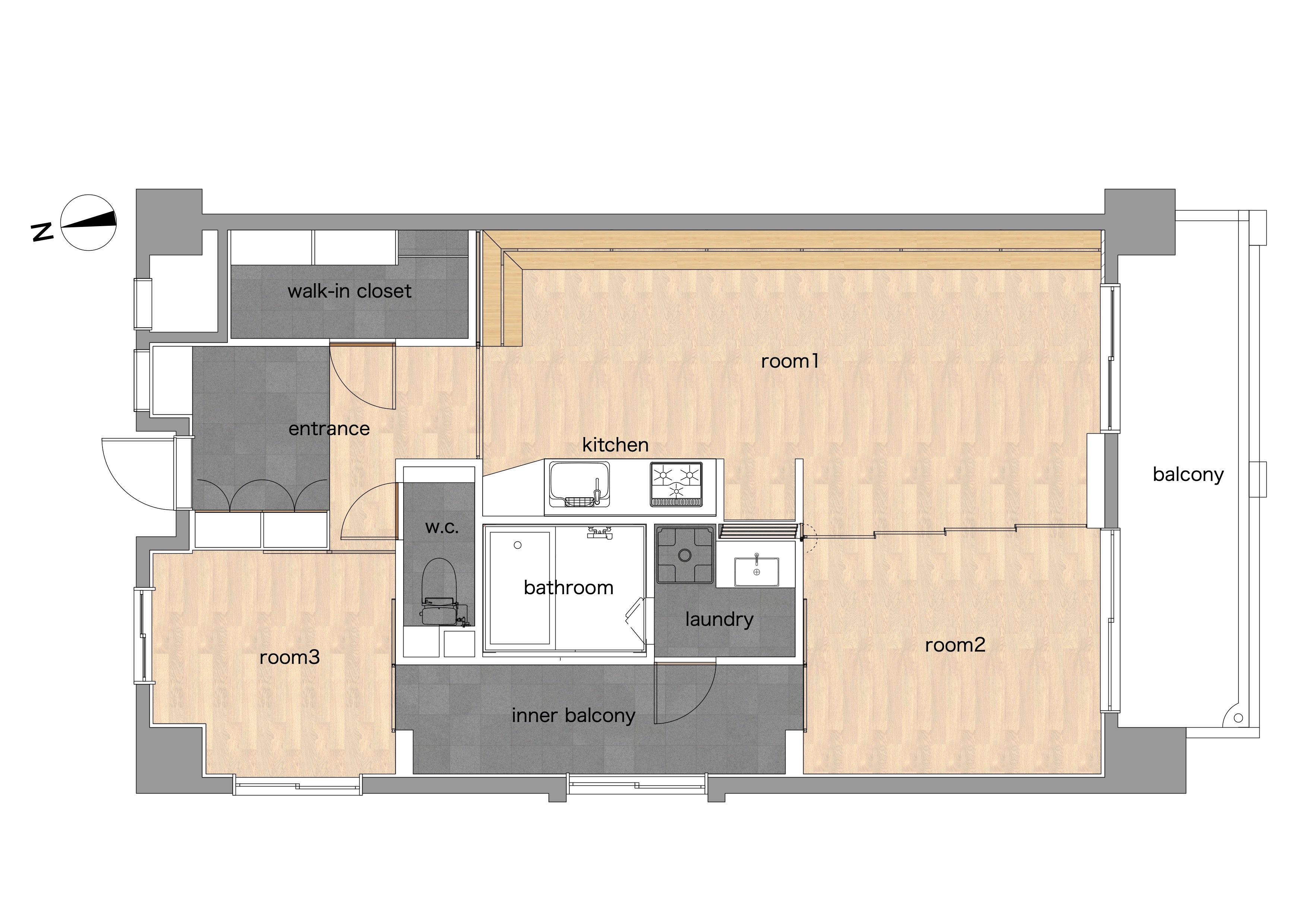
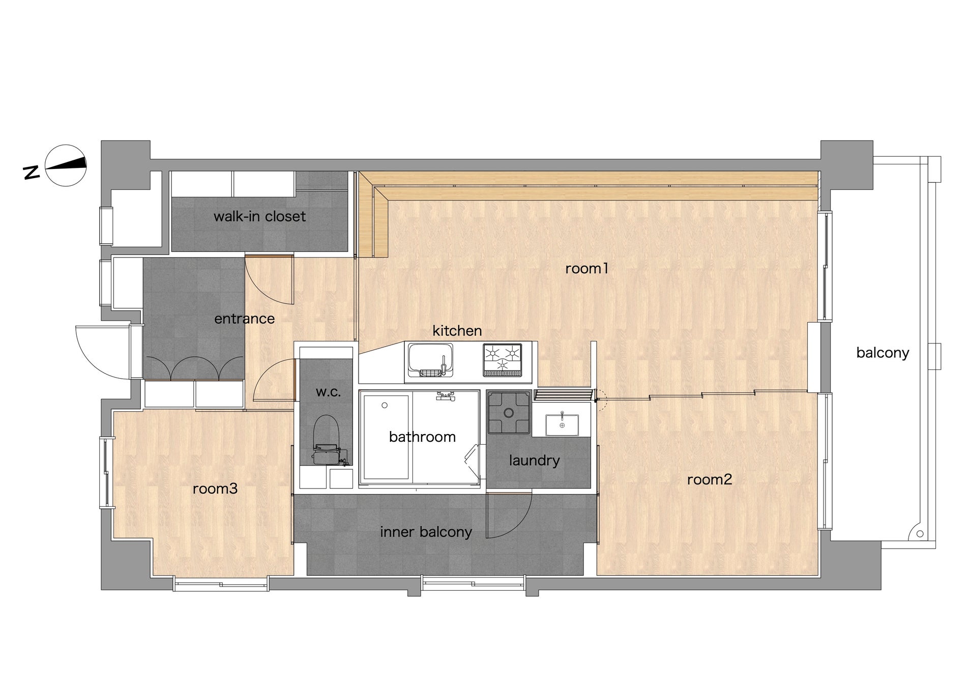
「南堀江一丁目」
専 有 面 積:66.78 ㎡
物 件 構 造:鉄骨鉄筋コンクリート
所在階・階建:地上12階(13階建)
物 件 種 別:住居
築 年 月:1999年2月


- 会社概要

富士建設株式会社(https://www.fujiken-gr.co.jp/)
昭和29年に創業し、現在は主軸事業である建設事業に加え、不動産を保有し賃貸を行う不動産事業も展開。「新しいものをつくり続けるのではなく、いまあるものに手を加え、新たな価値を与える」という考えのもと、商業施設やビル、物流倉庫等の大規模改修工事・メンテナンス工事等の施工を行う。新たな価値の提供と、ストック型社会の実現に資する事業を展開するという方針のもと、リノベーション事業の展開に至る。

(https://www.graf-d3.com/)
大阪を拠点に家具の製造・販売、スペースデザイン、プロダクトデザイン、ブランディングデザイン、グラフィックデザイン、コミュニティデザイン、カフェの運営や食や音楽のイベント運営など、暮らしにまつわる様々な要素を、複数の異業種から生まれるアイディアをもとに実験的に試みながら実践するクリエイティブユニット。企業や地域、社会の課題の発見から解決にいたるまで、クリエイティブの力でサポートしている。
このプレスリリースには、メディア関係者向けの情報があります
メディアユーザーログイン既に登録済みの方はこちら
メディアユーザー登録を行うと、企業担当者の連絡先や、イベント・記者会見の情報など様々な特記情報を閲覧できます。※内容はプレスリリースにより異なります。
すべての画像
