「ディアレイシャス浅間町Ⅲ」販売開始のお知らせ
名古屋の中枢地で叶える魅惑のアーバンライフ。
センチュリー21レイシャス(株式会社レイシャス、本社:東京都中央区、代表:住吉 秀⼀)は、本年7⽉10⽇(日)より愛知県名古屋市において自社で開発・販売・管理を行う投資⽤のブランドマンション「ディアレイシャス浅間町Ⅲ」の販売を開始いたしました。
- 物件の特徴
- コンセプト
名古屋の中枢地で叶える魅惑のアーバンライフ。
中部地方のシンボルシティ名古屋の懐に位置する「浅間町」。ビッグターミナル「名古屋」駅や「栄」駅に寄り添い、快適なアクセス性と豊かな利便性を享受するポジション。名古屋城を臨む洗練の住環境に、新たな都市型邸宅が誕生します。
コンセプト
- デザイン
中層部までのシックな色調とマリオンやバルコニーの気品溢れる白。そして直線美を描く高く伸びたスマートなフォルムが、優美な風格を描くファサードデザイン。名古屋の空に美しく屹立する洗練の佇まいは周囲の景観に溶け込みながらも別格の存在感を醸し出しています。
ディアレイシャス浅間町Ⅲ
エントランス
- アクセス
「名古屋」駅まで6分。メジャースポットへ快適にアクセス。
中部地方のシンボルシティ名古屋の懐に位置する「浅間町」。ビッグターミナル「名古屋」駅や「栄」駅に寄り添い、快適なアクセス性と豊かな利便性を享受するポジション。名古屋城を臨む洗練の住環境に、新たな都市型邸宅が誕生します。
アクセスイメージ
アクセス
- ロケーション
ロケーションイメージ
ロケーション
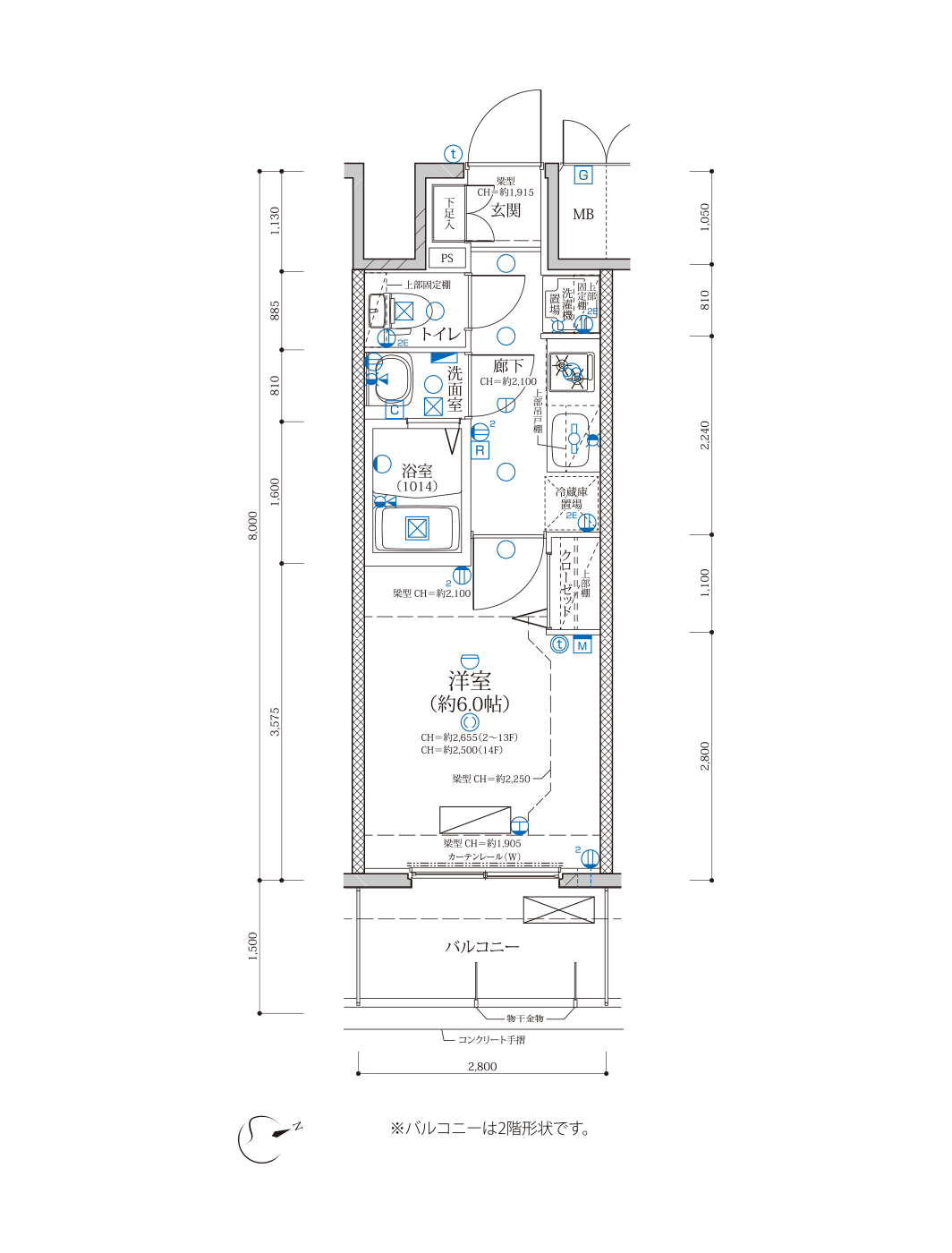
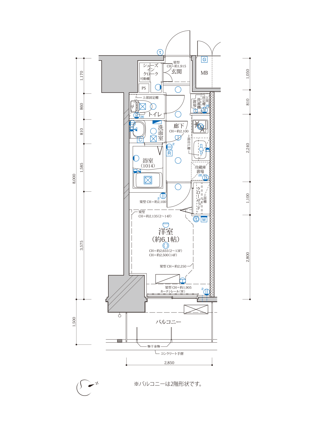
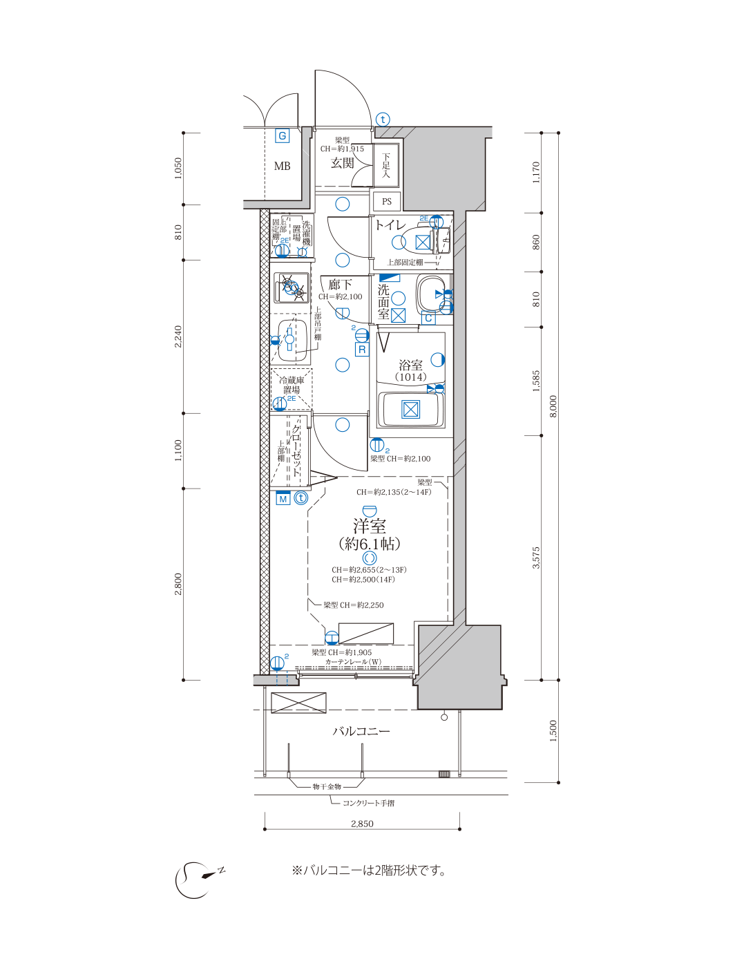
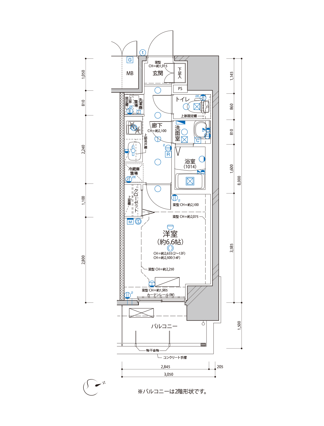
- プラン
Aタイプ
Bタイプ
Cタイプ
Dタイプ
Eタイプ
- 物件概要

| 名称 | ディアレイシャス浅間町Ⅲ |
| 所在地 | 愛知県名古屋市西区花の木一丁目1607番1(地番) 愛知県名古屋市西区花の木一丁目16番15号(住居表示) |
| 交通 | 名古屋市営地下鉄鶴舞線「浅間町」駅徒歩5分 名古屋市営地下鉄鶴舞線「浄心」駅徒歩6分 |
| 用途地域 | 商業地域 |
| 地域・地区 | 防火地域(路線防火)・準防火地域 |
| 建ぺい率 | 44.45%(許容80.00%) |
| 容積率 | 399.43%(許容400.00%) |
| 敷地面積 | 382.55㎡(実測・建築確認対象面積) 382.36㎡(登記簿) |
| 建築面積 | 170.03㎡ |
| 延床面積 | 1,910.47㎡ |
| 容積対象床面積 | 1,528.02㎡ |
| 構造・規模 | 鉄筋コンクリート造、地上14階 |
| 総戸数 | 65戸(他に管理室1戸) |
| 販売戸数 | 65戸 |
| 間取り | 1K(65戸) |
| 専有面積 | 21.66㎡(13戸)~ 25.13㎡(13戸) |
| バルコニー面積 | 4.20㎡(13戸)~ 4.27㎡(26戸) |
| 建築確認番号 | 第H31確認建築CI東海A03283号(令和2年4月2日) |
| 分譲後の権利形態 | 敷地および建物共用部分は専有面積割合による所有権の共有、建物専有部分は区分所有権 |
| 事業主・売主 | 株式会社 レイシャス |
| 設計・監理 | 株式会社 BON設計 |
| 施工 | 株式会社 守谷商会 |
| 分譲後の管理形態 | 区分所有者全員で管理組合を結成し、管理会社へ委託 |
| 管理会社 | 株式会社 レイシャス |
| 設計図書閲覧場所 | 株式会社 レイシャス |
| 竣工 | 2022年7月29日 |
| 入居予定 | 2022年8月上旬 |
マンションサイト URL︓https://reicious.co.jp/dearreicious/sengen-cho-iii/
- 自社ブランドマンション「ディアレイシャス」シリーズの特徴
- センチュリー21レイシャスについて
- 延べ1000開催、来場者3000名以上。毎月多数の自社セミナーを開催
セミナー情報:https://reicious.co.jp/lp_one/
このプレスリリースには、メディア関係者向けの情報があります
メディアユーザーログイン既に登録済みの方はこちら
メディアユーザー登録を行うと、企業担当者の連絡先や、イベント・記者会見の情報など様々な特記情報を閲覧できます。※内容はプレスリリースにより異なります。
すべての画像
