都心に「縁側」のような家族が集う空間を
世界中を旅して辿り着いた、港区元麻布の住宅 「House S」
「外の世界や環境とのリズム 流れる空気や光 空間で得られる体験」を提案するMAAD株式会社(本社:東京都豊島区 代表取締役 村木 計)は、東京都港区元麻布に「House S」を設計デザインいたしました。
現在発売中の株式会社商店建築社刊行「I'm home.(アイムホーム)」最新号、「no.130 2024 JULY」にも掲載されています。

「House S」-都心に「縁側」のような家族が集う空間を-
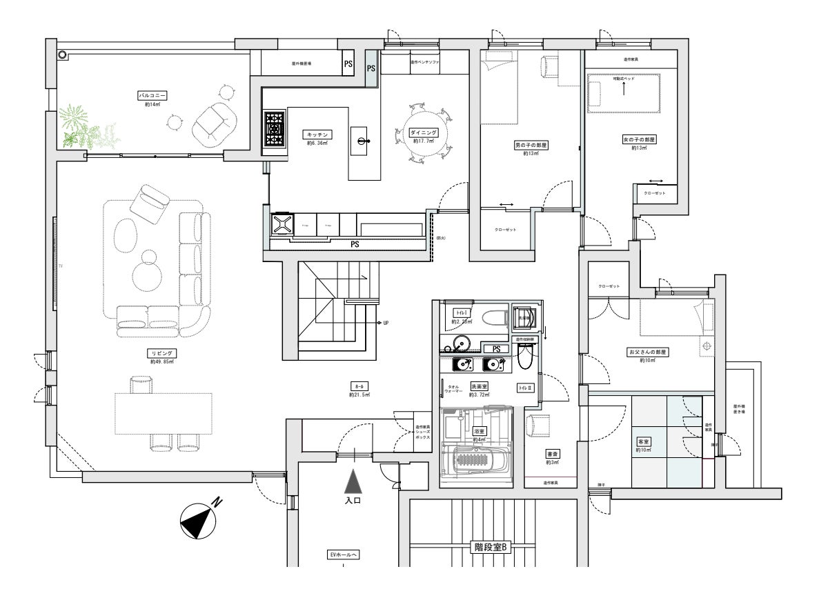
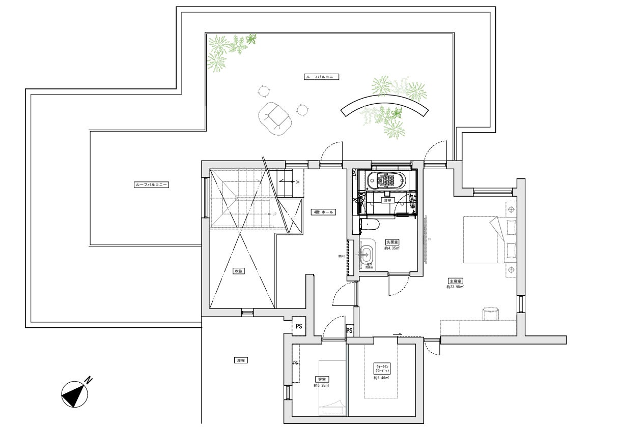
港区元麻布地区の都心にありながら、緑と石畳に囲まれた閑静な低層集合住宅での、自然と調和した穏やかな住環境をつくる全面リフォーム計画。
この住宅は、玄関の吹き抜けが空間を特徴づけていると感じ、自由な平面の中に立体的な空間体験を作りたいと考えた。吹き抜けを主として、各部屋の天井に曲面や傾斜を持たせる計画にすることで、空間体験にリズムを持たせるようにした。
クライアントは、世界中を旅した末、2020年に北海道・ニセコにセカンドハウスを建設。その後、都心で自然との一体感を感じる住まいを求め、元麻布の低層集合住宅に辿り着いた。
日本を旅するなかで親しみを感じた「縁側」のような空間が欲しいという要望から、窓からの光、テラスへの繋がりを最大限に生かし、自然体でいられる住環境を計画した。内装材はシンプルに、自然光と照明計画によって空間の広がりを持たせている。ランドスケープのように、ゆるやかな繋がりを描ける空間を生み出した。
「縁側」というキーワードに端を発し、日本の茶室建築に込められた空間と時間のあり方を、都会のマンションで想起できるような空間を作り上げた。










物件詳細: https://maad.co.jp/works/house-si
▼株式会社商店建築社刊行「I'm home.(アイムホーム)」最新号(no.130)に掲載されています
『I'm home.』は、住まいのインテリアデザインを中心に暮らしにかかわるテーマを幅広く取り上げ、「住まいにおける心地良さとは何か」を提案する、“上質”で“本物”志向のライフスタイルマガジンです。プランニングから素材の選び方、家具のコーディネートまで、ハイエンドな住まいづくりを目指す一般読者だけでなく、建築家やインテリアデザイナーといったプロにも役立つ情報を掲載しています。2000年創刊。1,3,5,7,9,11月の16日発売。
▼MAAD株式会社とは
外の世界や環境とのリズム 流れる空気や光 空間で得られる体験
2012年に建築家・一級建築士である村木計の個人事務所として創業。2023年11月、MAAD株式会社を設立しました。「外の世界や環境とのリズム 流れる空気や光 空間で得られる体験」をコンセプトに、様々な角度からイメージを広げ、ありたい姿を建築として表現し、そこで過ごす人や地域、社会と共にあり続ける空間を提供しています。これまで、商業施設、飲食の店舗、ホテル、オフィス、投資ビルから、個人宅、別荘等の企画、デザイン、設計、ブランディングなど、450件を超える案件を手掛けており、近年では、国内のみならず、海外からのオファーも増加しています。
<お問い合わせ>
▼企業概要
株式会社MAAD
代表取締役(建築家・一級建築士):村木 計
創業:2012年4月
設立:2023年11月
公式サイト:
Facebook:https://www.facebook.com/people/MAAD_Muraki-Architecture-and-Design/100057239867996
Instagram:https://www.instagram.com/maad.incjp
LinkedIn:https://www.linkedin.com/company/maadincjp
note:https://note.com/keimuraki
▼建築家・一級建築士 村木計の略歴
1983年神奈川県横浜市生まれ、幼少期はメキシコやスペインに在住。慶應義塾大学大学院在籍中に隈研吾研究室に所属、師事。2008年WORLD Space Creators Awards 2008 優秀賞を受賞。修士論文のテーマは、ポストモダンを考える - 建築家 ジャン・ヌーベルの詩学に関する分析 “A to Z” -。慶應義塾大学大学院 修士課程修了後、2012年村木計建築計画事務所を創業。2023年11月に法人化、MAAD株式会社を設立し、代表取締役に就任。
本リリースに関するお問い合わせ先
MAAD株式会社 E-mail:pr@maad.co.jp TEL:03-6914-1217
すべての画像
