11月11日・12日の2日間、リノベーション完成内覧会開催
「学芸大学」駅徒歩2分、築44年、約45㎡のマンションの一室で開催します。当日はこだわりポイントの解説も行います。

■内覧会 開催概要
開催日時:11月11日(土)、11月12日(日) 10:00~17:00
物件場所:東急東横線「学芸大学」駅徒歩2分のマンション(約45平米)
費用 :無料
予約方法:予約制となりますので、ホームページよりご予約ください。
https://major-scale.jp/news/1654/
※注意事項
・物件詳細はホームページをご覧ください。
・予約枠には限りがあります。お問い合わせ内容欄に参加人数をご記載ください。
・ご予約が重なった場合は、ご購入検討者または初来場の方を優先してご案内させていただきます。
・予定人数に達し次第、予約を締め切らせていただきます。
・当日ご参加の際に、アンケートのご協力をお願いしております。
・現地までの交通費等は、お客様負担となります。予めご了承ください。


◇こだわりの内装設計
■こだわりポイント1
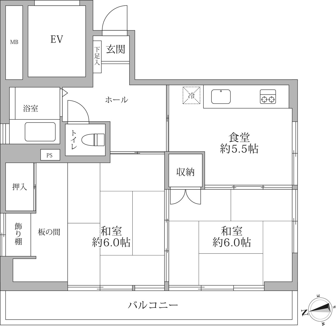
2DKだった室内を、広々としたリビングの1LDKに間取り変更を行っております。
エントランス~ホールは最小限に抑えつつ天井高を取り、間接照明を入れるなどで広々とした印象を確保、そしてアイランド型のキッチンが主役になる開放的な空間へと生まれ変わらせました。
■こだわりポイント2
1LDKではありますが、キッチンには大型のパントリー、洋室にはウォークインクローゼット+ワークスペースにも使える空間を設けて、収納力を確保して、多様な使い方にも対応しています。
お一人ではもちろんのこと、お二人でお住まいいただくことも可能な間取りで、LDKを中心とした生活しやすい空間になっています。

【設計担当:取締役開発部部長 花山 真吾のコメント】
これぞフルスケルトンリノベーションとも言える
インフィルを全て一新した学芸大学プロジェクトがいよいよ完成です。
マンションならではの構造梁は天井の作り方を工夫し、
凹凸の少ないすっきりとした空間に仕上げています。
学芸大学駅からも近く、都心エリアの中でも人気のエリア。
活気のある商店街も至近、住まう方もこのエリアに住んでみたい方にも
今回の学芸大学プロジェクト完成をご体験いただければ幸甚です。
物件概要
交通:東急東横線「学芸大学」駅徒歩2分
構造:鉄筋コンクリート造
築年月:昭和54年12月築
専有面積:(壁芯)45.33㎡
間取り:1LDK
※こちらの物件は販売も行っておりますので、ご購入をご検討いただける方には別途販売のご案内も致します。
◇メジャースケール株式会社について
『住まいに関するすべての窓口』
『リノベーションで隠し事をしない』
「メジャースケール」は、この二本柱を軸に、はじめての不動産購入とリノベに寄り添う、新しいスタイルの不動産会社です。

【会社概要】
社名:メジャースケール株式会社
本社所在地:東京都港区六本木5-16-5 インペリアル六本木1109
代表取締役:吉久 真
事業内容: 不動産における買取再販事業、仲介業、
企画デザイン・リノベーション事業、コンサルティング事業
設立: 2021年11月
HP:https://major-scale.jp/
Instagram:https://www.instagram.com/major_scale.official/
You Tube:https://www.youtube.com/@major_scale.official/videos
このプレスリリースには、メディア関係者向けの情報があります
メディアユーザー登録を行うと、企業担当者の連絡先や、イベント・記者会見の情報など様々な特記情報を閲覧できます。※内容はプレスリリースにより異なります。
すべての画像
