「ディアレイシャス矢場町」販売開始のお知らせ
-
物件の特徴
当物件は投資⽤マンションとして自社で開発・販売・管理を行う、ブランドマンション「ディアレイシャスシリーズ」の67棟目となる物件です。落ち着いた住環境の「矢場町」エリアから名古屋随一の繁華街である「栄」エリアへ散歩気分で歩いて行ける、都市生活者にとって理想的な立地です。
- コンセプト
最寄りの「矢場町」駅から名古屋市営地下鉄を利用することで「名古屋」や「栄」など賑やかな都市中枢部へスマートなアクセス力を満喫することができます。ショッピングやビジネスでも羨望の暮らしをかなえる、爽快なフットワークを実現するポジションです。
- デザイン
中層部までのシックな色調とマリオンやバルコニーの気品溢れる白。そして直線美を描く高く伸びたスマートなフォルムが、優美な風格を描くファサードデザイン。名古屋の空に美しく屹立する洗練の佇まいは周囲の景観に溶け込みながらも別格の存在感を醸し出しています。
ディアレイシャス矢場町
エントランス
- アクセス
名古屋市営地下鉄「矢場町」駅 徒歩9分、「栄」駅まで徒歩12分という立地で、2027年のリニア中央新幹線駅開業を見据えた大規模開発が進行中の「名古屋」駅まで9分という快適なアクセス性と豊かな利便性を享受できます。
アクセスイメージ
アクセス
- ロケーション
彩り豊かな楽しみが集い賑やかな暮らしを享受できる街。
毎日の暮らしを彩る商業施設や緑豊かな久屋大通公園を身近に、賑やかな楽しみに包まれる町「矢場町」。
豊かな人生の舞台に相応しい、充実した環境が整っています。
ロケーションイメージ
ロケーション
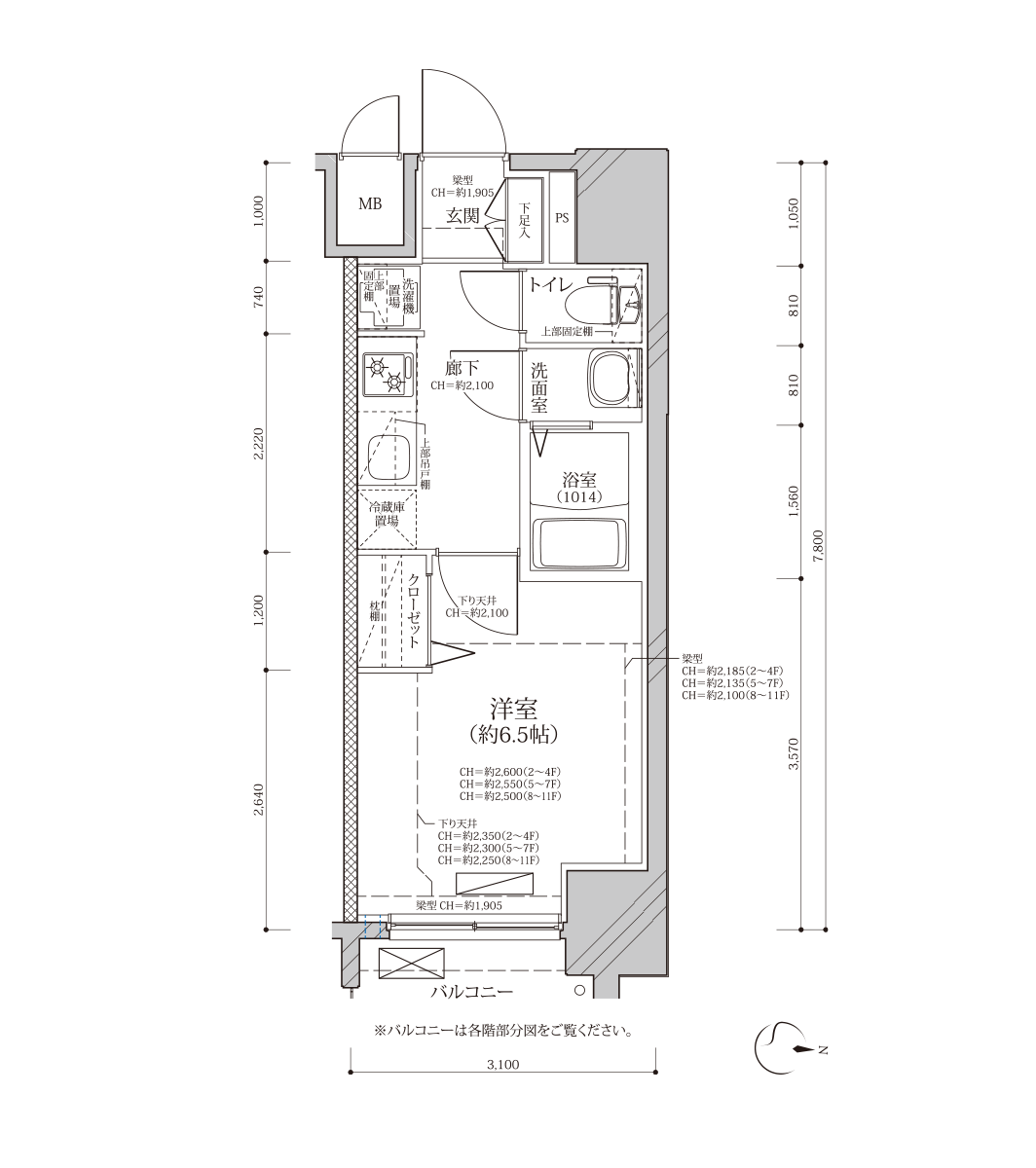
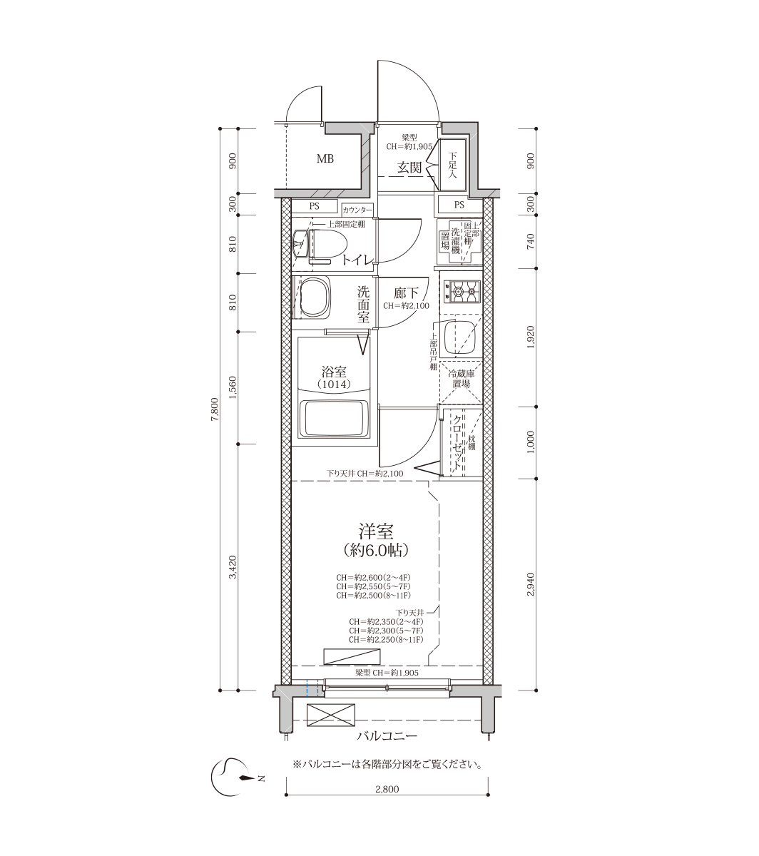
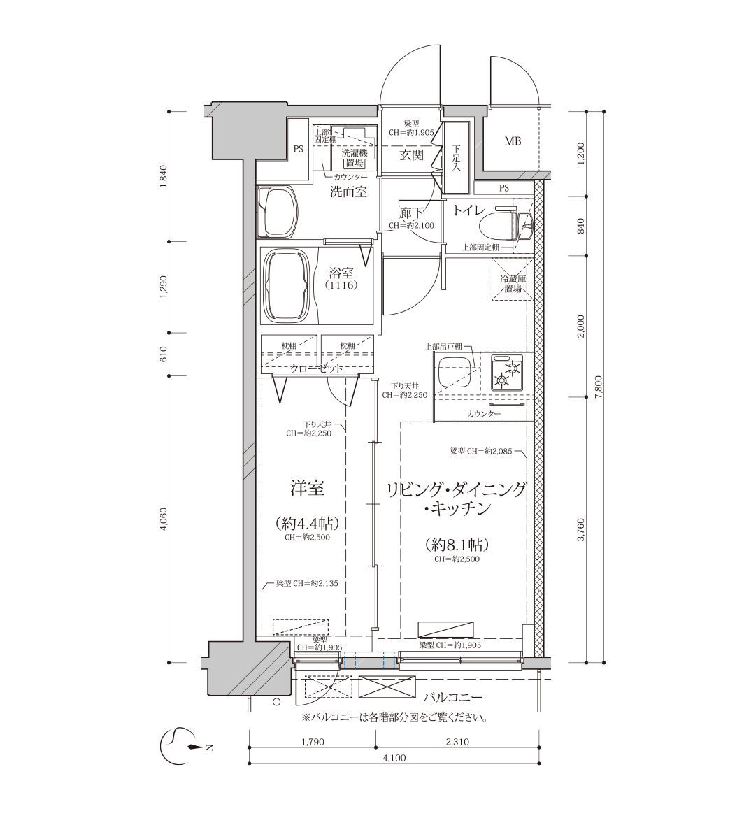
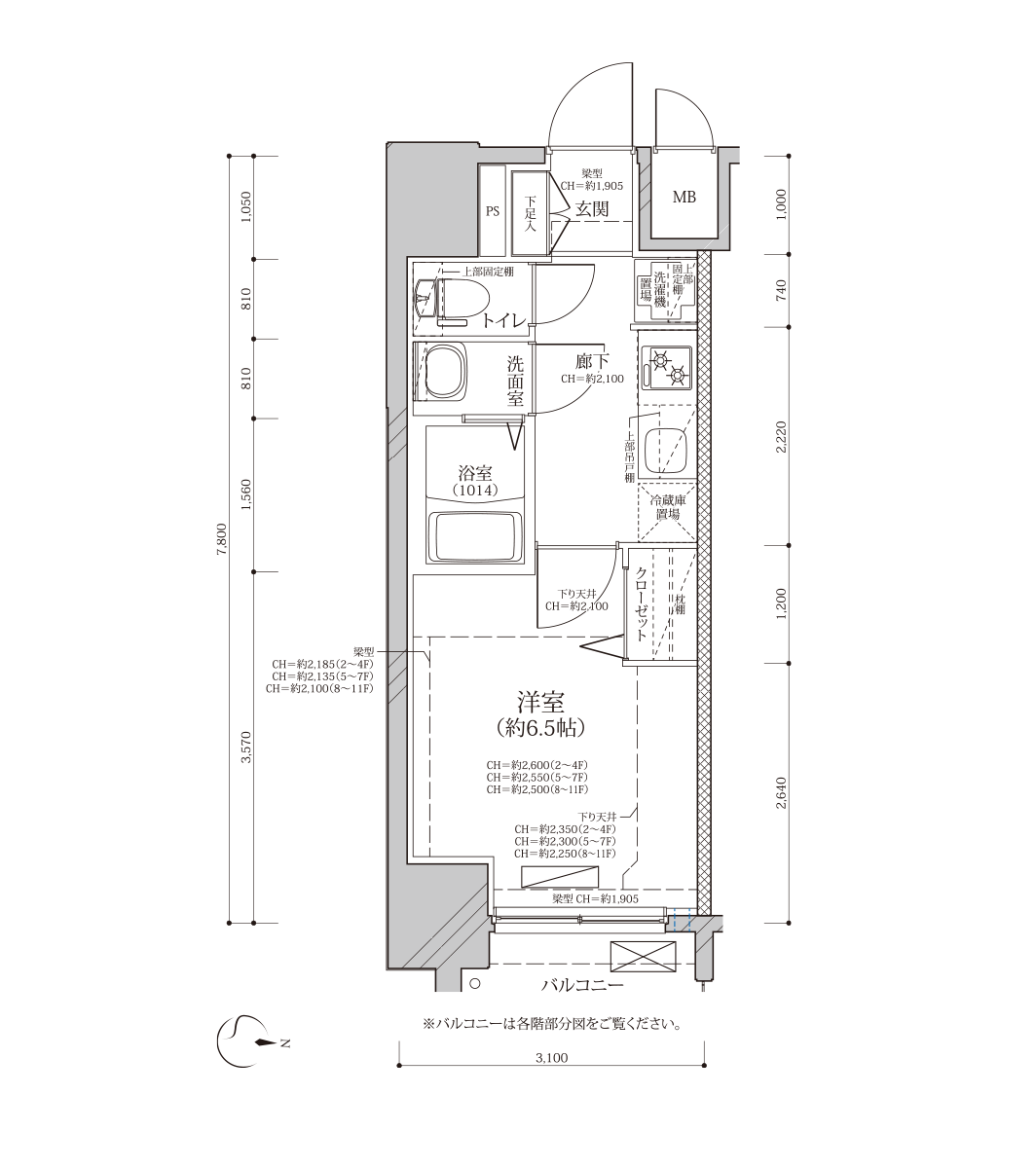
- プラン
Aタイプ
A’タイプ
Bタイプ
B’タイプ
Cタイプ
C’タイプ
Dタイプ
D’タイプ
Eタイプ
E’タイプ
Fタイプ
- 物件概要

| 名称 | ディアレイシャス矢場町 |
| 所在地 | 愛知県名古屋市中区新栄一丁目2713番(地番) 愛知県名古屋市中区新栄一丁目27番13号(住居表示) |
| 交通 |
名古屋市営地下鉄名城線「矢場町」駅徒歩9分、 |
| 用途地域 | 商業地域 |
| 地域・地区 |
準防火地域、駐車場整備地区、緑化地域、 都市機能誘導区域内、居住誘導区域内、特定用途誘導地区 |
| 建ぺい率 | 41.66%(許容100.00%) |
| 容積率 | 401.82%(許容500・400%) |
| 敷地面積 | 633.78㎡(実測) |
| 建築面積 | 264.03㎡ |
| 延床面積 | 3,127.84㎡ |
| 容積対象床面積 | 2,546.60㎡ |
| 構造・規模 | 鉄筋コンクリート造、地上15階 |
| 総戸数 | 100戸(他に管理室1戸) |
| 販売戸数 | 100戸 |
| 間取り | 1K(80戸)、1LDK(20戸) |
| 専有面積 | 21.66㎡(20戸)~ 44.46㎡(4戸) |
| バルコニー面積 | 3.64㎡(20戸)~ 7.98㎡(4戸) |
| 建築確認番号 | 第H31確認建築CI東海A03237号(令和2年2月28日) |
| 分譲後の権利形態 | 敷地および建物共用部分は専有面積割合による所有権の共有、建物専有部分は区分所有権 |
| 事業主・売主 | 株式会社 レイシャス |
| 設計・監理 | タナカアーキテクト株式会社 |
| 施工 | 木下建設株式会社 |
| 分譲後の管理形態 | 区分所有者全員で管理組合を結成し、管理会社へ委託 |
| 管理会社 | 株式会社 レイシャス |
| 設計図書閲覧場所 | 株式会社 レイシャス |
| 竣工 | 2022年8月下旬 |
| 入居予定 | 2022年9月上旬 |
マンションサイト URL︓https://reicious.co.jp/dearreicious/yaba-cho/
- 自社ブランドマンション「ディアレイシャス」シリーズの特徴
センチュリー21レイシャスでは、東京、名古屋を中心に自社ブランドマンション「ディアレイシャスシリーズ」を展開しております。駅徒歩10分以内の好立地で、人気設備を備えた物件は、ご入居者様にも好評となっており、賃貸稼働率98%以上を実現しております。
- センチュリー21レイシャスについて
東京23区を中⼼に、⾃社ブランドの投資⽤マンション開発・販売・管理を⾏っている。将来を⾒すえた資産形成を「真に価値あるマンション経営」という形で提案している。専任のコンサルタントは税務や法律に渡る幅広い知識を習得しており、FP(ファイナンシャルプランナー)や相続の資格保有者も多数在籍。不動産にとどまらず、顧客の資産運用や相続全般の支援を行なっている。
- 延べ1000開催、来場者3000名以上。毎月多数の自社セミナーを開催
年間200講演以上を実施する不動産投資セミナー。東京に限らず札幌・名古屋など都市部を中心にセミナーを開催しています。近年注目が高まっている資産継承、遺産相続に関するセミナーも開催しております。
セミナー情報:https://reicious.co.jp/lp_one/
このプレスリリースには、メディア関係者向けの情報があります
メディアユーザー登録を行うと、企業担当者の連絡先や、イベント・記者会見の情報など様々な特記情報を閲覧できます。※内容はプレスリリースにより異なります。
すべての画像
