「ディアレイシャス下高井戸」販売開始のお知らせ
センチュリー21レイシャス(株式会社レイシャス、本社:東京都中央区、代表:住吉 秀⼀)は、本年11⽉13⽇(日)より東京都杉並区において自社で販売・管理を行う投資⽤のブランドマンション「ディアレイシャス下高井戸」の販売を開始いたしました。
- 物件の特徴
当物件は投資⽤マンションとして自社で販売・管理を行う、ブランドマンション「ディアレイシャスシリーズ」の69棟目となる物件です。京王線「下高井戸」駅徒歩3分という駅近立地です。都心への利便性と豊潤な緑。恵まれた都市生活を実現できるポテンシャルの高い場所でもあります。
- デザイン
街の風景に調和したフォルム。優しさと洗練を併せ持つファザードデザインは、上質な日常を印象づかます。温もりと安心感を与える来賓空間は、心を落ち着かせてくれる時間を提供してくれます。
ディアレイシャス下高井戸
エントランス
- アクセス
徒歩3分の「下高井戸」駅から京王線を利用し、「新宿」へ直通11分、「渋谷」も13分と、ふたつのビックターミナルステーションへ身近にアクセスできるのが魅力です。
また、東急世田谷線を利用すれば、「三軒茶屋」へもスムーズに移動できます。信憑性の高いアクセス力は、忙しい毎日を確実にサポートしてくれます。
下高井戸駅
アクセス
- ロケーション
豊かな日常を実現する、満ち足りた住環境
食料品、飲食店、医療関係や美容関係から物販、サービス業まで数多くのお店が軒を連ねる「下高井戸商店街」が駅前の中心的存在。スーパー西友やスーパーバリューなど普段使いのお店も充実しています。また、60年以上の歴史があるミニシアター「下高井戸シネマ」もこの街の象徴的存在です。
癒しと憩いをもたらす、緑の風景
江戸時代に飲料水を供給するためにつくられた上水路の玉川上水。<ディアレイシャス下高井戸>の目の前にある玉川上水第三公園もその一部となっています。また、日大文理学部前の杉並木も有名なスポットで、美しい緑や木々に囲まれた住宅地として住みやすい環境が整っています。
下高井戸商店街
杉並区立玉川上水第三公園(70m)
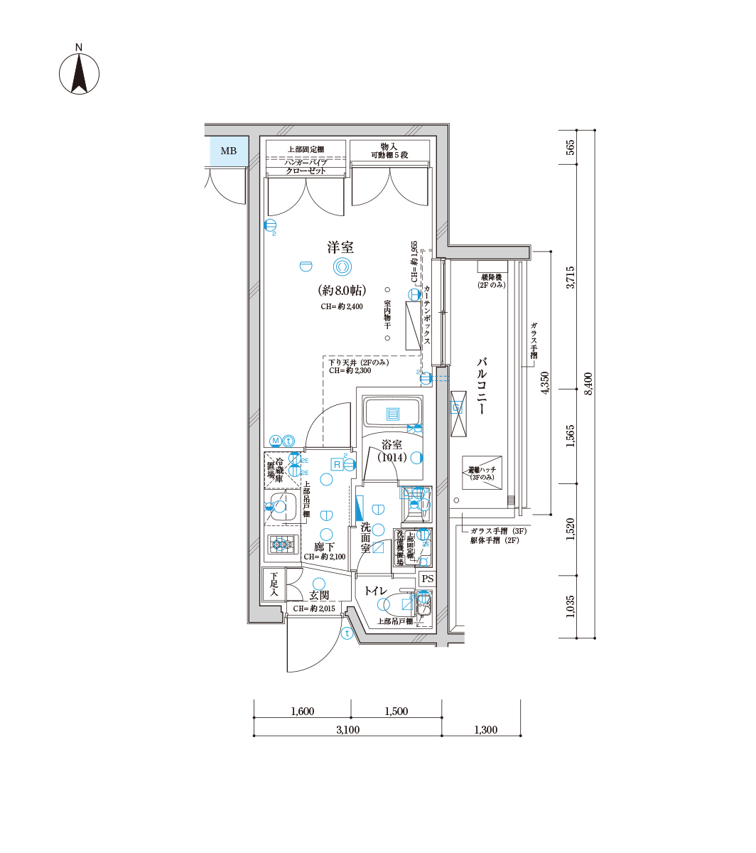
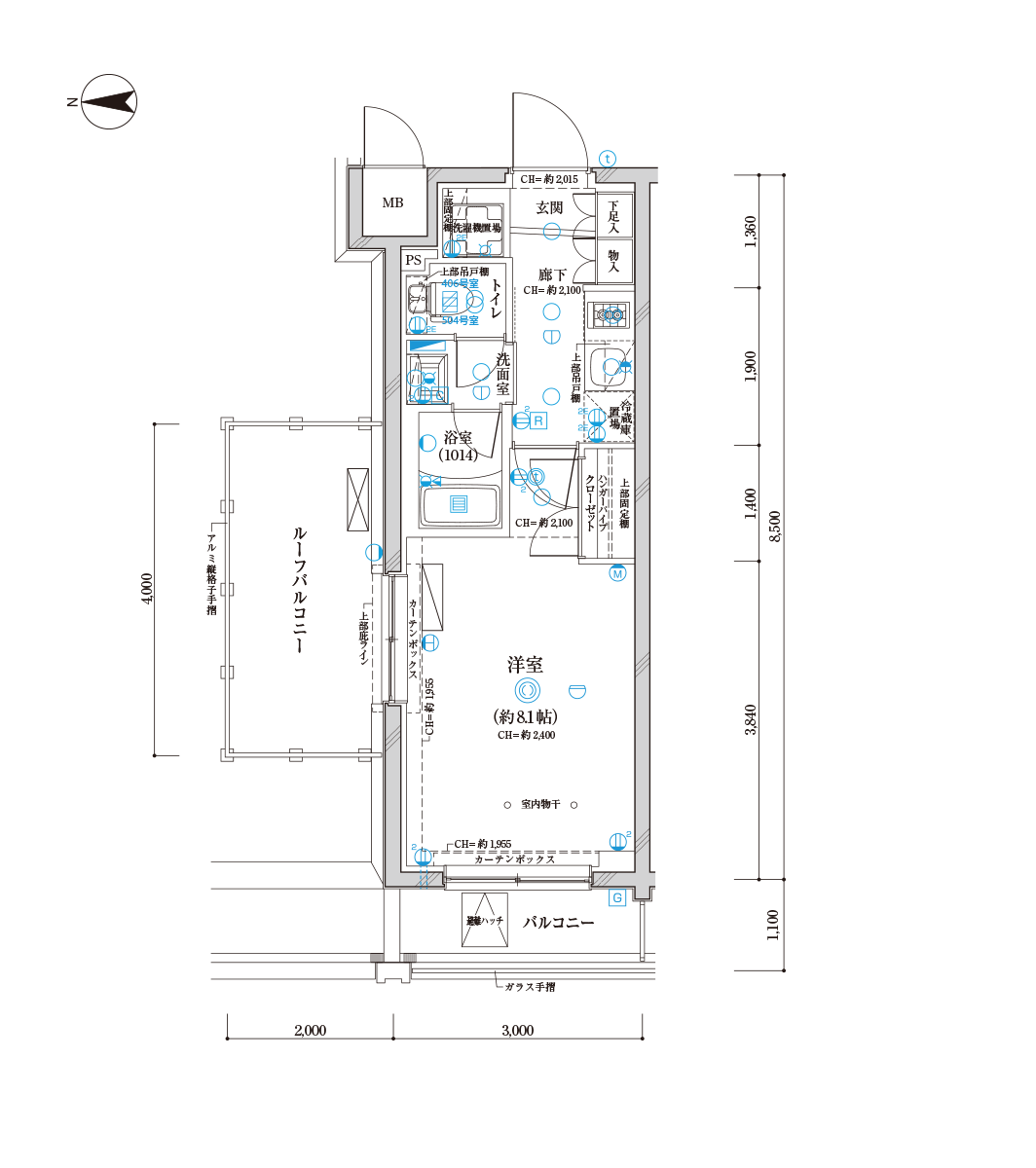
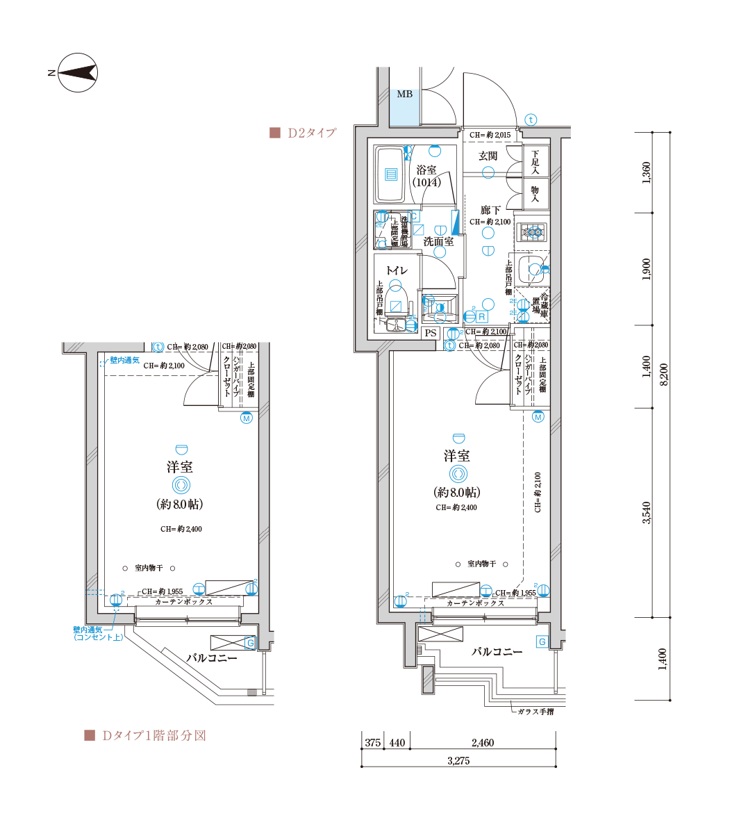
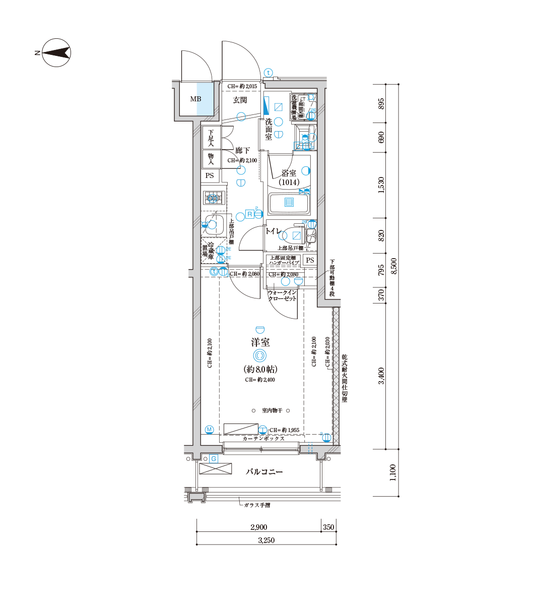
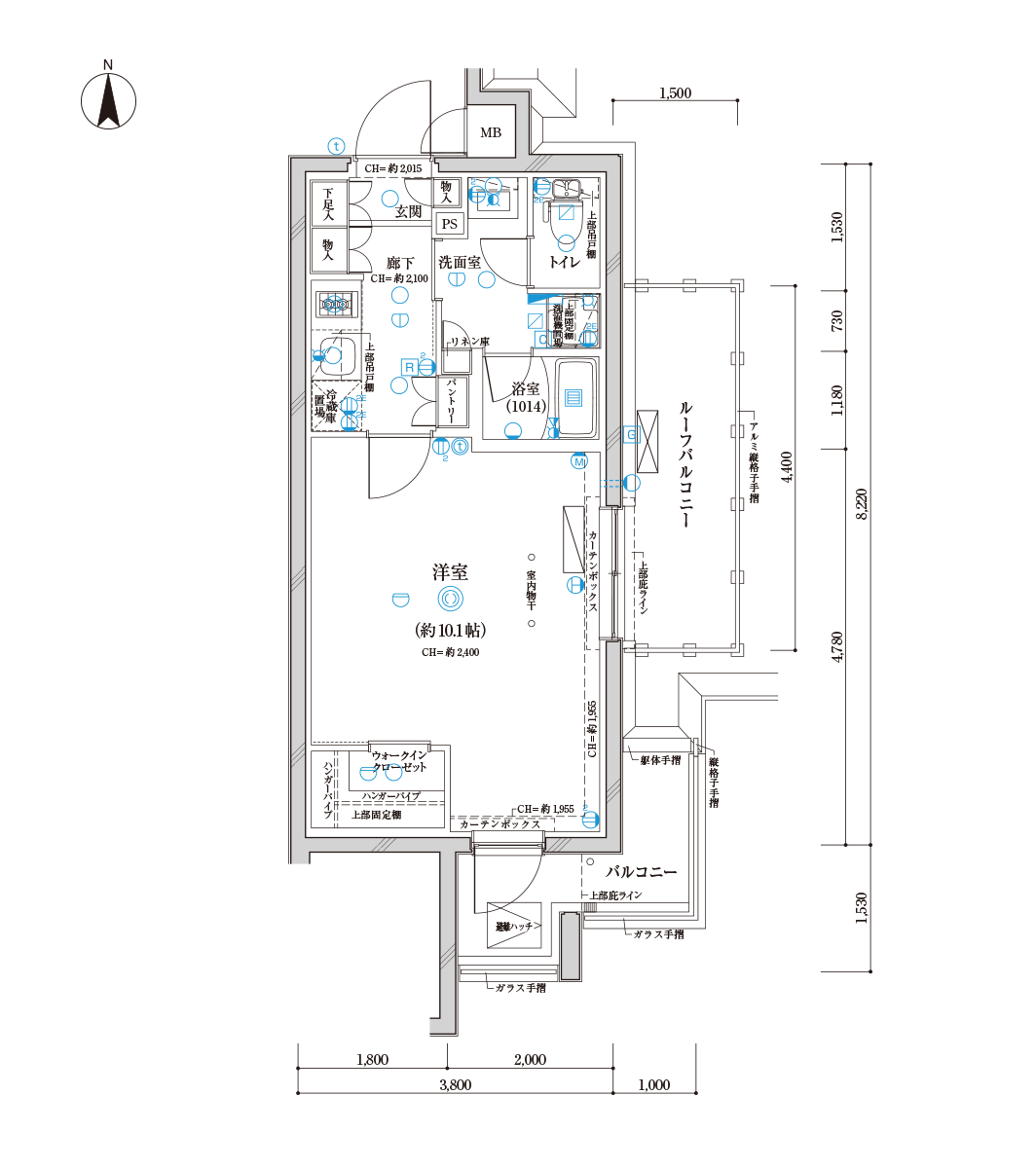
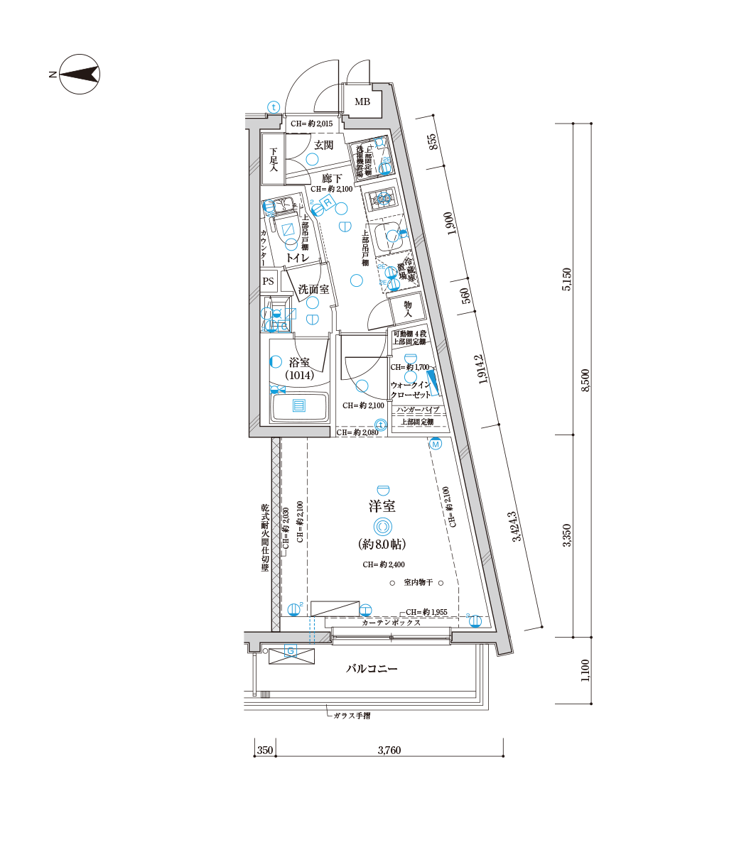
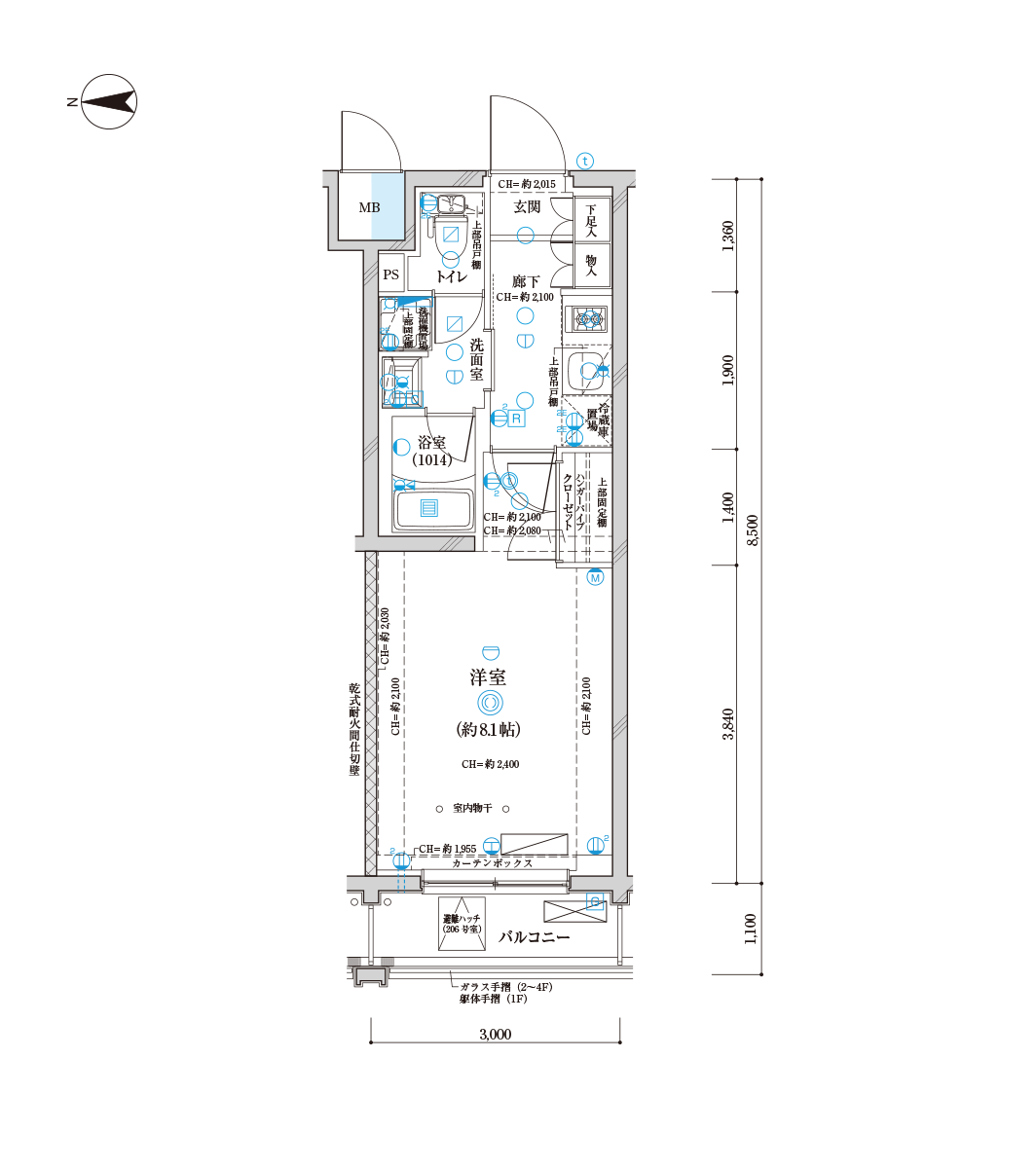
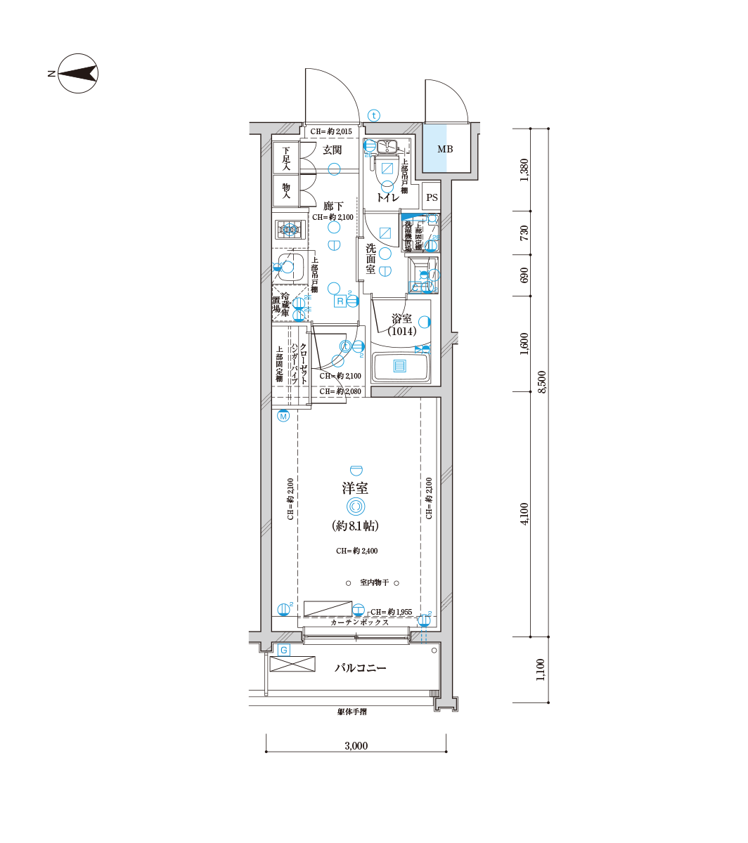
- プラン
Aタイプ
Bタイプ
Cタイプ
C’タイプ
C2タイプ
C3タイプ
D・D2タイプ
Eタイプ
Fタイプ
Gタイプ
Hタイプ
- 物件概要

| 名称 | ディアレイシャス下高井戸 |
| 所在地 | 東京都杉並区永福一丁目68番6(地番) 東京都杉並区永福一丁目6番18号(住居表示) |
| 交通 | 京王線「下高井戸」駅徒歩3分 東急世田谷線「下高井戸」駅徒歩4分 |
| 用途地域 | 第1種低層住居専用地域・第1種中高層住居専用地域 |
| 地域・地区 | 準防火地域・第1種高度地区・第2種高度地区 |
| 建ぺい率 | 66.46%(許容69.68%) |
| 容積率 | 193.65%(許容198.08%) |
| 敷地面積 | 556.19㎡(登記簿) 558.39㎡(実測) 558.39㎡(建築確認) |
| 建築面積 | 371.10㎡ |
| 延床面積 | 1,331.07㎡ |
| 容積対象床面積 | 1,081.30㎡ |
| 構造・規模 | 壁式鉄筋コンクリート造、地上5階 |
| 総戸数 | 41戸(他に管理室1戸) |
| 販売戸数 | 41戸 |
| 間取り | 1K(41戸) |
| 専有面積 | 25.40㎡(3戸)~31.71㎡(1戸) |
| バルコニー面積 | 2.29㎡(3戸)~5.65㎡(2戸) |
| ルーフバルコニー面積 | 6.60㎡(1戸)・8.0㎡(2戸) |
| テラス面積 | 0.97㎡(1戸)・1.82㎡(1戸) |
| 建築確認番号 | 第FBC建確済21‐0683号(令和3年10月29日) |
| 分譲後の権利形態 | 敷地および建物共用部分は専有面積割合による所有権の共有、建物専有部分は区分所有権 |
| 売主 | 株式会社 レイシャス |
| 設計・監理 | 一級建築士事務所 株式会社eastA |
| 施工 | 共立建設株式会社 |
| 分譲後の管理形態 | 区分所有者全員で管理組合を結成し、管理会社へ委託 |
| 管理会社 | 株式会社 レイシャス |
| 設計図書閲覧場所 | 株式会社 レイシャス |
| 竣工 | 2022年11月30日 |
| 入居予定 | 2022年12月上旬 |
- 自社ブランドマンション「ディアレイシャス」シリーズの特徴
センチュリー21レイシャスでは、東京、名古屋を中心に自社ブランドマンション「ディアレイシャスシリーズ」を展開しております。駅徒歩10分以内の好立地で、人気設備を備えた物件は、ご入居者様にも好評となっており、賃貸稼働率98%以上を実現しております。
- センチュリー21レイシャスについて
東京23区を中⼼に、⾃社ブランドの投資⽤マンション開発・販売・管理を⾏っている。将来を⾒すえた資産形成を「真に価値あるマンション経営」という形で提案している。専任のコンサルタントは税務や法律に渡る幅広い知識を習得しており、FP(ファイナンシャルプランナー)や相続の資格保有者も多数在籍。不動産にとどまらず、顧客の資産運用や相続全般の支援を行なっている。
- 延べ1000回開催、来場者3000名以上。毎月多数の自社セミナーを開催
年間200講演以上を実施する不動産投資セミナー。東京に限らず札幌・名古屋など都市部を中心にセミナーを開催しています。近年注目が高まっている資産継承、遺産相続に関するセミナーも開催しております。
セミナー情報:https://reicious.co.jp/lp_one/
このプレスリリースには、メディア関係者向けの情報があります
メディアユーザーログイン既に登録済みの方はこちら
メディアユーザー登録を行うと、企業担当者の連絡先や、イベント・記者会見の情報など様々な特記情報を閲覧できます。※内容はプレスリリースにより異なります。
すべての画像
