EV充電器の基礎工事がわずか10分!日東工業製Pit-2G専用の置き基礎を6月3日(月)より販売を開始します!
5月29日(水)~31日(金)の3日間、東京ビッグサイトで開催される「JECAFAIR(電設工業展)2024」の日東工業ブースにてご覧いただけます!
このPit-2G(ピットツージー)シリーズ専用の置き基礎「NTV600」は、5月29日(水)~31日(金)の3日間、東京ビッグサイトにておこなわれる「JECAFAIR(電設工業展)2024」の日東工業ブース(東1ホール 1-46)にてご覧いただけます。実物を通してご確認いただくことが出来るため、省施工などの特徴をご覧いただけます。皆さまのご来場を心よりお待ち致しております。

☞ 施工動画はこちら
▶開発の背景
政府は、2035年までに新車販売のすべてを電動車率100%にする目標を掲げており、EV充電器においては2030年までに全国の設置数をこれまでの15万の目標から、2023年8月には30万口へと大幅に引き上げました。その一方で効果的な充電スポットの増設を目指し、1口あたりに対する設置補助金の採択基準は、より厳格化しています。材料費、人件費の高騰の中で、EV充電器の基礎工事は施工業者、施設運営者にとって大きな費用、労務の負担となっている他、安全性が担保されない安易な工事は事故に繋がる危険性もあります。こうした課題を解決するため3社のノウハウを集結し、安全で且つ、省コスト、省施工で基礎工事が行えるEV充電スタンド用置き基礎「NTV600」をPit-2G専用として開発、製品化に至りました。
▶NTV600の特長
信頼の安全性
・1階及び地表への設置に対しては、耐震クラスAを実現。アンカーを併用することでアスファルト舗装面でも
耐震クラスSを確保しています。 ※1
・風速40m/sの「猛烈な風」の中でも十分な耐風圧強度を満足しています。 ※2
※1 耐震クラスは建築設備耐震設計・施工指針2014年度版に準じます。
Pit-2G専用の自立スタンドに本体2台を取り付ける場合、充電ケーブル長さ7mまでは基準をクリアします。
充電ケーブル長さ10mの場合は基準をクリアしませんのでご注意ください。
Pit-2Gオプションのケーブルマネージメントはご利用いただけません。
※2 参考資料:気象庁 風の強さと吹き方より
https://www.jma.go.jp/jma/kishou/know/yougo_hp/kazehyo.html
設置コストの大幅低減
・設置場所の掘削、コンクリート打設等の土木工事必要とせず、従来工法の約1/2以下(当社比)の費用で設置
が可能となりました。
施工時間の大幅短縮
・1ピースが30㎏以下の4分割構造(合計120㎏以下)で構成されており、1人で搬入、設置、施工が可能です。
・従来工法で2日以上を要していた基礎工事がわずか10分程度で完了します。
高い自在性
・四方のいずれからも露出配線できるような入線口を設けており、設置場所の調整や撤去時の原状回復が容易で
す。
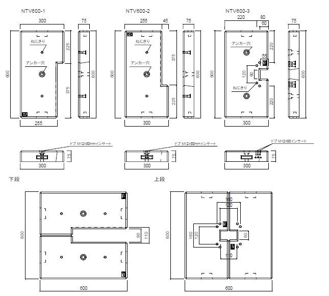
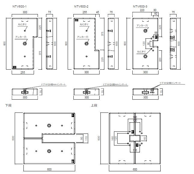
▶製品概要


■販売・施工についてのお問い合わせ先
南海電設株式会社 ソリューション営業課
メールアドレス:info-base@ev-chargeconnect.com
EV充電サービス特設サイトURL: https://ev-chargeconnect.com/
■EV充電器についてのお問い合わせ先
日東工業株式会社 EVインフラ事業室 マーケティング課
メールアドレス:ev.contactnet.mark@nito.co.jp
EV用充電設備特設サイトURL:https://www.nito.co.jp/quick/evstand/
■製造・品質についてのお問い合わせ先
東洋ベース株式会社
URL:http://www.toyo-base.co.jp/contact/
このプレスリリースには、メディア関係者向けの情報があります
メディアユーザー登録を行うと、企業担当者の連絡先や、イベント・記者会見の情報など様々な特記情報を閲覧できます。※内容はプレスリリースにより異なります。
すべての画像
