『 deigo -泥娯-[ ISHIGAKI ]』雪駄×スニーカー「unda-雲駄-」のgoyemonが、石垣島に宿泊施設をプロデュース|2022年9月1日(木)グランドオープン
“泥”をコンセプトにした、高級一棟貸し別荘「deigo-泥娯-」。

高級一棟貸し別荘「 deigo -泥娯- 」
市街地のほど近くに位置する琉球造りの平家を改装した一棟貸し宿。
海を見ながらのんびりするのも良いけれど、宿にこもってこだわりの家具や建築を楽しみながら “時間” を体感する。そんな新しい石垣の歩き方の提案します。
琉球王国時代に現在の様式に発展したとされる沖縄の伝統的琉球建築。
様式や素材・技術などで他地域の日本建築との類似点が多く見られるが、風土・社会・資源等の面で異なる為に独自の発展が見られます。そんな琉球建築をgoyemon流に解釈し、再定義。
紐解くと「土(泥)」に行き着きました。
“ 泥を娯しむ。”
17世紀後半から作られ、今日まで用いられる沖縄の伝統的な赤瓦。
南部一帯で取れる「クチャ」という泥岩を使ってつくられています。柔らかく扱いやすいクチャは、泥パックなどの化粧品としても使われるほど。
そんな沖縄の人には馴染みの深い「泥」を旗印とし、現在の建築様式になぞらえ落とし込みを図りました。

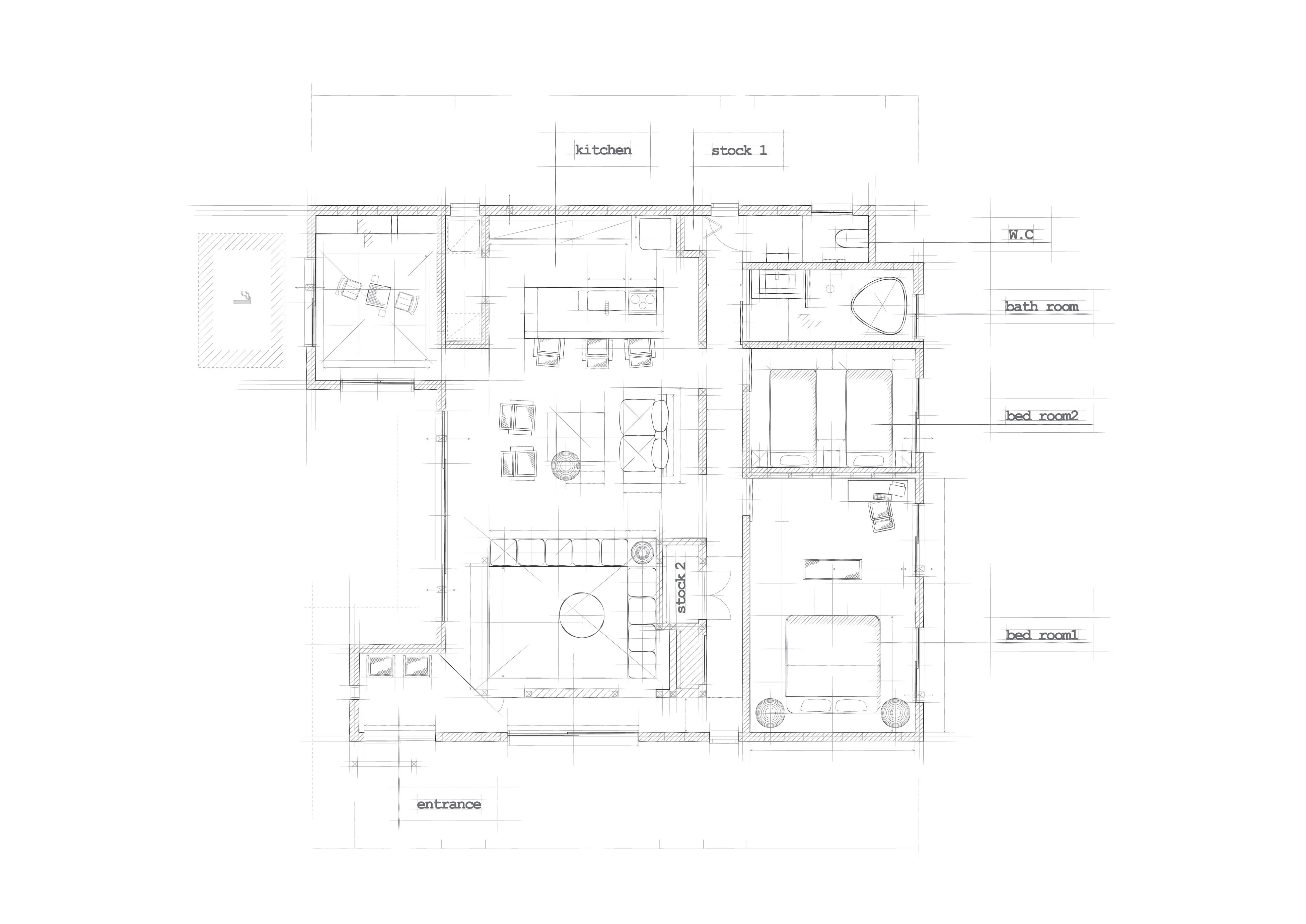
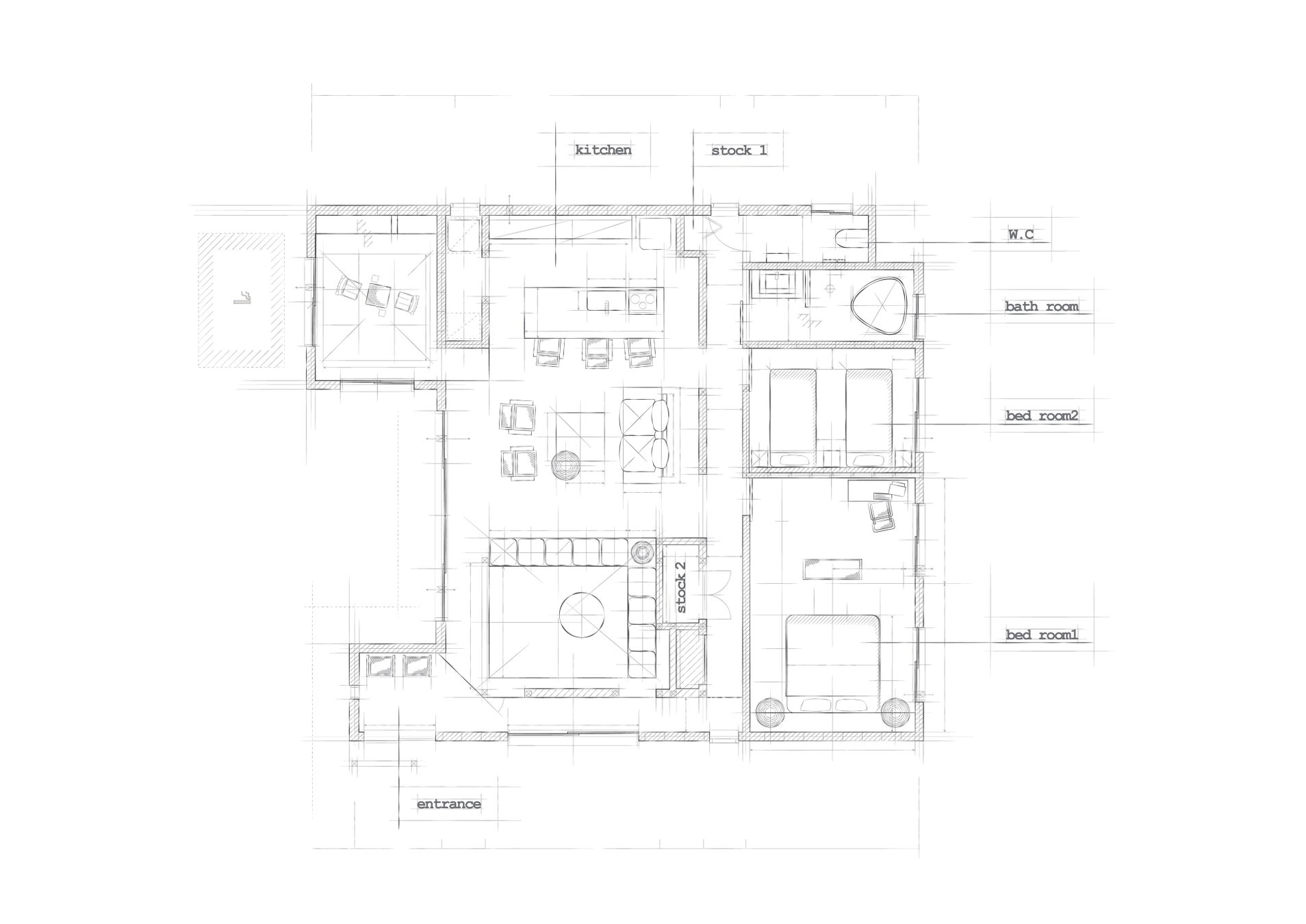
階数:地上1階(平家造り)
最大宿泊人数:6名
間取り:3LDK(キングベッド1台、シングルベッド2台、マットレス2台)
敷地面積:362.80m² / 建築面積:132.04m² / 延床面積:131.54m²
- LIBLES HOUSE
LIBLES HOUSEは建築業界とあまり関わりの少ないアパレルブランドやアーティストなどと共創し、新たな価値を創造する宿泊施設ブランドです。
本プロジェクトが第一弾コラボとなり、今後の他のアーティストとのプロジェクトも進行中です。
https://www.liblesgroup.com/
- goyemon™️
2019年にリリースした、雪駄×スニーカー「unda-雲駄-」をはじめ、切子×ダブルウォールグラス「Fuwan-浮碗-」など、『日本の伝統×最新技術』を融合させた商品を創りだすことで、現代の生活にフィットした、伝統を身近に感じられる商品を展開しています。
https://www.goyemon.tokyo/

- Living room / リビングルーム
玄関の扉を開けると、「30畳、天高5m」の超開放的空間が視界いっぱいに広がります。


goyemonクリエイティブディレクターの大西藍氏が、“泥”をテーマに石垣の風土を感じながら現地にてアート作成を行いました。

- Kitchen / キッチン
自然と人が集う全長3mの特大アイランドキッチン。
昼間はリビングでゆっくりしていたけれど、夜は自然とここが会場の場に。


- Japanese room / 和室
コンクリート壁と共存する現代版『床の間』
お風呂あがりは琉球畳にダイブ。 開放感のある天井を見上げ、 “泥娯” と一体となっていく。


- Bathroom / お風呂
ゆらめく水面の光、広がるヒノキの香り。
扉を開けると浴室いっぱいに広がるヒノキの香り。 goyemon流の現代版「五右衛門風呂」をご体感ください。


- Bedroom 1 / ベッドルーム1
柔らかい光と、心地よい香りで眠りにつく。
10畳の広々主寝室。 電源 / WiFi完備でデスク仕事もなんのその。( キングサイズベッド 1台 )


- Bedroom 2 / ベッドルーム2
障子越しの優しい朝日は、自然の目覚まし時計。
東向きの窓でアラーム要らずの生活を。 ( シングルベッド 2台 )

- Entrance / エントランス
随所に刻まれる泥娯流の改装論。
期待が高まる門から玄関のストローク。そのたった7mにも泥娯流の仕掛けがありました。

- Roomwear / ルームウェア
今回、泥娯での暮らしをより一層引き立てるためのルームウェアを開発。
ベーシックかつディテールにこだわった遊び心のあるアイテムを提案している「GLOSTER」と「deigo-泥娯-」の共同開発商品として生まれました。
椅子に腰掛けたり、床に座ったり、寝転がったり。様々なシチュエーションが存在する「泥娯での暮らし」を想定し、生地選定からパターン構成を考え抜いた泥娯専用設計のルームウェア。
ゆったりとした着心地だが、タックやウエストのアジャスターなど、品のあるゆるすぎない見た目を追求。泥娯を心地よく過ごすための最適解を模索し制作しました。

- Facility / アメニティ・設備・サービス
ルームウェアをはじめ、充実のアメニティや家電設備を完備。
全ての宿泊者に付帯するスペシャルウェルカムドリンクサービスも付帯。なんと残ったお酒は自宅へ持ち帰ってもOKです。
施設には、自由に使える2人乗り自転車もあり、石垣の風を感じながら親子や恋人と楽しくサイクリングができます。(一人乗り自転車2台、二人乗り自転車2台)
もちろん「unda-雲駄-」と「Fuwan-浮碗-」も。

- 【PV】deigo ISHIGAKI |沖縄石垣島の一棟貸し別荘[泥娯]|4K(04:02)
- 「 deigo -泥娯- 」概要 ※2022年8月15日現在
所在地:沖縄県石垣市新川63-2
開業日:2022年9月1日(木)
プレオープン期間: 2022年8月1日(月)ー 2022年8月31日(水)
電話番号:非公開
Instagram:@deigo_ishigaki
チェックイン:15:00、チェックアウト:11:00
アクセス:コンビニ(徒歩8分)、市街地(徒歩約10分)、南の島展望台(車16分)、石垣空港(車20分)、川平湾(車25分)
駐車場:敷地内に有(2台駐車可)
最大宿泊人数:6名
宿泊料金:未定(時期により変動)
予約開始日:未定(公式HP、各SNSにて配信予定)
階数:地上1階(平家造り)
間取り:3LDK
敷地面積:362.80m² / 建築面積:132.04m² / 延床面積:131.54m²
【Website】https://www.liblesgroup.com/deigo
【instagram】https://www.instagram.com/deigo_ishigaki
【twitter】https://mobile.twitter.com/deigo_ishigaki
運営:LIBLES GROUP inc. ( LIBLES HOUSE )
デザイン企画:NEWBASIC inc. ( goyemon )
企画:平間健太
建築&デザイン:大西藍
照明計画:武内賢太
クリエイティブ:糸井まどか
服飾:髙橋光
写真/動画:大西藍
建築設計:一級建築士事務所ヤマモトエミ住空間デザイン室
施工:RISE
清掃/管理:株式会社stay MORE

【 goyemon 】
https://www.goyemon.tokyo
大西藍、武内賢太がデザイナーを務める2018年結成のプロダクトデザインユニット「goyemon(ごゑもん)」。
日本の伝統文化にフォーカスし、「日本の伝統や魅力ある製品を、若い世代や世界の方々に知ってもらいたい。」そんな想いから活動をスタート。
「日本の伝統×最新技術」を融合させた商品を創りだすことで、現代の生活にフィットした、伝統を身近に感じられる商品を展開しています。
第一弾として、【 雪駄×スニーカー「unda-雲駄-」】を国内最大級のクラウドファンディングサービスMakuakeにてリリース。1週間で2,000万円を超える支援を集め、Makuake Award 2019でGOLD賞を受賞。
翌年2020年2月には、第二弾【 切子×ダブルウォールグラス「Fuwan-浮碗-」】で1,000万円を超える支援を集めた。
【instagram】https://www.instagram.com/goyemon_japan
【twitter】https://twitter.com/goyemon_japan
【Facebook】https://www.facebook.com/19776476158663
***〔プレス関係者向け画像素材〕***
プレスリリース掲載画像よりも高解像度の写真画像をお求めの場合、また掲載外写真など必要な場合は、以下「メディア関係者様向け/素材提供」ページにアップロードされているオフィシャル素材をダウンロードして掲載にご活用ください。
このプレスリリースには、メディア関係者向けの情報があります
メディアユーザー登録を行うと、企業担当者の連絡先や、イベント・記者会見の情報など様々な特記情報を閲覧できます。※内容はプレスリリースにより異なります。
すべての画像
