住宅設備機器の「INFILL」が「趣味を楽しむ豊かな暮らし」を提案。リノベーションマンションのモデルルームを公開中
~施工時を意識した工夫を設計段階から織り込み、当該物件の工期短縮を実現~
三谷産業株式会社(本社:石川県金沢市/代表取締役社長:三谷 忠照、以下三谷産業)の子会社で、住宅設備機器関連製品の販売・設計・施工管理を行う株式会社インフィル(本社:東京都千代田区/代表取締役社長:武蔵 真、以下インフィル)は、住宅設備の企画・設計施工をより発展させ、空間デザインの専門部署を設け、豊かな暮らしをプロデュースする事業を強化します。
そしてこの度、東京都世田谷区のマンション『世田谷アインス美しの杜』620号室をリノベーションし、モデルルームを公開しています。
今回のモデルルームは「趣味を楽しむ大人の豊かな暮らし」をテーマに企画設計し、アトリエスペースやワークスペースを設けています。また、住宅設備機器事業の強みを活かし、多くの高級マンションに納品実績があるオリジナルブランド「INTENZA(インテンザ)」のキッチンを用いたオープンスタイルの調理スペースを設けています。また、商社として築き上げた仕入れルートを活かし、ホームサウナを設置しています。
1.趣味を楽しむアトリエスペース
陶芸やフラワーアレジメントを楽しむ夫婦を想定し作品を飾る棚を組み込んだ壁面収納を設置。
2.オリジナルキッチン「A'dress」
快適な収納を追求しデザインされたキッチン「A'dress」を採用。コミュニケーションが誘発される対面カウンター仕様。
3.サウナを自宅で楽しむ
住宅設備機器の調達力を活かし、本格的なホームサウナを設置しました。
また今回リノベーションした『世田谷アインス美しの杜』の物件においては、施工の短工期化の工夫を行い、通常であれば約2か月かかる工期を27日間で実現しました。
リノベーションの工期を短縮化できれば、居住者が一時的に仮住まいをする期間や、オフィスや商業施設のテナントの空白期間を短縮できるなどのメリットが生まれます。今後の物件においても短工期化の実現を目指すと共に、さらなる短工期化に向けた取り組みも進めてまいります。
インフィルは住宅設備機器の商社・メーカーであると共に一級建築士事務所として設計・施工・アフターメンテナンスまでをワンストップで行えることを強みに、多くの集合住宅の納入・施工やリノベーションの実績を有しています。長年に渡りさまざまなお客さまの要望に応え続け、培われた技術力・調達力から信頼を築き、2021年度は2万戸以上の集合住宅施工実績を達成しました。
インフィルでは東京23区内を対象にインフィルへマンションをお売りいただける方や、企画・設計・施工を希望される方も募集しています。長年の経験で培った空間トータルプロデュース力を活かし、今後もお客さまにとって最適な空間を提案してまいります。
<モデルルーム見学予約>
電話/03-3514-6070
Webサイト/お問い合わせフォーム https://www.infill.co.jp/contact_inquiry/ ※完全予約制
【インフィルについて】 https://www.infill.co.jp/
インフィルは、三谷産業グループにおいて主に首都圏で住宅設備機器関連商品の営業・設計・施工管理を行っています。一級建築士事務所として培ってきたパートナー企業との信頼関係を武器とした、住宅新築・リニューアル案件、オリジナルブランド「INTENZA(インテンザ)」商品を販売するメーカーとしての機能を持ち、お客さまの多様なニーズにお応えしております。
(INTENZA Webサイト https://www.intenza.jp/)
東京都内にあります2店舗のショールームでは、お客さまの新しい空間づくりのイメージスペースとなるようなオリジナル商品や、実際に使用して感じていただける実演スタイルのキッチン展示を行っています。※「INTENZA」は三谷産業株式会社の登録商標です。
集合住宅施工実績/総戸数20,243戸(2021年度)
取扱製品/キッチン、収納、洗面化粧台、バス、トイレ、システムデスク等
【三谷産業グループについて】https://www.mitani.co.jp/
石川県金沢市で創業して 94 年、ベトナムで創業して 28年の複合商社です。北陸、首都圏、ベトナムを拠点に、化学品/情報システム/樹脂・エレクトロニクス/空調設備工事/住宅設備機器/エネルギーの 6 セグメントで事業を展開しています。商社でありながら、時にメーカーとして、また時にコンサルタントとして、お客さまにとっての最適を追求するとともに、「創業90年を越えるベンチャー企業」として更なる進化へと挑戦しています。
2022 年3月期:連結売上高 84,427 百万円/連結従業員数 3,805 名
■モデルルームに関するお問い合わせ
株式会社インフィル TEL 03-3514-6070
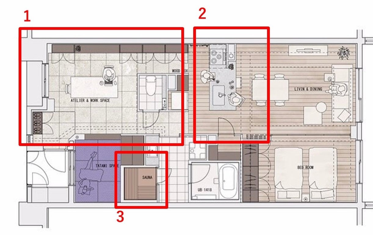
そしてこの度、東京都世田谷区のマンション『世田谷アインス美しの杜』620号室をリノベーションし、モデルルームを公開しています。
モデルルーム『世田谷アインス美しの杜620号室』のアトリエ&ワークスペース、リビングルーム
今回のモデルルームは「趣味を楽しむ大人の豊かな暮らし」をテーマに企画設計し、アトリエスペースやワークスペースを設けています。また、住宅設備機器事業の強みを活かし、多くの高級マンションに納品実績があるオリジナルブランド「INTENZA(インテンザ)」のキッチンを用いたオープンスタイルの調理スペースを設けています。また、商社として築き上げた仕入れルートを活かし、ホームサウナを設置しています。

1.趣味を楽しむアトリエスペース
陶芸やフラワーアレジメントを楽しむ夫婦を想定し作品を飾る棚を組み込んだ壁面収納を設置。
2.オリジナルキッチン「A'dress」
快適な収納を追求しデザインされたキッチン「A'dress」を採用。コミュニケーションが誘発される対面カウンター仕様。
3.サウナを自宅で楽しむ
住宅設備機器の調達力を活かし、本格的なホームサウナを設置しました。
また今回リノベーションした『世田谷アインス美しの杜』の物件においては、施工の短工期化の工夫を行い、通常であれば約2か月かかる工期を27日間で実現しました。
リノベーションの工期を短縮化できれば、居住者が一時的に仮住まいをする期間や、オフィスや商業施設のテナントの空白期間を短縮できるなどのメリットが生まれます。今後の物件においても短工期化の実現を目指すと共に、さらなる短工期化に向けた取り組みも進めてまいります。
インフィルは住宅設備機器の商社・メーカーであると共に一級建築士事務所として設計・施工・アフターメンテナンスまでをワンストップで行えることを強みに、多くの集合住宅の納入・施工やリノベーションの実績を有しています。長年に渡りさまざまなお客さまの要望に応え続け、培われた技術力・調達力から信頼を築き、2021年度は2万戸以上の集合住宅施工実績を達成しました。
インフィルでは東京23区内を対象にインフィルへマンションをお売りいただける方や、企画・設計・施工を希望される方も募集しています。長年の経験で培った空間トータルプロデュース力を活かし、今後もお客さまにとって最適な空間を提案してまいります。
<モデルルーム見学予約>
電話/03-3514-6070
Webサイト/お問い合わせフォーム https://www.infill.co.jp/contact_inquiry/ ※完全予約制
【インフィルについて】 https://www.infill.co.jp/
インフィルは、三谷産業グループにおいて主に首都圏で住宅設備機器関連商品の営業・設計・施工管理を行っています。一級建築士事務所として培ってきたパートナー企業との信頼関係を武器とした、住宅新築・リニューアル案件、オリジナルブランド「INTENZA(インテンザ)」商品を販売するメーカーとしての機能を持ち、お客さまの多様なニーズにお応えしております。
(INTENZA Webサイト https://www.intenza.jp/)
東京都内にあります2店舗のショールームでは、お客さまの新しい空間づくりのイメージスペースとなるようなオリジナル商品や、実際に使用して感じていただける実演スタイルのキッチン展示を行っています。※「INTENZA」は三谷産業株式会社の登録商標です。
集合住宅施工実績/総戸数20,243戸(2021年度)
取扱製品/キッチン、収納、洗面化粧台、バス、トイレ、システムデスク等
【三谷産業グループについて】https://www.mitani.co.jp/
石川県金沢市で創業して 94 年、ベトナムで創業して 28年の複合商社です。北陸、首都圏、ベトナムを拠点に、化学品/情報システム/樹脂・エレクトロニクス/空調設備工事/住宅設備機器/エネルギーの 6 セグメントで事業を展開しています。商社でありながら、時にメーカーとして、また時にコンサルタントとして、お客さまにとっての最適を追求するとともに、「創業90年を越えるベンチャー企業」として更なる進化へと挑戦しています。
2022 年3月期:連結売上高 84,427 百万円/連結従業員数 3,805 名
■モデルルームに関するお問い合わせ
株式会社インフィル TEL 03-3514-6070
このプレスリリースには、メディア関係者向けの情報があります
メディアユーザーログイン既に登録済みの方はこちら
メディアユーザー登録を行うと、企業担当者の連絡先や、イベント・記者会見の情報など様々な特記情報を閲覧できます。※内容はプレスリリースにより異なります。
すべての画像
