電気・油圧ハイブリット駆動自走式土質改良機『Mobix Eco(モビックス エコ)』開発 70年にわたり建築・土木材料の混練で培ってきたミキサ開発技術を生かし「盛土」等による災害対策に貢献!
【危険な盛土等を包括的に規制する「盛土規制法」がまもなく施行】~2023年5月24日から5月26日に開催される「2023NEW環境展」にも出展~
また、このたび、当製品を含めた合計7つの環境関連装置を2023年5月24日から3日間、東京ビックサイトにて開催される「2023NEW環境展(https://www.n-expo.jp/)」に出展します。
*1 日本国内におけるアスファルトプラント・コンクリートプラントのシェア(2022年度)自社調べ

開発の背景
建設現場で発生する建設発生土は年間13,263万㎥にのぼり、その内79.8%は再利用されています。*2
しかしながら、建設発生土の不法投棄を含む不適切な盛土による土砂災害が近年増加しており、2021年に発生した「熱海市伊豆山土石流災害」を受けて2023年5月26日に「盛土規制法」が施行されます。
建設発生土の適切な処理にむけた法規制が強化されていくなかで、土質改良の必要性が高まってきたことから、日工は自走式土質改良機「Mobix Eco(モビックス エコ)」を開発しました。
土質改良機で適切な処理を行った建設発生土は「土質改良土」として生まれ変わることで再利用の幅が広がり、循環型社会の実現につながります。
Mobix Ecoの開発にあたっては日工の70年にわたって培ったミキサの開発技術を活かし最大100㎥/h*3の処理能力を実現しました。
日工は、これまでも「アスファルト廃材」「コンクリート廃材」「廃石膏ボード」等建設副産物の再利用にむけた装置開発を行ってまいりました。本製品の提供を通して循環型社会の実現を目指してまいります。
*2 国土交通省 平成30年度建設副産物実態調査結果(確定値)
https://www.mlit.go.jp/report/press/sogo03_hh_000233.html
*3 原料土によって変動します
(参考)建設汚泥の処理実績
https://www.nikko-net.co.jp/product/solution_construction-waste/sludge/
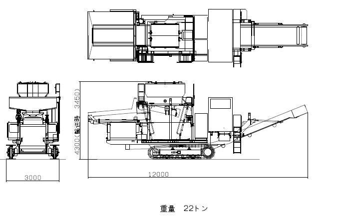
Mobix Eco 仕様・特長
●特長

(1)ミキサをメインとした装置設計
日工はコンクリートミキサの国内シェアNo.1*3。
最大100㎥/hの混練性能に加え、羽根の性状を工夫することで高い耐久性を実現しました。
(2)電気・油圧ハイブリット駆動を採用
ミキサ、コンベヤなどの通常稼働に必要な動力は電気駆動とすることで、環境負荷を低減しました。
さらに、商用電源での運転も可能とすることで騒音・排ガスの低減に貢献します。
*3日本建設機械工業会データに基づく自社調べ(2022年度)
●仕様


2023年5月24日よりMobix Ecoの運用テストの受付を開始します。
ご希望の企業様は下記お問い合わせ宛に「運用テスト希望」と記載のうえ、ご連絡いただけますと幸いです。
申込先
日工株式会社 モバイルプラント営業部
TEL :03-5298-6701
WEB申込 :https://www.nikko-net.co.jp/inquiry/
応募期間 :2023年5月24日より 受付開始
2023 NEW 環境展 出展内容
名称 :2023NEW環境展
会期 :2023年5月24日(水)~5月26日(金)
時間 :午前10時~午後5時(最終日は午後4時まで)
会場 :東京ビックサイト 東展示棟 東2ホール(小間№A248)
公式サイト :https://www.n-expo.jp/
【出展内容の紹介】
ペットボトル選別機「ペトリス」

●飲料容器ごみからペットボトルを、透過センサを用いて自動選別
●選別作業の自動化により選別コストを削減
●省スペースながら選別能力20~50㎥/hを実現(3機種ラインナップ)
●既設の設備ラインに組み込み可能
缶・ビン選別圧縮機「リサイクル4」

●選別・圧縮の自動工程化により人件費を削減(省人化)
●本体設置面積が省スペースな上、スチール・アルミ缶を1/10に減容(運搬費・保管費の削減)
●ユニット化により設置後、すぐに稼働を実現
二軸破袋機「バックオープナー」

●危険・重作業である破袋作業から解放
●缶・ビン・ペットボトル・容器包装プラの破袋作業を軽減
●二軸の回転刃と固定刃により効率よく破袋
●缶等にビニール袋のかみ込みが少なく選別作業が容易
二軸強制式ミキシングユニット「NEO500」

●ミキサで処理対象物を計量し、固化材投入、混練、排出までを自動運転します。
●せん断能力の高いミキサパドルを採用し、粘性物などの処理困難物にも対応
●ユニットタイプのため、移設が容易です。発生元での改良処理も可能です
モジュラーベルトコンベヤ「ストリンガーモジュラーコンベヤ」

●チャンネル(溝型鋼)フレーム構造、JIS規格ローラー採用、高強度タイプ
●本体のモジュール化により高品質で、コストパフォーマンスのよい製品を短納期でご提供
●軽量物から重量物あらゆる用途、搬送物に対応、現場の「運ぶ」をさらにサポート
自走式土質改良機「Mobix Eco」

●ミキサメーカーならではの高い混練性能定置式スタビライザーのノウハウを自走式に!
●電気と油圧のハイブリッドで環境負荷低減
●外部電源供給により稼働も可能
●新技術情報提供システム(NETIS)申請中
自走式破砕機「RED RHINO」

●コンクリートやレンガ、陶器、ガラス等の様々な材料に対応し、様々な処理能力の機種をラインナップ。
●付属クローラ等で簡単に現場に運搬可能。
●小型倉庫にも簡単に収納可能。
日工株式会社 会社概要
1919年、世界的商社であった鈴⽊商店関係者により創業。 スコップなどの⼯具製作からはじまり、今⽇は⽇本のインフラを⽀えるプラント機械メーカーとして事業展開を⾏っています。 アスファルトプラントの国内シェアは70%にのぼり、空港などの巨⼤インフラから⽣活道路まで皆様のまちづくりのお⼿伝いをしています。
会社名 :⽇⼯株式会社
代表者名:辻 勝(つじ まさる)
URL :https://www.nikko-net.co.jp/
所在地 :〒674-8585 兵庫県明⽯市⼤久保町江井島1013-1
TEL :078-947-3131(代)
このプレスリリースには、メディア関係者向けの情報があります
メディアユーザー登録を行うと、企業担当者の連絡先や、イベント・記者会見の情報など様々な特記情報を閲覧できます。※内容はプレスリリースにより異なります。
すべての画像
