【家づくり成功のヒント】抜けない柱があっても、開放的な空間は実現できる。愛知県豊川市で築浅戸建てリノベーションを行ったオーナー様宅見学会を開催
視界を遮る和室との間仕切り壁をなくし、子どもが元気に走り回れる広々LDKへ。来場特典として「tower」カタログギフト券3,080円分プレゼント。

愛知県でリノベーション事業を展開する株式会社sumarch(本社:愛知県名古屋市中村区、代表取締役:鳥居儀彰、以下KULABO)は、戸建てリノベーション見学会を2024年5月25日(土)・26日(日)、愛知県豊川市にて開催いたします。
実際にKULABOでリノベーションしたオーナー様のお住まいを見学できる「リノベーション見学会」です。間取りや・設計の工夫やデザインのアイデアなど、家づくりのヒント盛沢山!写真だけでは分からない素材の質感や雰囲気、リノベーションの魅力をREALにご体感ください!
見学会について、詳しくは特設ページをご確認ください。
https://kulabo.co.jp/events/89
見どころポイント


***DATA***
家族構成:ご夫婦+お子さま1人
リノベーション費用:約890万円
施工面積:50㎡
築年数:築9年
工事期間:約2ヵ月
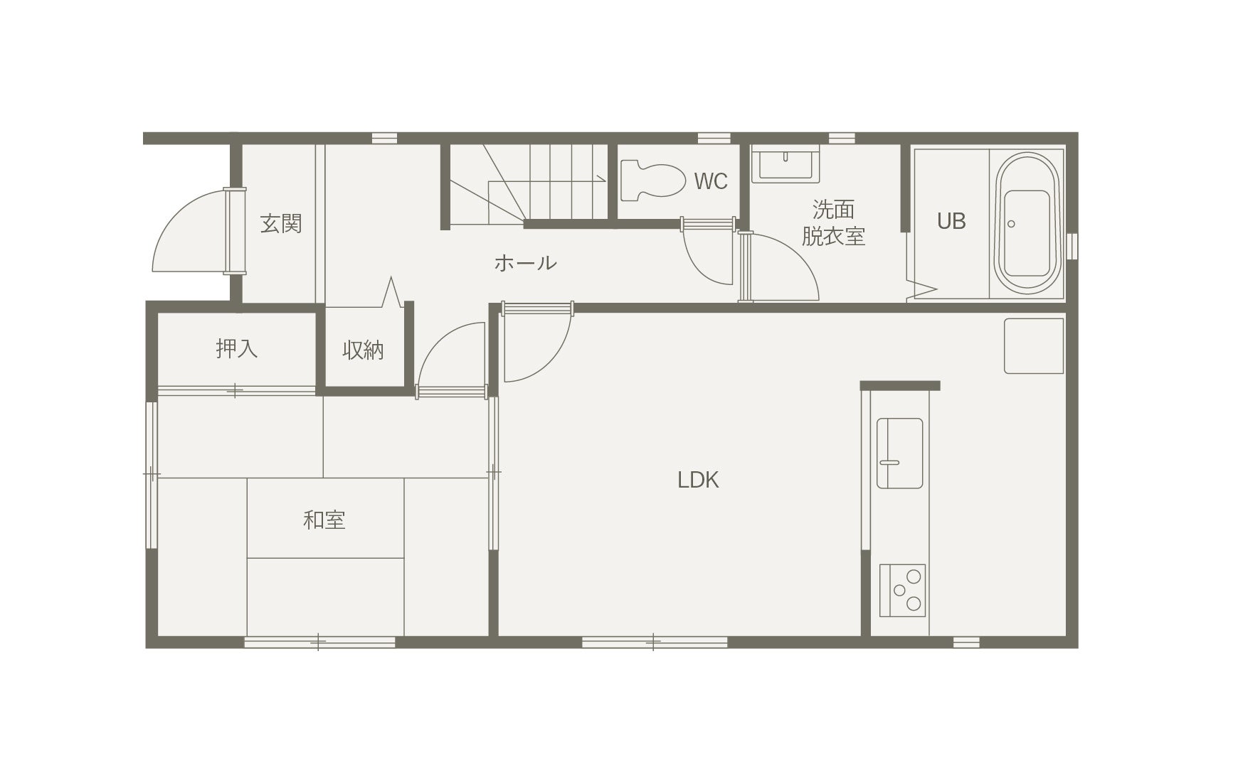
*現しにした筋交いがアクセントのLDK

既存の和室をリビングに変えて、広々としたLDKを計画しました。建物の構造上、壊すことができない筋交いは現しにして抜け感を演出。筋交いを黄色で塗装し、家のシンボル的存在となりました。
*木目×白の柔らかな風合い

床材とカウンター、柱、キッチンを同系色でそろえた、ナチュラルな空間。部屋の雰囲気に合うように、オークの家具を提案しました。
■トイレ&玄関で兼用できる手洗い場

トイレの位置を玄関横へ移設し、手洗い場を廊下に設けることでトイレと玄関の手洗いを兼用できる計画に。わざわざ洗面室に行かなくても手を洗うことができ、来客時にも大活躍します。
開催概要
開催日:2024年5月25日(土)・26日(日)
時間:10時~17時
開催場所:愛知県豊川市
※オーナー様のプライバシー配慮のため、詳しい住所はご予約いただいた方だけにお伝えしております。
参加費:無料
申込締切:2024年5月24日(金)まで ※事前予約制
見学会の詳細やご予約は、特設イベントページよりご確認ください。
少しでもリノベーションに興味のある方は、お気軽に見学予約くださいませ。
来場者限定!特典プレゼントあり!
[初回来場特典]
当イベントに来場していただいた方限定!
★山崎実業の人気商品シリーズ「tower」カタログギフト3,080円分プレゼント!
対象者:今後リノベーションを検討される予定がある方/当社に初めてご来場いただいた方
【成約特典】
当イベントに来場した後、当社でリノベーションをご成約いただいた方に、成約金額に応じて家具をプレゼント!
★500万~999万のご成約
→家具10万円分プレゼント!
★1,000万円以上のご成約
→家具20万円分プレゼント!
特典規約あり。詳しくは、特設イベントページよりご確認ください。
KULABOとは

リノベーションスタジオKULABO(クラボ)は創業から30年以上愛知県と岐阜県の一部エリアにおいて、中古戸建、中古マンションのリノベーション・大規模リフォームの提案をしています。施工実績は延べ2,000件以上。
リノベーションを前提とした中古物件のご紹介から、プラン・デザインの提案、施工、アフターメンテナンスまで一貫してサポートします。お客様のニーズやご予算、ライフスタイルに合わせて部分リフォームからフルリノベーション、耐震工事や断熱工事まで幅広くご対応。デザイン性と価格のバランスを取り、可能な限りお客様のご要望を叶えつつ、適正価格でプランを提案します。
会社概要
■会社名
株式会社sumarch
コーポレートサイト:https://sumarch.co.jp/
■代表者
代表取締役 鳥居 儀彰
■ブランド名
リノベーションスタジオKULABO
KULABO HP:https://kulabo.co.jp/
■所在地
本社 〒450-6419 愛知県名古屋市中村区名駅三丁目28番12号 大名古屋ビルヂング19F
TEL:052-526-1395 FAX:052-526-1396
店舗
中村スタジオ/千種スタジオ/緑スタジオ/春日井スタジオ/岡崎スタジオ/長久手スタジオ/豊田スタジオ
■設立
2009年11月
■事業内容
不動産再生事業(リフォーム・リノベーション)
■従業員数
205名(2023年9月時点)
ーーーーーーーーーーーーーーーーーーーーーーーーーーーー
■一般の方からのお問合せ先
リノベーションスタジオお客様総合窓口
0120-85-7755
9:30~19:00 年中無休(年末年始除く)
すべての画像
