新商品「那由他(なゆた)」を開発
伝統と最先端技術を融合、国産材使用率100%を実現

新商品「那由他」は、京町家の通り土間や古民家の吹き抜けなど、伝統的な日本建築のデザインを 踏襲しつつ、断熱等性能等級の最上位等級である等級7を確保しているほか、太陽光発電システムを はじめ、省エネ・創エネ設備の導入等によりZEHを可能とし、伝統と最先端技術とが融合した、快適な現代の「和」の住まいを実現します。
また、従来商品「檜の家」と同様、土台や柱だけでなく羽柄材にも檜を用い、横架材である梁・桁は杉と唐松を採用するなど、国産材使用率100%となっています。
当社は、5月9日に、農林水産省とナイス株式会社をはじめとするナイスグループ6社とで「国産材の利用拡大に関する建築物木材利用促進協定」を締結いたしました。本協定に基づき、引き続き、伝統技術と現代技術を融合させた木造の住宅・建築物の供給を通じて、国産材の利用を推進し、持続可能な社会の実現に貢献してまいります。
町家の通り土間を想起させる、玄関から続く土間空間
古民家の雰囲気を醸す、ろくろ丸太の 通し柱を配置した吹き抜け空間
段差を生かし、調理する人と食事をする人が一体となる食空間「和厨」
【参考プラン】 52.5坪の場合: 建物本体価格 70,900,000円(税別)
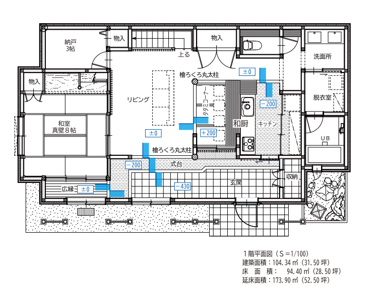
1階平面図
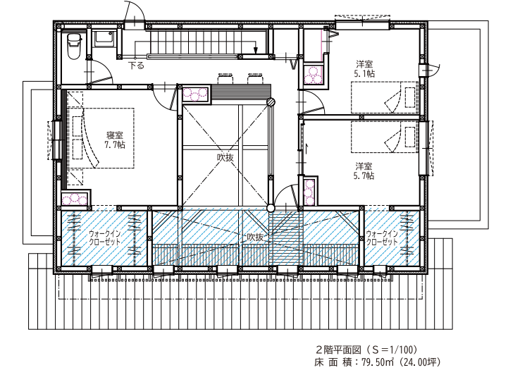
2階平面図

【菊池建設株式会社 概要】
ホームページ https://www.kikuchi-kensetsu.co.jp/
1955年(昭和30年)に静岡県・旧清水市にて創業。初代社長は宮大工棟梁の菊池安治。社寺・数寄屋建築で培われた高い技術力をもとに、「日本の風土に合う住まいは、国産材を用いて、伝統的な木造軸組工法で建てることが最も理にかなっている」との創業者の理念を継承している。1987年(昭和62年)には、日本の伝統文化である木造建築の工法を全国的なレベルで後世に残すために、「日本建築専門学校」を設立した。2016年(平成28年)ナイス株式会社の100%出資子会社となる。
このプレスリリースには、メディア関係者向けの情報があります
メディアユーザー登録を行うと、企業担当者の連絡先や、イベント・記者会見の情報など様々な特記情報を閲覧できます。※内容はプレスリリースにより異なります。
すべての画像
