家事をしながら子どもの成長を見守る家づくり|愛知県刈谷市で戸建てリノベーションを行ったオーナー様宅見学会を開催
家族みんなで囲めるアイランドキッチンを中心に、ひと続きで繋がる大空間。来場特典として「tower」カタログギフト券3,080円分プレゼント。

愛知県でリノベーション事業を展開する株式会社sumarch(本社:愛知県名古屋市中村区、代表取締役:鳥居儀彰、以下KULABO)は、マンションリノベーション見学会を2024年7月13日(土)・14日(日)、愛知県刈谷市にて開催いたします。
実際にKULABOでリノベーションしたオーナー様のお住まいを見学できる「リノベーション見学会」です。間取りや設計の工夫・デザインのアイデアなど、家づくりのヒント盛沢山!写真だけでは分からない素材の質感や雰囲気、リノベーションの魅力をREALにご体感ください!
見学会について、詳しくは特設ページをご確認ください。
https://kulabo.co.jp/events/92
見どころポイント


***DATA***
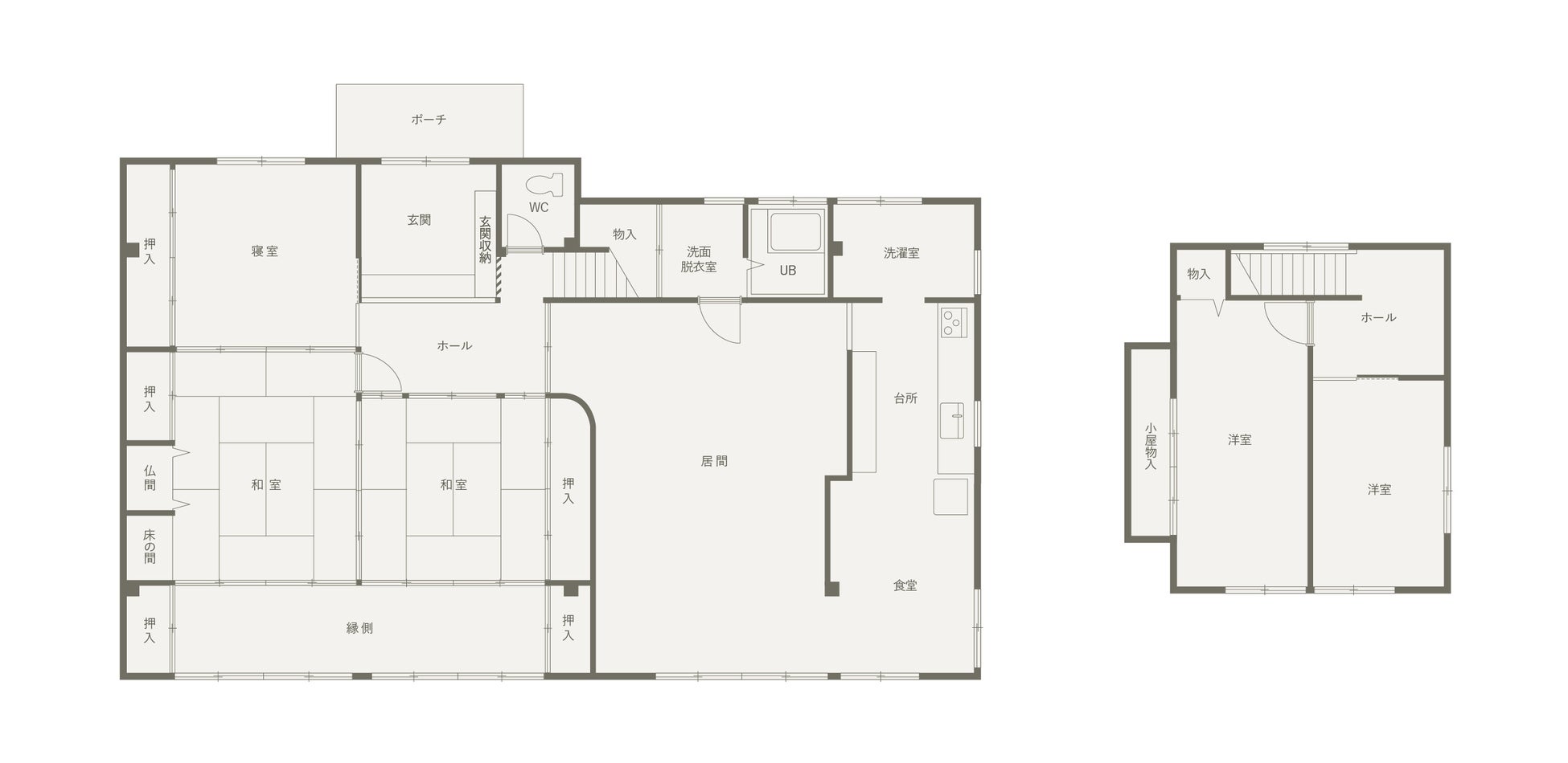
家族構成:ご夫婦+お子様2人
リノベーション費用:約3,640万円
施工面積:約160㎡
築年数:築30年
打ち合わせ期間:約4ヵ月
工事期間:約3ヵ月
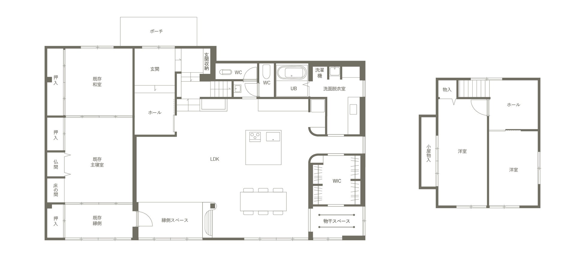
■住まいの主役になるパッションオレンジのキッチン

トーヨーキッチンの「BAYQUBE」という正方形のキッチンを採用。低彩度の色で整えられた空間の中、鮮やかなパッションオレンジのキッチンが主役級の存在感を放ちます。
■自然素材にこだわった内装

壁・天井はオンザウォールの塗装、床材は挽板のフローリングで仕上げました。自然素材ならではの暖かさや心地よさが感じられる空間です。
■アールと間接照明で高級感を演出

スケルトンにした広い空間を単調に見せないように、壁や天井はアールでデザイン。アールの曲線と間接照明により、高級感ある装いになりました。
開催概要
開催日:2024年7月13日(土)・14日(日)
時間:10時~17時
開催場所:愛知県刈谷市
※オーナー様のプライバシー配慮のため、詳しい住所はご予約いただいた方だけにお伝えしております。
参加費:無料
申込締切:2024年7月12日(金)まで ※事前予約制
見学会の詳細やご予約は、特設イベントページよりご確認ください。
少しでもリノベーションに興味のある方は、お気軽に見学予約くださいませ。
来場者限定!特典プレゼントあり!

[初回来場特典]
当イベントに来場していただいた方限定!
★山崎実業の人気商品シリーズ「tower」カタログギフト3,080円分プレゼント!
対象者:今後リノベーションを検討される予定がある方/当社に初めてご来場いただいた方
[成約特典]
当イベントに来場した後、当社でリノベーションをご成約いただいた方に、成約金額に応じて家具をプレゼント!
★500万~999万のご成約
→家具10万円分プレゼント!
★1,000万円以上のご成約
→家具20万円分プレゼント!
特典規約あり。詳しくは、特設イベントページよりご確認ください。
KULABOとは

リノベーションスタジオKULABO(クラボ)は創業から30年以上愛知県と岐阜県の一部エリアにおいて、中古戸建、中古マンションのリノベーション・大規模リフォームの提案をしています。施工実績は延べ2,000件以上。
リノベーションを前提とした中古物件のご紹介から、プラン・デザインの提案、施工、アフターメンテナンスまで一貫してサポートします。お客様のニーズやご予算、ライフスタイルに合わせて部分リフォームからフルリノベーション、耐震工事や断熱工事まで幅広くご対応。デザイン性と価格のバランスを取り、可能な限りお客様のご要望を叶えつつ、適正価格でプランを提案します。
会社概要
■会社名
株式会社sumarch
コーポレートサイト:https://sumarch.co.jp/
■代表者
代表取締役 鳥居 儀彰
■ブランド名
リノベーションスタジオKULABO
KULABO HP:https://kulabo.co.jp/
■所在地
本社 〒450-6419 愛知県名古屋市中村区名駅三丁目28番12号 大名古屋ビルヂング19F
TEL:052-526-1395 FAX:052-526-1396
店舗
中村スタジオ/千種スタジオ/緑スタジオ/春日井スタジオ/岡崎スタジオ/長久手スタジオ/豊田スタジオ
■設立
2009年11月
■事業内容
不動産再生事業(リフォーム・リノベーション)
■従業員数
220名(2024年4月時点)
ーーーーーーーーーーーーーーーーーーーーーーーーーーーー
■一般の方からのお問合せ先
リノベーションスタジオお客様総合窓口
0120-85-7755
9:30~19:00 年中無休(年末年始除く)
すべての画像
