パッションオレンジのキッチンと自然素材で彩られた高級空間を体験!|愛知県刈谷市で戸建てリノベーション見学会を開催
ご来場者様にはご成約特典として、最大20万円分の家具をプレゼント!家族みんなが快適に過ごせる理想の住まいを実現するヒントが満載です!

愛知県/岐阜県/東京都/神奈川県(一部エリア除く)でリノベーション事業を展開する株式会社sumarch(本社:愛知県名古屋市中村区、代表取締役:鳥居儀彰、以下KULABO)は、戸建てリノベーション見学会を2025年1月25日(土)・26日(日)、愛知県刈谷市にて開催いたします。
実際にKULABOでリノベーションしたオーナー様のお住まいを見学できる「リノベーション見学会」です。間取りや設計の工夫・デザインのアイデアなど、家づくりのヒントが盛り沢山!写真だけでは分からない素材の質感や雰囲気、リノベーションの魅力をREALにご体感ください!
見学会について、詳しくは特設ページをご確認ください。
https://kulabo.co.jp/events/100
見学会見どころポイント
***DATA***
家族構成:ご夫婦+お子様2人
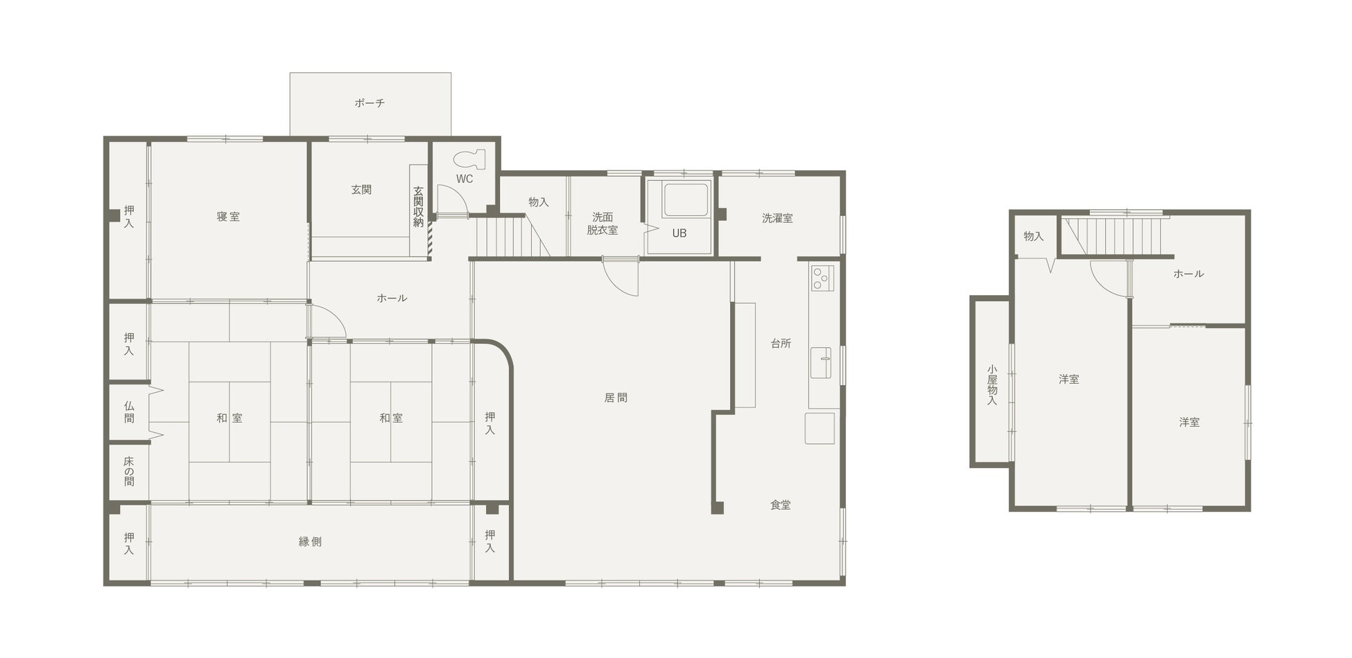
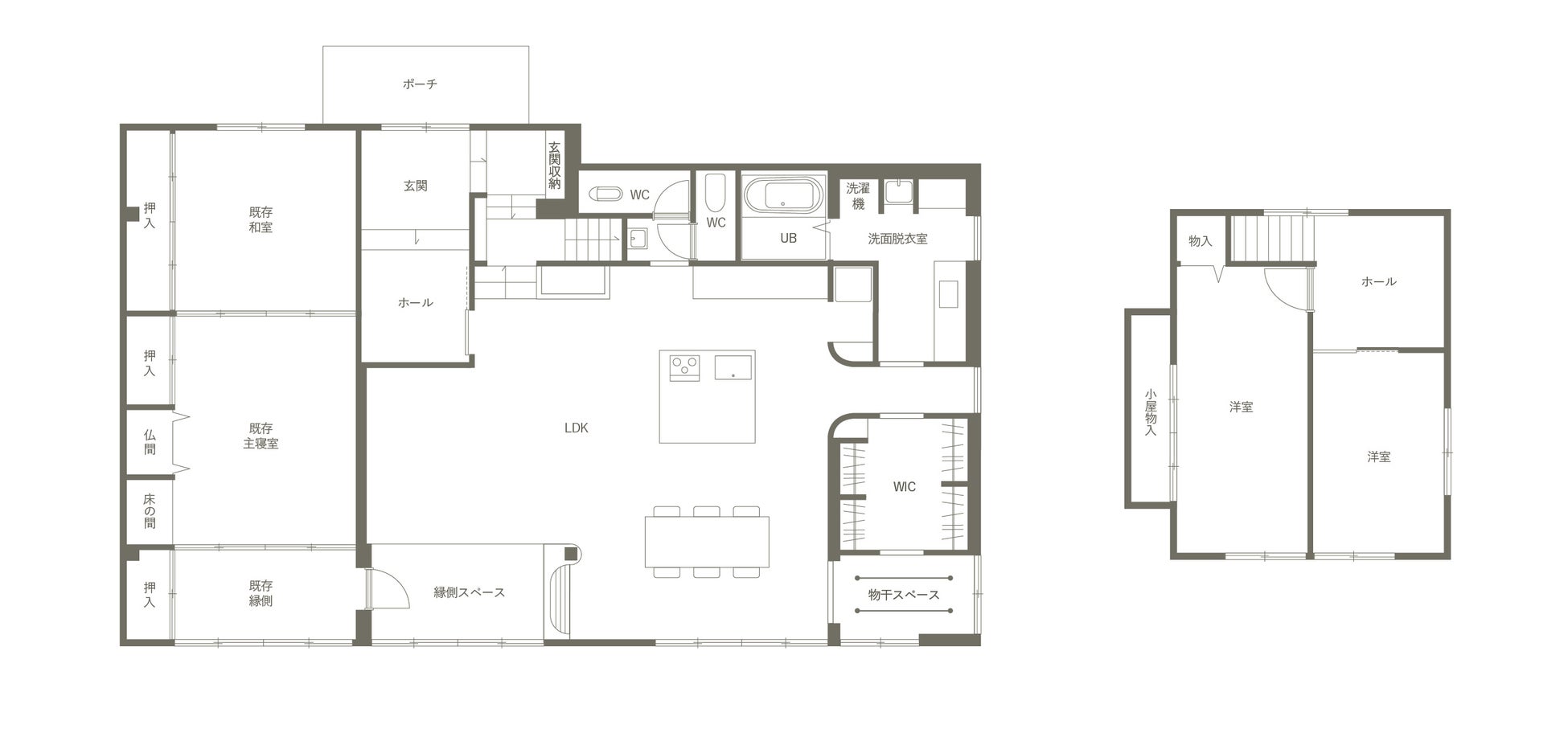
間取り:[before]5LDK→[after]4LDK
リノベーション費用:約3,640万円
施工面積:約160㎡
築年数:築30年
打ち合わせ期間:約4ヵ月
工事期間:約3ヵ月


■住まいの主役になるパッションオレンジのキッチン

トーヨーキッチンの「BAYQUBE」という正方形のキッチンを採用。低彩度の色で整えられた空間の中、鮮やかなパッションオレンジのキッチンが主役級の存在感を放ちます。
■自然素材にこだわった内装

壁・天井はオンザウォールの塗装、床材は挽板のフローリングで仕上げました。自然素材ならではの暖かさや心地よさが感じられる空間です。
■アールの曲線と間接照明で生まれる高級感と安らぎ

広いスケルトン空間にアールを取り入れ、丸い壁や曲線が光と調和して視覚的な安らぎを生み出しました。間接照明と曲線が高級感を引き立て、リラックスできる居心地の良い空間が完成。
開催概要
開催日:2025年1月25日(土)・26日(日)
時間:10時~17時
開催場所:愛知県刈谷市
※オーナー様のプライバシー配慮のため、詳しい住所はご予約いただいた方だけにお伝えしております。
参加費:無料
申込締切:2025年1月24日(金)まで ※事前予約制
見学会の詳細やご予約は、特設イベントページよりご確認ください。
少しでもリノベーションに興味のある方は、お気軽に見学予約くださいませ。
来場者限定!特典プレゼントあり!
当イベントに来場した後、当社でリノベーションをご成約いただいた方に、成約金額に応じて家具をプレゼント!
★500万~999万のご成約
→家具10万円分プレゼント!
★1,000万円以上のご成約
→家具20万円分プレゼント!
特典規約あり。詳しくは、特設イベントページよりご確認ください。
KULABOとは

リノベーションスタジオKULABOは愛知県・岐阜県・東京都・神奈川県(一部エリア除く)において、中古戸建、中古マンションのリノベーションの提案をしています。
リノベーションを前提とした中古物件のご紹介から、プラン・デザインの提案、施工、アフターメンテナンスまで一貫してサポートします。お客様のニーズやご予算、ライフスタイルに合わせて部分リフォームからフルリノベーション、耐震工事や断熱工事まで幅広くご対応。デザイン性と価格のバランスを取り、可能な限りお客様のご要望を叶えつつ、適正価格でプランを提案します。
会社概要
■会社名
株式会社sumarch
コーポレートサイト:https://sumarch.co.jp/
■代表者
代表取締役 鳥居 儀彰
■ブランド名
リノベーションスタジオKULABO
KULABO HP:https://kulabo.co.jp/
■所在地
本社 〒450-6419 愛知県名古屋市中村区名駅三丁目28番12号 大名古屋ビルヂング19F
TEL:052-526-1395 FAX:052-526-1396
店舗
中村スタジオ/千種スタジオ/緑スタジオ/一宮スタジオ/春日井スタジオ/岡崎スタジオ/長久手スタジオ/豊田スタジオ
■設立
2009年11月
■事業内容
不動産再生事業(リフォーム・リノベーション)
■従業員数
220名(2024年4月時点)
ーーーーーーーーーーーーーーーーーーーーーーーーーーーー
■一般の方からのお問合せ先
リノベーションスタジオお客様総合窓口
0120-85-7755
10:00~18:00 年中無休(年末年始除く)
すべての画像
