まるで無地の白Tシャツのような家から“住みたい“を想像しよう!シンプルでプレーンな住宅「No.00 Dolive Original」、リリース
Doliveからオリジナル規格住宅商品「No.00 Dolive Original」が登場!
新しい発想で住宅デザインの考え方を提案・発信する「Dolive(ドライブ)」仮(運営会社/ BETSUDAI Inc.TOKYO 株式会社ベツダイ東京支社:東京都港区)は11月1日(火)、Dolive初のオリジナル規格住宅として、シンプルでプレーンなデザインが特徴の「No.00 Dolive Original(ナンバーゼロ ドライブオリジナル)※以下No.00」をリリースします。Doliveが考える「“住みたい”からはじまる家づくり」の思想を体現するプロダクトとして、同時リリースとなるDoliveアプリを活かした住宅提案を行ってまいります。

- シェアハウスのような「No.00 Dolive Original」
「No.00」の特徴は大きな2Fリビング。吹き抜けになった階段を上がると開放的なスペースが出迎えるまるでシェアハウスのような空間。また、プレーンな住宅デザインもトレンドやライフステージ、そして住まう人の変化に柔軟にアレンジできるよう、ベースとなるデザインは無駄なものを削ぎ落とし、シンプルに仕上げました。それは、「これからの家づくりは想像することからはじまる」、そう提案するDoliveが考えるスタンダードな住宅が「No.00」だからこそ。この家の使い方をユーザー自身が想像し、このキャンバスのようなプレーンな家に自分らしさを加えたら、暮らしはもっと楽しくなるはず。Doliveにはそれを想像させるアイデア&ツールが揃っています。
まず、Doliveが提案するコンテンツ記事の中から、自分らしい暮らし方を想像してみることからはじめよう。



まるで無地の白Tシャツを人それぞれ好きなスタイルで着こなすように、その人の好きなスタイルで暮らしを楽しむことができる新しい発想のプレーンな住宅。No.00で住みたいからはじまる家づくりを体験してみませんか?
※Doliveアプリとは?
家づくりをもっと気軽に楽しめる、アイデア&ツール。“君の住みたい”がベースになった新しい家づくりを提案します。

❶家づくりのアイデアを探せる「メディア」
❷想像を拡げるCGハウスプロジェクト「Dolive©️(ドライブマルシー)」
❸住宅デザインから参考にする「Dolive House PJ」
❹組み合わせて形にする住宅デザインの「シミュレーション機能」
- No.00プロダクト概要
<プロダクトネーム>
No.00 Dolive Original(ナンバーゼロ ドライブオリジナル)
<ロゴデザイン>

どんな家に住みたい?
「ウッドデッキでキャンプをしたり」
「素敵なアートをたくさん飾ったり」
住みたいって、実はどんな暮らしがしたいかを想像すること。
住む箱は、意外とシンプルでいいかもしれない。
もっと自由に、カジュアルに、家づくりは考えられる!
No.00は、君自身で想像する、シンプルでプレーンな舞台。
<プロダクトデザイン>
外観:ファサード
外観:裏ファサード
エントランス
リビングダイニング
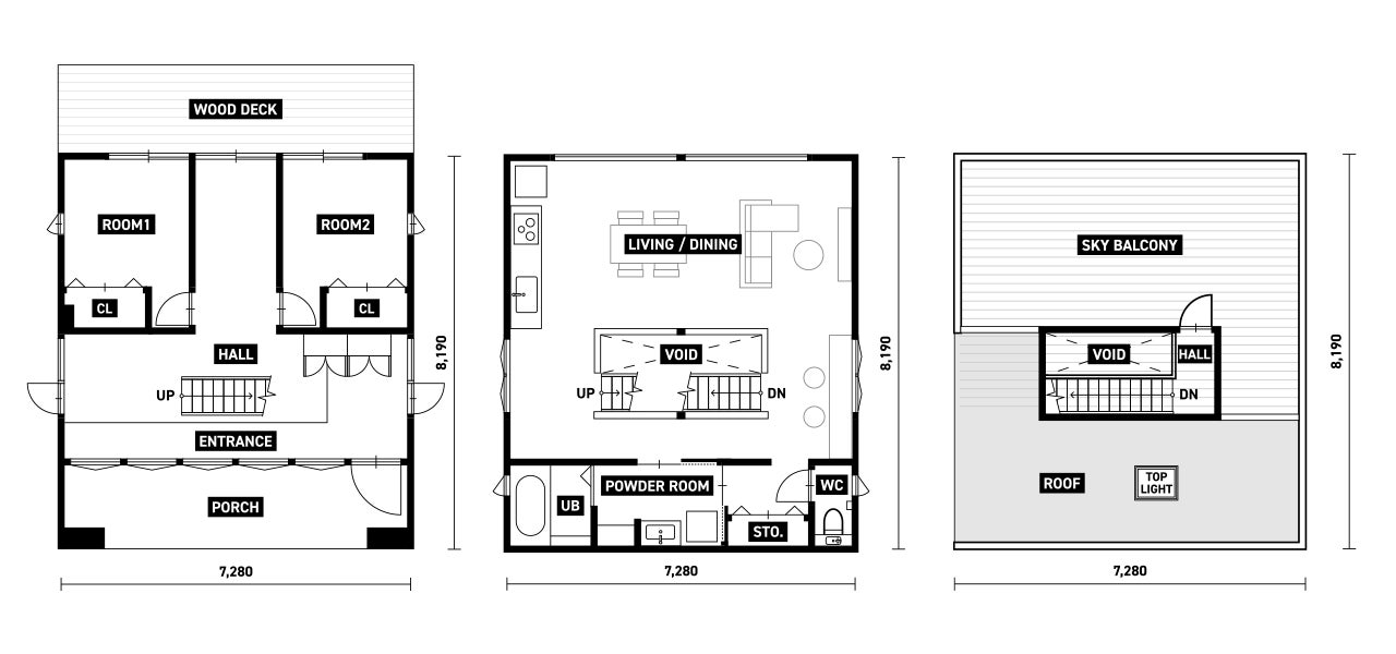
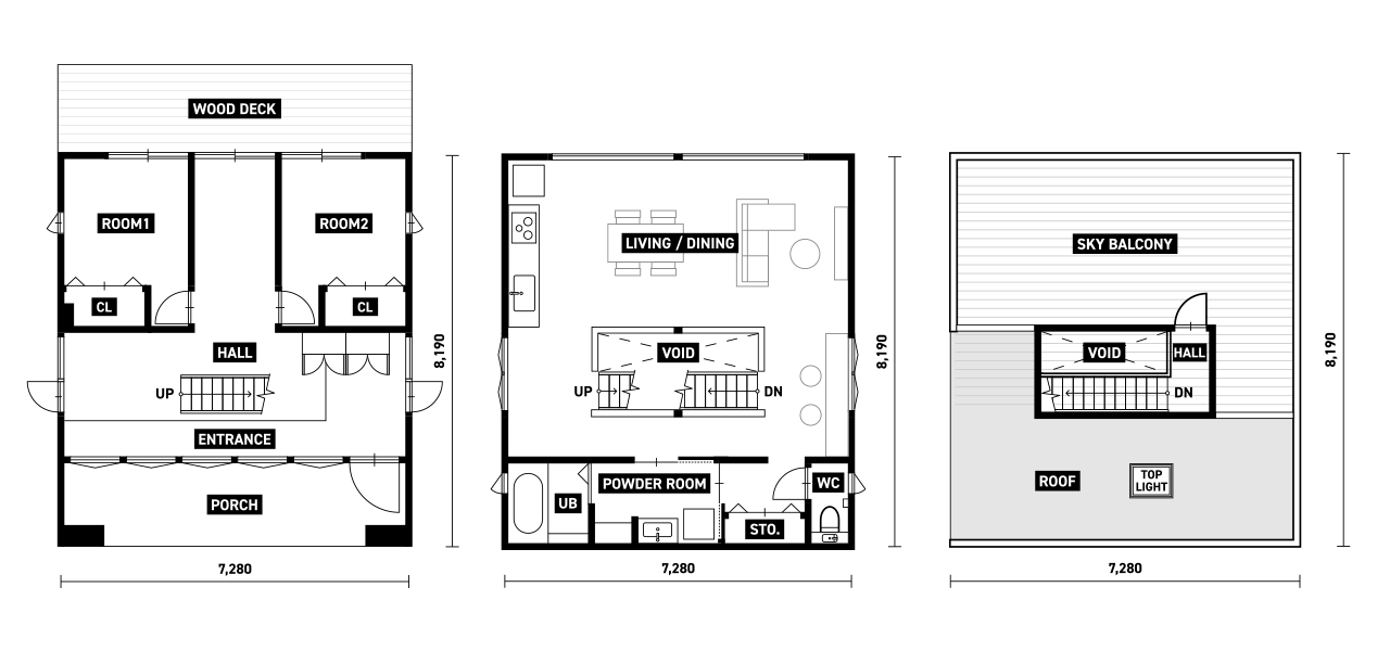
<フロアプラン>

1F面積 46.37㎡(14.02坪)/2F面積 55.48㎡(16.78坪)
スカイバルコニー: 建物内4.14㎡(1.25坪)バルコニー29.81㎡(9.01坪)
※スカイバルコニーはオプションです。
また、間取りプランは下記の複数パターンをご用意しています。
❶ 2階LDK / 2bedroom
❷ 2階LDK / 3bedroom
❸ 1階LDK / 3bedroom
<プロダクトサイト>
No.00 Dolive Original
https://no00.dolive.media/
----------------------------------------
「Doliveアプリ」 ダウンロードはこちら
■App Store
URL:https://app.dolive.media/store/

----------------------------------------
【Dolive(ドライブ)】について
新しい発想で住宅デザインの考え方を提案・発信する「Dolive(ドライブ)」。家づくりのアイデア&ツールとして「Doliveアプリ」をリリース。ユーザーのイマジネーションを広げるリファレンスアイデアを次々と発信し、”住みたい”を形にするための家づくりソリューションを提供しています。FC事業として、全国160社以上のDolive取扱店にてサービスを展開しています。
URL:https://dolive.media/
【BETSUDAI Inc.TOKYO 】について
私たちは、全国展開している住宅ブランド「LIFE LABEL」「Dolive」のフランチャイズ運営を行なっています。
住宅業界にまだない新しい視点とアイディアで、住サービスの価値創造を行うチームとして、常に業界のフラグシップでありたいと考えます。 家づくりが決まり切った息苦しいものではなく、「好みのスタイル」「生活にあった間取り」「そこでの過ごし方」をお客様自身が想像し、楽しみながらセレクトしていく家づくりをしてほしい。
「暮らしはもっと楽しめる」
私たちは、住宅の提案のみではなく、
そこで今後始まるそれぞれのストーリーづくりを応援します。
URL:https://ldp.media/
このプレスリリースには、メディア関係者向けの情報があります
メディアユーザーログイン既に登録済みの方はこちら
メディアユーザー登録を行うと、企業担当者の連絡先や、イベント・記者会見の情報など様々な特記情報を閲覧できます。※内容はプレスリリースにより異なります。
すべての画像