ゼロリノベが2025年の人気リノベーション事例から読み解く、住まいづくりと設計トレンド
株式会社groove agent(本社:東京都港区、代表取締役:鰭沼悟)が運営するワンストップリノベーションサービス「ゼロリノベ」は、2025年に特に多く閲覧された施工事例と、設計現場へのヒアリングをもとに、現在の住まいづくりと設計の傾向を整理いたしました。
レポートサマリー
■人気事例から見えた、住まいづくりの2つの変化
-単身で70㎡超!郊外・築古でもこだわり空間でQOL向上
-可変性、壁式構造。「今も未来も失敗したくない」ユーザーが教科書的に注目した事例
■設計現場に見る、住まいづくりの判断軸の変化
-最大の変化はユーザーのAI活用による行動変容
-デザインより“毎日使う快適さ”。設備は「削る対象」から「投資対象」へ
-不確実性の高い現代を象徴する、「可変性」と「今」を両立する間取り
2025年人気リノベーション事例ランキング

|
1位 |
リフレームの住まい(単身、76.68㎡) |
|
2位 |
この先もつづく日常に根ざした家(2人、63.05㎡) |
|
3位 |
家具美術館な家(3人、97.21㎡) |
|
4位 |
額縁のある住まい(2人、90.13㎡) |
|
5位 |
交錯する住まい(単身、44㎡) |
|
6位 |
カフェの延長線上にある暮らし。(単身、69.56㎡) |
|
7位 |
アウトラインの行方(4人、69.56㎡) |
|
8位 |
理想の暮らしの芽吹き(単身、56.29㎡) |
|
9位 |
インナーバルコニーのある生活(3人、75.37㎡) |
|
10位 |
白い水脈の家(4人、83.17㎡) |
人気事例から見えた、住まいづくりの2つの変化
単身で70㎡超!郊外・築古でもこだわり空間でQOL向上
2025年の人気事例には、単身世帯でありながら70㎡前後の住まいが複数ランクインしました。都心・コンパクトといった従来の資産価値重視の選択ではなく、郊外や築古物件も含めて検討し、ペットとの共生や趣味を楽しむ空間など、今の暮らしの質(QOL)を高める住まい選びが支持を集めています。

また、上位事例はゼロリノベの公式YouTubeで公開しているルームツアー動画経由での流入が多く、インテリアに関心が高い方や、動画で空間を擬似体験したい方の注目が集まりました。


可変性、壁式構造。「今も未来も失敗したくない」ユーザーが教科書的に注目した事例
Pinterest経由で特に閲覧数を伸ばしたのは、「この先もつづく日常に根ざした家(2位)」、「アウトラインの行方(7位)」、「白い水脈の家(10位)」といった、再現性の高いリノベーション事例でした。
2位と7位の事例で注目されたのは、将来的な部屋の増設を見越した「可変性のある造作」です。「今は広く使い、将来は仕切る」という柔軟な設計は、ライフスタイルの変化に対する不安を和らげる具体的な解として、多く参照されています。


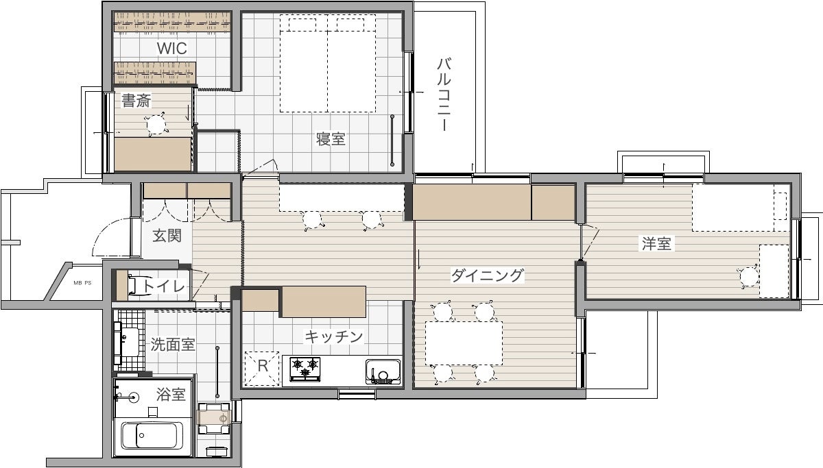
一方、10位の「白い水脈の家」は、間取り変更の制約が大きい壁式構造マンションの事例です。
制約のある構造の中で、キッチン周辺の動線や収納計画を工夫した点が評価され、間取り図やキッチン写真への閲覧が集中しました。


設計現場に見る、住まいづくりの判断軸の変化
2025年の住宅リノベーション傾向を設計施工部部長の髙橋が解説いたします。
解説:ゼロリノベ設計部部長 髙橋陸人
最大の変化はユーザーのAI活用による行動変容
2025年にリノベーション現場に変化をもたらしたのは、生成AIの普及です。特にお客様自身が生成AIを活用し、プランや補助金制度について予習・検証するケースが急増しています。
AIが「一般的な正解」を即座に出せる今、設計者に求められるのは「お客様一人ひとりにとっての最適解」を読み解く「翻訳者」としての能力です。
過去の設計経験に加え、補助金制度や断熱工事など、専門知識が必要でAIの学習がまだ浅い分野については、設計者自身が専門性を高める必要があります。今後は、AIと協働しながら、個人の文脈を空間に落とし込む力が設計の鍵となるでしょう。
デザインより“毎日の快適さ”。設備は「削る対象」から「投資対象」へ
フルリノベーションの予算調整は従来、住宅設備の予算を抑えてデザイン性に投資するのが一般的でしたが、近年は「長期的に使いやすく満足度が高いもの」へとお客様の要望が変化しつつあります。設備のメンテナンス性能、家事負担軽減を叶える機能性を重視して予算配分が高まる傾向が伺えました。また、「先進的窓リノベ2025事業」といった補助金制度の認知度がAI普及で高まり、内窓設置がスタンダードになっています。
不確実性の高い現代を象徴する、「可変性」と「今」を両立する間取り
DINKSのお客様を中心に、「子どもの予定は未定だが、将来キッズスペースとしても使える余白を確保したい」という要望が増えています。
従来は、子どもができた段階で住み替える、あるいは最初から子ども部屋を想定した間取りが一般的でした。一方で近年は、将来の可能性を残しつつ、今の暮らしを犠牲にしない設計が支持されています。
具体的には、収納量を重視した「小上がり」に代わり、くつろぎや集中、家族との会話など住まいの中での過ごし方に意味を持たせる空間への関心が高まっています。2025年は、夫婦それぞれの時間や二人の時間を楽しむ「ヌック」などが、その象徴的な例と言えます。


主要サービス「ゼロリノベ」について
「ゼロリノベ」は、中古住宅の購入から設計・施工・アフターフォローまでを一貫して提供するオールワンストップのリノベーションサービスです。「大人を自由にする住まい」をコンセプトに、経済的にも空間的にも余白を残した暮らし方を提案しています。
SNSやオウンドメディア、YouTubeなどを通じて、月間約391万人に向けて住まいと暮らしのヒントを発信しています。
会社資料:https://journal.zerorenovation.co.jp/wp-content/uploads/2025/07/factbook-202507.pdf
会社概要
会社名:株式会社groove agent
代表取締役:鰭沼 悟(えびぬま さとる)
設立:2011年11月11日
所在地:東京都港区北青山2丁目12-42
事業内容:不動産仲介、リノベーション設計・施工
コーポレートサイトURL:https://www.zerorenovation.co.jp/
ゼロリノベ本店URL:https://maps.app.goo.gl/R4CgiPVktBMkgBLt8
ゼロリノベ駒込店URL:https://maps.app.goo.gl/dswAU3rdMxjwNboa8
ゼロリノベ横浜店URL:https://goo.gl/maps/NGabMuD8gHw2AeWj7
ゼロリノベ大阪店URL:https://maps.app.goo.gl/UMTgi7s76pXQcu8g9
このプレスリリースには、メディア関係者向けの情報があります
メディアユーザー登録を行うと、企業担当者の連絡先や、イベント・記者会見の情報など様々な特記情報を閲覧できます。※内容はプレスリリースにより異なります。
すべての画像
