ズボラなまま、心地いい。扉をなくした開放的な間取りと、仕事に集中できる「離れ書斎」のあるマンションリノベ完成見学会を愛知県豊田市で開催決定
マンション特有の閉塞感や湿気も、適材適所の素材選びと間取りの工夫で解決。余白を大切にした心地よい暮らしをご体感いただけます。来場者限定で、ご成約の方に最大20万円分の家具をプレゼント。

愛知県でリノベーション事業を展開する株式会社sumarch(本社:愛知県名古屋市中村区、代表取締役:鳥居儀彰、以下KULABO)は、マンションリノベーション見学会を2026年1月31日(土)、2月1日(日)に愛知県豊田市にて開催いたします。
実際にKULABOでリノベーションしたオーナー様のお住まいを見学できる「リノベーション見学会」です。間取りや設計の工夫・デザインのアイデアなど、家づくりのヒント盛沢山!写真だけでは分からない素材の質感や雰囲気、リノベーションの魅力をREALにご体感ください!
見学会について、詳しくは特設ページをご確認ください。
https://kulabo.co.jp/events/115
見どころポイント
==DATA==
家族構成:2人暮らし
築年数:41年
リノベーション費用:約1,890万円(2025年施工)
工事期間:約4ヵ月


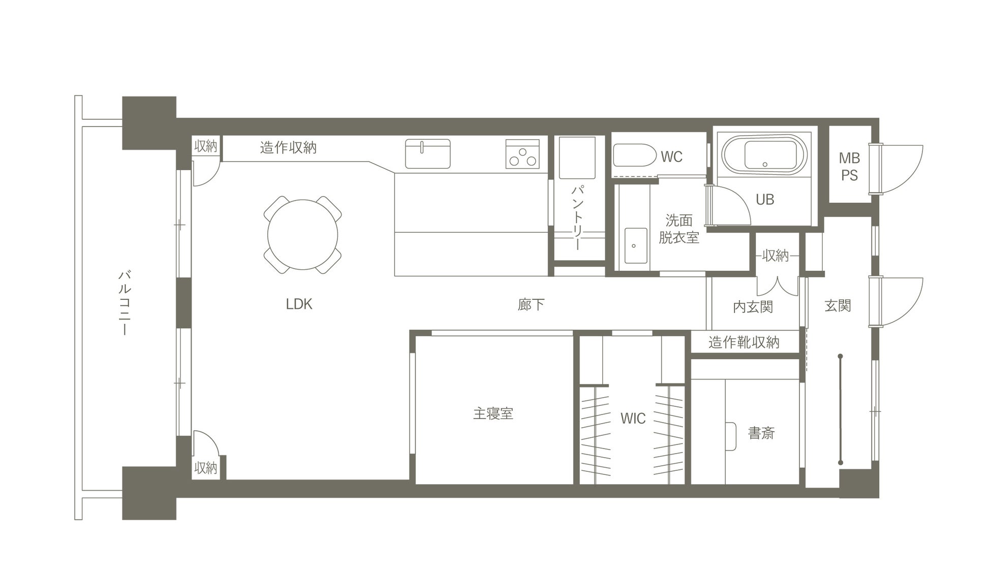
■扉を設けず、光・色・高さで空間の役割を分ける間取り

この住まいでは、玄関とトイレ以外に扉を設けていません。その代わり、壁の色、床の段差、開口の高さを調整することで視線の高さや光の入り方が変わり、空間ごとの役割を自然に分けています。
マンション特有の閉塞感を抑えながら、光や風が住まい全体に行き渡る、開放的な住まいを実現しています。
■「あえての遠回り」で仕事モードへ。玄関を通って入る”離れ”のような書斎

在宅ワークでの最大の悩み「オンオフの切り替え」を、間取りで解決。あえて玄関を通らないとアクセスできない”離れ”のような書斎をつくりました。「一度靴を履く」というわずかな動作が、仕事と暮らしの気持ちを自然に切り替えるスイッチになり、集中してこもれる書斎空間になっています。
■掃除は楽に、足元は心地よく。適材適所の素材選び


「よく歩く場所」「素足で過ごす場所」など、機能に合わせて素材を使い分けています。リビングや廊下には風合い豊かな「オークの幅広フローリング」、寝室や書斎には素足に心地よい「サイザル麻」、水回りには掃除が楽な「塩ビタイル」を。その他にも、マンション特有の湿気対策も考慮した厳選素材が、ズボラなままでも心地よく、暮らしを整えてくれます。
開催概要
開催日:2026年1月31日(土)、2月1日(日)
時間:10時~17時
開催場所:愛知県豊田市
※オーナー様のプライバシー配慮のため、詳しい住所はご予約いただいた方だけにお伝えしております。
参加費:無料
申込締切:2026年1月30日(金)まで ※事前予約制
見学会の詳細やご予約は、特設イベントページよりご確認ください。
来場者限定!特典プレゼントあり!
当イベントに来場した後、当社でリノベーションをご成約いただいた方に、成約金額に応じて家具をプレゼント!
★500万~999万のご成約
→家具10万円分プレゼント!
★1,000万円以上のご成約
→家具20万円分プレゼント!
特典規約あり。詳しくは、特設イベントページよりご確認ください。
KULABOとは

リノベーションスタジオKULABOは愛知県・岐阜県・東京都(一部エリア除く)において、中古戸建、中古マンションのリノベーション・大規模リフォームの提案をしています。
リノベーションを前提とした中古物件のご紹介から、プラン・デザインの提案、施工、アフターメンテナンスまで一貫してサポートします。お客様のニーズやご予算、ライフスタイルに合わせて部分リフォームからフルリノベーション、耐震工事や断熱工事まで幅広くご対応。デザイン性と価格のバランスを取り、可能な限りお客様のご要望を叶えつつ、適正価格でプランを提案します。
会社概要
■会社名
株式会社sumarch
コーポレートサイト:https://sumarch.co.jp/
■代表者
代表取締役 鳥居 儀彰
■ブランド名
リノベーションスタジオKULABO
KULABO HP:https://kulabo.co.jp/
■所在地
本社 〒450-6421 愛知県名古屋市中村区名駅三丁目28番12号 大名古屋ビルヂング21F
TEL:052-526-1395 FAX:052-526-1396
店舗
中村スタジオ/千種スタジオ/昭和スタジオ/緑スタジオ/一宮スタジオ/春日井スタジオ/岡崎スタジオ/長久手スタジオ/豊田スタジオ/恵比寿スタジオ
■設立
2009年11月
■事業内容
不動産再生事業(リフォーム・リノベーション)
■従業員数
250名(2025年4月時点)
ーーーーーーーーーーーーーーーーーーーーーーーーーーーー
■一般の方からのお問合せ先
リノベーションスタジオお客様総合窓口
0120-85-7755
10:00~18:00 年中無休(年末年始除く)
すべての画像
