「自分たちの理想の空間で暮らしたい」から始まった物件探し。壁付けキッチンで叶えた開放感と、動かせない配管をデザインに変えた、マンションリノベ完成見学会を名古屋市昭和区で開催
実際にKULABOでリノベーションした住まいで、間取りや素材、動線の工夫を体感できる見学会です。来場者限定で、ご成約の方に最大20万円分の家具をプレゼント。

愛知県・岐阜県・東京都(一部エリア除く)でリノベーション事業を展開する株式会社sumarch(本社:愛知県名古屋市中村区、代表取締役:鳥居儀彰、以下KULABO)は、マンションリノベーション見学会を2026年4月25日(土)、26日(日)に愛知県名古屋市昭和区にて開催いたします。
実際にKULABOでリノベーションしたオーナー様のお住まいを見学できる「リノベーション見学会」です。間取りや設計の工夫・デザインのアイデアなど、家づくりのヒント盛沢山!写真だけでは分からない素材の質感や雰囲気、リノベーションの魅力をREALにご体感ください!
見学会について、詳しくは特設ページをご確認ください。
https://kulabo.co.jp/events/121
見どころポイント




HOUSE DATA
家族構成:ご夫婦
築年数:28年
リノベーション費用:約2,030万円(2025年施工)
打合せ期間:約3ヶ月
工事期間:約3ヵ月
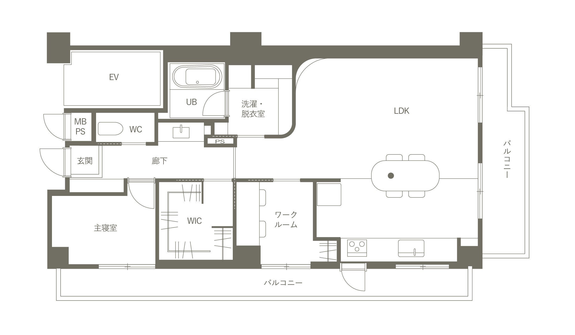
■曲線の壁と間接照明がつくる、やわらかく開放的なLDK

リビングのR壁と間接照明を組み合わせることで、空間全体に柔らかな陰影が生まれ、やさしい雰囲気を演出。曲線の壁面に作られたニッチにはお気に入りの小物をディスプレイでき、空間のアクセントとしても楽しめます。
■生活感を隠してすっきり魅せるオーダーキッチン

完全オーダーメイドのキッチンは、レンジフードや家電を収納の中にすっきり収める設計。壁付けにすることでLDKの視線が抜け、空間が広く感じられます。さらに家具のように馴染むデザインで、生活感を抑えたミニマルな印象を実現しています。
■洗う・干す・しまうがひと続きで完結する家事動線

ランドリールームには室内干し用のパイプや可動棚を配置し、洗濯〜収納までをひとつの場所で完結。家事が効率よく行えるだけでなく、日常の動きがスムーズになり、暮らしの快適さを格段にアップさせています。
開催概要
開催日:2026年4月25日(土)、26日(日)
時間:10時~17時
開催場所:愛知県名古屋市昭和区
※オーナー様のプライバシー配慮のため、詳しい住所はご予約いただいた方だけにお伝えしております。
参加費:無料
申込締切:2026年4月24日(金)まで ※事前予約制
見学会の詳細やご予約は、特設イベントページよりご確認ください。
来場者限定!特典プレゼントあり!
当イベントに来場した後、当社でリノベーションをご成約いただいた方に、成約金額に応じて家具をプレゼント!
★500万~999万のご成約
→家具10万円分プレゼント!
★1,000万円以上のご成約
→家具20万円分プレゼント!
特典規約あり。詳しくは、特設イベントページよりご確認ください。
KULABOとは

リノベーションスタジオKULABOは愛知県・岐阜県・東京都(一部エリア除く)において、中古戸建、中古マンションのリノベーション・大規模リフォームの提案をしています。
リノベーションを前提とした中古物件のご紹介から、プラン・デザインの提案、施工、アフターメンテナンスまで一貫してサポートします。お客様のニーズやご予算、ライフスタイルに合わせて部分リフォームからフルリノベーション、耐震工事や断熱工事まで幅広くご対応。デザイン性と価格のバランスを取り、可能な限りお客様のご要望を叶えつつ、適正価格でプランを提案します。
会社概要
■会社名
株式会社sumarch
コーポレートサイト:https://sumarch.co.jp/
■代表者
代表取締役 鳥居 儀彰
■ブランド名
リノベーションスタジオKULABO
KULABO HP:https://kulabo.co.jp/
■所在地
本社 〒450-6421 愛知県名古屋市中村区名駅三丁目28番12号 大名古屋ビルヂング21F
TEL:052-526-1395 FAX:052-526-1396
店舗
中村スタジオ/千種スタジオ/昭和スタジオ/緑スタジオ/一宮スタジオ/春日井スタジオ/岡崎スタジオ/長久手スタジオ/豊田スタジオ/恵比寿スタジオ
■設立
2009年11月
■事業内容
不動産再生事業(リフォーム・リノベーション)
■従業員数
300名(2026年4月時点)
ーーーーーーーーーーーーーーーーーーーーーーーーーーーー
■一般の方からのお問合せ先
リノベーションスタジオお客様総合窓口
0120-85-7755
10:00~18:00 年中無休(年末年始除く)
すべての画像
