利用シーンに合わせて選択できる豊かな共用部を備えた、リビタの新たな賃貸住宅シリーズ『Well-Blend』が誕生
第一弾物件『Well-Blend阿佐ヶ谷』が2022年9月にオープン
また、第一弾物件として『Well-Blend阿佐ヶ谷』(建物所有者:ジェイアール東海不動産株式会社)を開業し、2022年9月上旬より入居開始予定です。
『Well-Blend』シリーズは、2026年までに10施設の開業を目指しており、今回のプロジェクトを含め、現在4施設を企画推進中です。
WEBサイト:https://wellblend.jp/asagaya/

- 『Well-Blend』企画背景
以上のような近年の意識変化を受けて、水回りを備えたプライベート性が高い専有部と、多様なシーンを想定した共用部を設えた新たな賃貸住宅シリーズとして『Well-Blend』を企画しました。
また、物件によっては、街に開かれたラウンジをもつリビタのホテル『THE SHARE HOTELS』での運営ノウハウを活かして、運営パートナーと連携し、共用スペースをゆるやかに街に開放します。これによって入居者にとって物件内での一サービスとして利用できることに加え、地域の方にとっても新たなサードプレイスや、新たな出会いや気づきを得る場となることを目指します。さらに、運営パートナーにとっても、新たなビジネスモデルや新商品を試すマーケティングの場、ファンの獲得などのビジネス機会となり、物件を囲む人々にとってメリットのある、持続可能な運営モデルを目指します。
※国土交通省「『テレワーク』実施者の割合が昨年度よりさらに増加!~令和3年度のテレワーク人口実態調査結果を公表します~」
https://www.mlit.go.jp/report/press/content/001471974.pdf
- 『Well-Blend』シリーズとは

また、物件によりキッチンカーやカフェなど運営パートナーの出店やコラボレーションも計画しています。運営パートナーが介在することで、物件内に入居者が気軽に話せる人や安心できるいきつけの場所が生まれ、コモンスペースがサードプレイスとして機能することとなります。
ひとりでも気軽に過ごすことができ、運営パートナーやそこに集う他の入居者、さらには地域の方とのゆるやかな交流を楽しむこともできる居心地の良い共用部。ほどよい距離感のコミュニケーションはもちろん、そこで得られる刺激から、住まうことが新たな気付きにつながる賃貸住宅です。
- 第一弾物件『Well-Blend阿佐ヶ谷』
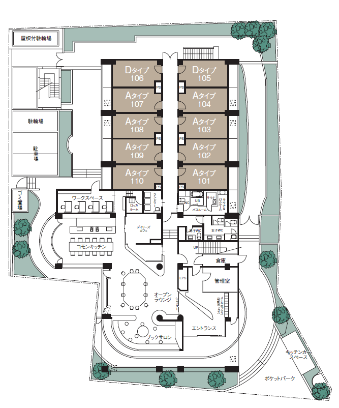
施設内のコモンスペースではジャズをBGMに、本物件のために選書された書籍を楽しめるブックサロンをご用意しています。また多世代が混ざり合う仕掛けとして、コモンスペースの一部には地域の方も利用可能なオープンラウンジを計画。
街との繋がりが希薄になりがちな単身の賃貸住まいですが、『Well-Blend阿佐ヶ谷』では街の雰囲気や街に住む人とゆるやかにつながり、街に愛着を持つ豊かなくらしが実現します。
特徴1|運営パートナー「デイリーズ」による食事提供
中央線沿線エリアで飲食店舗やライフスタイルショップを展開する運営パートナー「デイリーズ」により、共用スペースにて健康的な食事を入居者へ提供(※有料)。メニューは朝食・昼食・夕食に加え、カフェメニューも提供予定。さらには、建物前のアプローチには、小さな公園のような「ポケットパーク」を計画し、キッチンカーが出店します。この「ポケットパーク」では入居者だけでなく、地域の方も利用できるため、食事を楽しんだり、ベンチで休憩をしたりと、街と物件を媒介する要素としても機能します。
ポケットパークイメージ
特徴2|その時の気分にあわせて利用できる、充実したコモンスペース
オープンラウンジ:食事や作業など様々な用途やシーンで利用できるラウンジ
ブックサロン:物件のために選書された本を楽しめるサロン空間
コモンキッチン:調理器具や食器を備えた、広々としたキッチンスペース
ワーキングスペース:仕事や作業に集中したいときに利用可能なブースタイプの半個室空間
ルーフガーデン:アウトドアファニチャーを設えた外部空間。Wi-Fi完備で、PC作業も可能
サウナ・バスルーム:リフレッシュ可能な1人用フィンランド式サウナとユニットバス(※有料)
オープンラウンジイメージ
コモンキッチンイメージ
1階フロアマップ
特徴3|環境配慮への取り組み
リビタは、事業・プロジェクトを通してサステイナブルで豊かな未来づくりを目指しています。本プロジェクトにおいても、リノベーションという手法により、新築に比べCO2の排出量や廃棄物を大幅に削減している他、全住戸に熱交換システムを採用し、さらに一部住戸には既存建物のサッシ部分にインナーサッシを設置することで省エネルギー化を実現しています。また、プラスチックごみを削減する取り組みの一環として、施設内に給水機を設置するなど、持続可能な社会に向けた取り組みを行っています。
- 物件概要

・建物所有者:ジェイアール東海不動産株式会社
・企画・プロデュース・統括設計・運営管理:株式会社リビタ
・設計・監理:株式会社ベイス
・デザイン監修:株式会社ミハデザイン一級建築士事務所
・植栽デザイン:有限会社ブロカント
・リノベーション施工:株式会社ストラクス
・グラフィックデザイン:高い山株式会社
・プロモーションパートナー:タシリンゴ合同会社
・運営パートナー:有限会社デイリーズ
- 法人利用について
■ 特徴・メリット
・お申込み後審査完了から最短7~10日程度で入居可能なため、急な人事異動にも対応できます
・多様な人々と日常を共有する体験を通して、社員様のコミュニケーション能力を養えます
・一室から数十室までまとめてお借りいただけ、契約手続きもまとめてできます
・短期間での契約、勤務先変更に伴う物件移動の契約のご相談も承ります
・所有不動産を運用活用するコンサルティングも承ります
お問合せ先:運営事業本部 プロパティマネジメント部
Tel:03-5656-0093 Mail:info-h@rebita.co.jp
- 株式会社リビタについて
社会、くらしをリノベーションし、あなたと環境にとって豊かな未来をつくる会社として設立。「次の不動産の常識をつくり続ける」を経営ビジョンに掲げ、一棟、一戸単位のマンションや戸建てのリノベーション分譲事業やリノベーションコンサルティング事業、投資事業、シェア型賃貸住宅や商業施設、公共施設の企画・運営、PM・サブリース事業、ホテル事業、オフィス事業を手がけています。
現在、一棟まるごとリノベーション事業の企画・分譲供給実績は55棟1,670戸(2022年3月時点)、また『シェアプレイス』シリーズをはじめとするシェア型賃貸住宅は、都内近郊に19棟1,201室を運営中(2022年3月時点)。リノベーション分譲事業では、100平米超の面積を有し、立地と資産価値にこだわったマンションを紹介する『R100 TOKYO』をはじめ、一戸単位のマンションリノベーションの企画・供給実績は1,097戸(2022年3月時点)。その他、東京内神田のシェア型複合施設『theC』、大人の部活がうまれる街のシェアスペース『BUKATSUDO』など、暮らしの概念を「働く」「遊ぶ」「学ぶ」などにも領域を広げたプロジェクトの企画・プロデュース・運営も多く手がけています。2016年3月にはホテル事業を開始、全国で『THE SHARE HOTELS』を9店舗展開。また、2021年よりオフィス事業を本格化し、暮らしを自由にするオフィス『12』シリーズを展開。
名称:株式会社リビタ
設立 :2005年(2012年より京王グループ)
代表取締役社長:川島純一
住所:東京都目黒区三田1‐12‐23 MT2ビル
-------------------------
■お問い合わせ、ご質問、取材のお申込み、画像・素材のお貸し出し
株式会社リビタ PRコミュニケーションデザイン部 田村・石川
pr@rebita.co.jp
-------------------------
このプレスリリースには、メディア関係者向けの情報があります
メディアユーザー登録を行うと、企業担当者の連絡先や、イベント・記者会見の情報など様々な特記情報を閲覧できます。※内容はプレスリリースにより異なります。
すべての画像
- 種類
- 商品サービス
- ダウンロード
