関東エリアの新築分譲マンション初!ウルトラファインバブル給湯器を標準搭載「五香」駅利用では17年ぶりの新築分譲マンション、徒歩2分・全邸南向き「ルピアコート松戸五香」第1期販売開始
ポラスグループ 株式会社中央住宅
ポラスグループで、マンション事業を手がける㈱中央住宅 マインドスクェア事業部マンションDv (本社:埼玉県越谷市、代表取締役社長:品川典久)では、『千載一遇』をコンセプトにVALUE(価値)、DESIGN、PLAN、FACILITY(設備)、LOCATIONにこだわった新築分譲マンション、「ルピアコート松戸五香(全38 戸)」を販売開始することになりました。(TES:東京ガスのガス温水システムの商品名)当該マンションは、関東エリアの新築分譲マンションとして初(※)となるTES ウルトラファインバブル給湯器を標準搭載し、ポラスのマンションでは初めて、顔認証システムを採用(共用部、一部住戸)するなど、新たなご提案を盛込んでいます。(※)京葉ガス調べ

コンセプトは『千載一遇』
五香の地の5つの魅力が集結し、まさに「千載一遇」と呼ぶに相応しい、此処でしか描くことにできない物語(住まい)を目指しました。
V A L U E :五香駅徒歩2分、全邸南向き
D E S I G N :街並みと呼応しながらも、モダンデザインの美意識が香り立つ独創的な佇まい
P L A N :実用新案取得済み「ピアキッチン」などこれ
まで評価の高いプランを採用
F A C I L I T Y :「AKUNDANA」、「かくれんBOX(ゴミ箱専用スペース)」など実用新案を取得した、住まう人の目線で考えた様々な設備
LOCATION:商店街と美しい桜並木がある、駅近ながらも落ち着いた住環境
また、3LDK+DEN 84㎡超の最上階は、ワンランク上の上質な「ロイヤルスイートフロア」をご用意しています。
◆「ルピアコート松戸五香」主な特長

①駅徒歩2分の立地に加え、南側に開けた立地を活かした、全邸が南向きプラン ②関東エリアの新築分譲マンション初!ウルトラファインバブル給湯器を標準搭載 ③ポラスのマンション初!顔認証システムを採用 ④電力・ガスなどのエネルギー消費量を 20%以上削減した ZEH-M Oriented マンション ⑤住む人目線で細部にまでこだわった間取り・設備仕様(ピアキッチンやAKUNDANA、各種収納)  | 
1.関東エリアの新築分譲マンション初!ウルトラファインバブル給湯器を標準搭載
ウルトラファインバブル給湯器は、ウルトラファインバブル入りのお湯をキッチン、浴室、洗面などの家中に送り出すことができ、微細な泡が高い洗浄効果を発揮します。ウルトラファインバブル給湯器はリンナイ㈱社製を採用。
【ウルトラファインバブル】とは
直径1 マイクロメートル未満の微細な泡で、細かい隙間にある汚れを落とす作用があり、その洗浄効果から幅広い
分野で活用されています。泡のサイは、数十ナノメートル~1 マイクロメートル未満。ウイルスや煙と同等サイズです。泡の残存期間は、微細運動をしながら、水中に長期残存(数週間から数カ月)
【水回り各所での効果】

キッチン:ニオイやつまりの原因になる油汚れなどが流れやすくなり、排水溝の汚れや、シンクの水垢を付きづらくします。浴 室・洗面所:汚れの原因菌が流されやすくなり、浴室の床、浴槽の水垢、パッキンの汚れや排水口の汚れも付きづらくします。また、肌に対して、汚れを落とすだけでなく角層水分
量を増加させ肌のうるおいを持続させます。
※効果効能の詳細はリンナイWeb サイトへ
(https://rinnai.jp/ultrafinebubble/)
2.ポラスのマンション初!顔認証システムを採用

万が一を想定し、毎日の安心を支えるセキュリティ対策として、ポラスグループのマンションで初めて、顔認証システムを採用しました。エントランスからメールボックス一体型宅配ボックス、自転車置き場のドア解除、ゴミ置き場の扉など、スマート&セーフティなマンションライフを実現します。最上階「ロイヤルスイートフロア」の2邸は、玄関ドアまで顔認証システムを導入しています。

3.ZEH-M Oriented マンション
電力・ガスなどのエネルギー消費量を 20%以上削減したZEH-M Oriented マンション
・断熱材を厚くすることで室内の熱が逃げにくいしようとなっています。
・夏は日射熱を和らげ、冬は室温をキープする「Low-E複層ガラス」を採用。
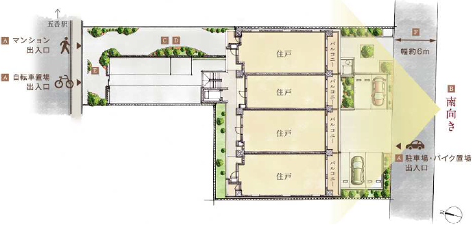
4.暮らし心地を高めるため、随所に工夫を凝らしたランドプラン
駅徒歩2分の立地に加え、南側に開けた立地を活かした、全邸が南向きプラン

A 歩車分離設計
安心して通行できるよう、歩行者、自転車、自動車・バイクの出入り口を分け、敷地内の安全性を高めています。
B 全邸明るい南向き
南側に開けた立地を活かし、全邸が南向きプランになるよう建物レイアウトにこだわりました。

C 潤いに満ちたアプローチ
豊富な植栽を配し、潤いの風景、明るい陽射し、プライバシー性など、ステータスを感じていただける空間に。
D 照明計画
エントランスアプローチは、光の演出により街の賑わいと一線を画し、別世界のような雰囲気を作り出します。
E 地域との繋がり
外部と完全に分断するのではなく、本敷地と地域とを融合するかのようなスペースを設け、ゆとりと開放感のあるライフシーンを演出します。
F 約6mの前面道路
全38邸のバルコニー側となる南側は幅員約6mの道路に面していため、明るさと開放感の維持が期待されます。
5.住む人目線で細部にまでこだわった間取り・設備仕様(ピアキッチ
ンやAKUNDANA、充実した各種収納)
●多彩な間取り
1LDK+S(54.88㎡)~3LDK+DEN(84.40㎡)まで6タイプをご用意。
●【実用新案取得済み】ピアキッチンプラン
キッチンをタテに配置し、キッチンが暮らしの真ん中にあるプラン。キッチンと一体型のカウンターを装備したオリジナルプラン『ピアキッチン』(実用新案取得済)。カウンターはワークスペースにも、子どもの勉強スペースにもなります。また、キッチンで食事の準備をしながら洋室で遊ぶ子どもの様子を見守ることも可能です。

●飾り棚にしか見えない、隠し扉のような「AKUNDANA(アクンダナ)」

廊下に造りつけの飾り棚を設置し、収納力をアップするとともに、その一部を隠し扉のような居室扉「アクンダナ」にすることで、ギャラ
リーのような新しい廊下空間を提案。棚の一面を、家族のメッセージボードとして使えるよう、マグネットのつくブラックボードを採用しました。
●こだわりの設備仕様
キッチンに設えた大型の食器棚は備え付け。最適なサイズとデザイン性に優れ、美観を叶えます。

●使いやすく、美しい多彩な収納


◆「ルピアコート松戸五香」概要
所在地: 千葉県松戸市常盤平5-20-3、5(地番)
・交 通: 新京成線「五香」徒歩2分
・敷地面積: 807.82㎡
・建築面積: 406.20㎡
・専有面積: 54.88㎡~84.40㎡
・間取り: 1LDK+S~3LDK+DEN
・総戸数: 38 戸
・構造階数: 鉄筋コンクリート造 地上11階建
・価 格: 3,900万円台~8,000万円台
・竣 工: 2025年2月中旬予定
・入 居: 2025年3月下旬予定
・売 主: ㈱中央住宅、三信住建株式会社
・販売提携: 株式会社東京中央建物
このプレスリリースには、メディア関係者向けの情報があります
メディアユーザー登録を行うと、企業担当者の連絡先や、イベント・記者会見の情報など様々な特記情報を閲覧できます。※内容はプレスリリースにより異なります。
すべての画像