フレキシブルに「広くて一つ」の空間を活かすニコイチプラン決定
団地に“おもや”と“はなれ”で職住共存の住空間を実現~ 泉北ニュータウン 茶山台B団地(堺市南区)~
大阪府内において公社賃貸住宅SMALIO(スマリオ)を提供する大阪府住宅供給公社(本社:大阪市中央区、理事長:山本 讓、「以下、公社」)は、茶⼭台B団地(堺市南区)で実施する子育て世帯など若年層の多様なニーズに対応する住⼾リノベーションプラン「ニコイチ」「リノベ50」を事業提案競技により選定しましたのでお知らせします。完成後は、2023年1月頃から入居者募集を行い、若年層に魅力的な住宅を提供することで、地域の活性化を図り、泉北ニュータウンのまちづくりに貢献していきます。
ニコイチプランイメージパース
リノベ50プランイメージパース
公社では⾼齢化が進む⾼経年の団地において、単⾝世帯や若年夫婦、子育て世帯などの若年層を誘引するため、2014年度から若手建築家などのアイデアや⺠間事業者のノウハウを活⽤した住⼾リノベーションを継続的に実施しています。
今年度は「じぶん時間を照らすサステナブルな暮らし」をテーマに、茶山台B団地で隣り合う2住戸を1住戸にリノベーションした「ニコイチ」2戸と1住戸リノベーションである「リノベ50」1戸のプラン設計・施工・工事監理業務について、公募による事業提案競技を行い、審査の結果、応募総数6者のうち、「株式会社Yamamura SanzLavina Architects+山村健建築都市設計事務所一級建築士事務所+C2S CREATIVE株式会社 共同企業体」を選定しました。
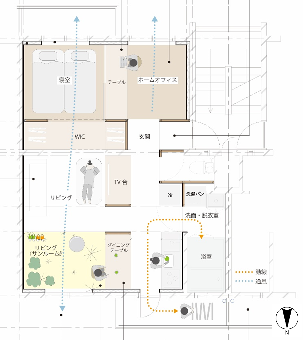
選定プランは、団地でありながら長屋のように住まう住空間として、伝統的なオモテとウラの特徴を活かして北側に生活機能を集約することで、南側に広い活動空間を配置しています。照明計画も、傾斜天井を活かしたペンダントライトや、居室には好みのランプシェード、要所にはスタンドライトが設置できる計画になっており、住まい手が自由に楽しめるよう配慮されています。また、部屋が「狭くて多い」既存の間取りを、ホームオフィスや収納が空間の間仕切の役割を担う「広くて一つ」の空間としたことで、フレキシビリティに優れ、換気効率もよく、職住が共存できる新生活様式に対応し、断熱材の使用によるサステナブルな暮らしが提案されました。
(各プランの詳細は次ページ以降をご覧ください。)
▽選定結果の詳細はこちらをご覧ください。
https://www.osaka-kousha.or.jp/x-whatsnew/2022-08-03_chayamab/kekka.html
◆ニコイチ 暮らしを豊かにする「おもや」と「はなれ」
「おもや」と「はなれ」を行き来する、懐かしくも新しい空間
「おもや」は寝食をともにして「家族の団らん」を楽しむ空間、「はなれ」は入浴や運動、趣味の時間など「じぶん時間」を楽しむ空間として捉え、両者をつなぐ場として「はなれ」のサンルームを計画します。木のぬくもりを感じられる内装と環境負荷の低減に配慮した躯体全体の十分な断熱により、サステナブルで豊かな空間を実現します。(提案プランより抜粋)
ニコイチ平面イメージ図
ニコイチ断面イメージ図
【LDK/ホームオフィス】自然光を活かした、半屋外のような自由で明るい空間
腰高窓の前にホームオフィスを設け、一年を通じて自然光や自然通風を取り入れた快適な空間を実現します。リビングは、ダイニング・キッチンと一体化したデザインとすることで、運動やDIY などの「じぶん時間」と食事をともにする「家族の団らん」の時間とを共有できる空間とします。部屋の内部でありながら外にいるような、広々とした使いやすい空間を実現します。(提案プランより抜粋)
リノベ50平面イメージ図
リノベ50断面イメージ図
今年度は6者の応募があり、今回はテーマに沿って約98㎡(49㎡×2戸)という部屋の広さを有効活用し、「家族との団らん」や「じぶん時間」を意識した空間と意匠性が高い照明計画が提案されました。また、環境負荷低減に配慮し、床にリサイクル材や室内に断熱材を使用する等、サステナブルな暮らしの提案作品が多数ありました。
最優秀作品には「暮らしを豊かにする”おもや“と”はなれ”(ニコイチ)」、「二つの半屋外的空間をもつ“半ながや”(リノベ50)」をコンセプトに、家族との団らんを楽しむ「おもや」とじぶん時間を楽しむ場として趣味の時間を過ごすサンルームやホームオフィスを設けた「はなれ」を両立したフレキシブルな提案を選定しました。
住戸プランの点では、住みやすさを感じる動線計画、コミュニティや子育ての空間としても活用できるホームオフィスの採用、床段差を減らしたバリアフリーへの配慮、また内装材については断熱材の採用、木のぬくもりを感じる造り付けの棚による収納空間の確保等について高く評価しました。
ニコイチプランイメージパース
■今後のスケジュール(予定)
2022年 8月 3日(水) 最優秀作品公表
2022年12月22日(木) 完成・引渡し
2023年 1月 下旬 入居者募集
■茶⼭台B団地の概要
所 在 地 ︓ 堺市南区茶⼭台2丁 8番
リノベ50プランイメージパース
構 造 ︓ 鉄筋コンクリート造 5階建
住⼾専有⾯積 ︓ 49 .23m² ・ 98 .46m²
⼊ 居 開 始︓ 1974年 6⽉
交 通 ︓ 泉北⾼速鉄道 「泉ケ丘」駅より徒歩約13分
◆大阪府住宅供給公社概要
代表者 :理事長 山本 讓
スマリオロゴ
所在地 :大阪市中央区今橋2丁目3番21号
事業内容 :・公社賃貸住宅SMALIO(スマリオ)等の管理・運営事業
ウェブサイト :https://www.osaka-kousha.or.jp/
SDGsロゴ
このプレスリリースには、メディア関係者向けの情報があります
メディアユーザーログイン既に登録済みの方はこちら
メディアユーザー登録を行うと、企業担当者の連絡先や、イベント・記者会見の情報など様々な特記情報を閲覧できます。※内容はプレスリリースにより異なります。
すべての画像
