全棟165㎡超で、庭付きのゆとりのある住まいを実現「リーズン八千代緑が丘 とわの街」(全72棟)平屋やサウナ付き住戸、オープンタイプのDENなどを採用
ポラスグループ 株式会社中央住宅
ポラスグループ 株式会社中央住宅(本社:埼玉県越谷市、代表取締役社長:品川典久)は、全棟165㎡(約50坪)超で、ゆとりのある住まいを実現した「REASON(リーズン)八千代緑が丘 とわの街」(全72棟)を開発しました。
同プロジェクトは、敷地の広さを活かし、勾配屋根のある開放的な平屋、懐かしくも新しい和モダン空間、DENのあるユニークな暮らしの3プランからライフスタイルに合った住宅を選べる分譲住宅です。さらに、昨今のサウナブームを受け、一部住戸には家庭用サウナ「IESAUNA(イエサウナ)」を採用。サウナ施設に通うよりも費用を抑えながら、自宅で簡単に本格プライベートサウナを楽しむことができます。そのほか、サブプランニングとして、快適動線や天井化粧梁など、暮らしの質を高める選択も可能です。
創業55周年を迎えたポラスグループでは、今後も世の中のトレンドを取り入れながら、地域の文化や個性に合わせ た街並みを創造してまいります。

◆「リーズン八千代緑が丘 とわの街」概要
所 在 地 : 千葉県八千代市大和田新田字長兵衛野784番2他22筆地番(他)
交 通 : 東葉高速鉄道「八千代緑が丘」駅徒歩18分
土地面積 : 165.31㎡~165.63㎡
建物面積 : 96.05㎡~ 99.36㎡
間 取 り : 3LDK
総 戸 数 : 72棟
販売価格 : 3780万円~4580万円(税込)
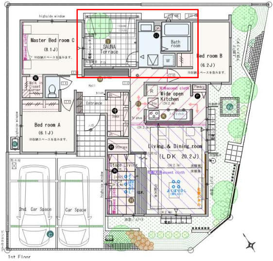
本格的なサウナを楽しめる家庭用テントサウナ「IESAUNA」を一部住戸に採用
自宅で簡単にサウナが楽しめる「IESAUNA」を一部住戸に採用(第1期販売では4棟)。採用住戸は、サウナを設 置する屋外空間を洗面脱衣所に隣接させることで、水回り空間から直接サウナにアクセスできるようプランニングしました。
IESAUNA ゼロ距離で整う、自分だけのプライベート空間
自宅でサウナを楽しめる「IESAUNA」を一部住戸に採用。専用のバイオストーブによって煙や一酸化炭素が発生し ないため、自宅のベランダで簡単にロウリュやお好みのアロマなどが楽しめるプライベートサウナです。

【「IESAUNA」採用住戸のプラン例(62号棟、平屋プラン)】

3つのスタイルプランを提案
1.敷地面積200㎡超 勾配屋根のある、開放的な平屋
日本の伝統的なスタイルを現代風にアレンジしたモダンな平屋住宅。優雅な勾配天井や開放感のあるリビング、 外とつながるインナーポーチなどくつろぎの時を深める空間がワンフロアにまとまった住まいです。


2.懐かしくも新しい、和モダン空間
フローリングが中心の現代に、座の暮らしを取り入れたスタイル。リビングの続き間として使える畳敷きの和室は 障子や格子天井など和のアイテムを揃えています。

3.DENのある、ユニークな暮らし
リビングとつながったオープンタイプのフラットDEN。DENスペースは書斎や子どもの遊び場など多目的に活用可 能。オープンタイプで仕切りがないため、リビングにいる家族の気配を感じることができます。

サブプランニング 暮らしの質を高めてくれる邸別設計


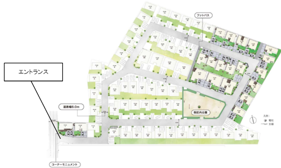
全72棟の大規模街づくりプロジェクト
全棟が165㎡超の広い敷地、コミュニティを深める公園の街づくり
開発道路と配棟計画によって陽当たりや風の流れをコントロール。街区の中央部には公園を設置し、住民同士のコミュニティの深化やエクステリアや植栽によって景観美創出に寄与します。また、エントランスが1カ所に集約さ れているため、住人以外が分譲地内に入る機会が少なく、防犯面でも安心です。



このプレスリリースには、メディア関係者向けの情報があります
メディアユーザー登録を行うと、企業担当者の連絡先や、イベント・記者会見の情報など様々な特記情報を閲覧できます。※内容はプレスリリースにより異なります。
すべての画像