再生事業戦略発表会およびメディア向け内覧会を初開催
~新築レジデンス開発の目利き力・仕入れ力・スピード感を生かした新事業展開~
投資用不動産を扱う株式会社グローバル・リンク・マネジメント(本社:東京都渋谷区、代表取締役社長:金 大仲、証券コード:3486、以下「GLM」)は、専有部分のリノベーション工事を実施しております東京都文京区本駒込二丁目のオフィスビル「パシフィックスクエア千石」において、2026年4月8日に再生事業戦略発表会およびメディア向け内覧会を初めて開催いたします。

GLMの再生事業では、潜在価値のある中古物件を取得し、リノベーションによってテナント満足度を向上させ、賃料上昇につながる付加価値を創出します。
創業以来20年間にわたり新築レジデンス開発を手がけてきたGLM独自の目利き力、仕入れ力、スピード感、そして現代のニーズに即したデザイン性を生かした建築プロデュース力を強みに、中古ビルのバリューアップを図ります。
本発表会では、2027年に向けて200億円の売上高を目指す再生事業の戦略や今後の展望について、再生事業部を管掌する上席執行役員・富永が解説いたします。メディア関係者様におかれましては、ぜひこの機会にご来場いただき、GLMの再生事業についてご理解を深めていただく一助となれば幸いです。
物件概要
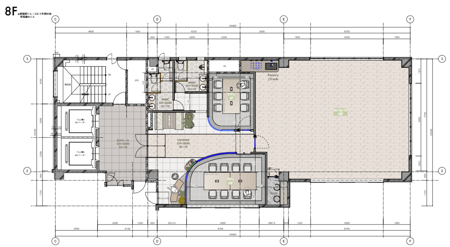
物件名 :パシフィックスクエア千石
所在地 :東京都文京区本駒込二丁目29番24号
物件規模 :SRC構造 地上9階・塔屋1階
リノベーション(8階のみ)工事完了日:2026年3月末予定
内覧会概要
日時 :2026年4月8日(水)15:00〜16:30
場所 :東京都文京区本駒込二丁目29番24号 パシフィックスクエア千石8階
アクセス:都営三田線「千石」駅 徒歩2分、山手線「巣鴨」駅 徒歩9分
登壇者 :株式会社グローバル・リンク・マネジメント 上席執行役員 富永 康将
当日のプログラム(予定):

|
15:00~15:30 |
再生事業の戦略、今後の展望についてご説明 |
|
15:30~15:50 |
質疑応答 |
|
15:50~16:20 |
パシフィックスクエア千石(8階)の内覧・撮影のご案内 |
参加方法:事前予約制
GLMの再生事業について
中古物件(オフィスビル、レジデンス、ホテル等)の取得・販売によるフロー収益と、物件保有期間中は入居テナントからの賃料収入によるストック収益の獲得・拡大を図る事業です。その一環として、デザイン改修や水廻り・照明等の建物設備の更新を通じてテナント満足度の向上を図り、賃料収入の最大化を目指します。2025年までの供給実績約140億円に対し、2026年の供給は約160億円を見込んでいます。

オフィス室内


お手洗い


レイアウト図

パシフィックスクエア千石について
-
物件を取得した背景
1992年11月に竣工し築33年を迎える本物件は、都営三田線「千石」駅から徒歩2分に位置しております。千石駅周辺は住宅が多く集積する居住エリアである一方、1フロア面積が100坪規模のオフィスビルは希少であり、上層階からは東京スカイツリーを望むことができる開放的な眺望を確保しています。
-
共用部は既存価値を生かし、専有部を戦略的にリノベーション
エントランスおよび共用部については、本物件取得時に既に一定のリノベーションが施されており、築年数を感じさせないクオリティを有しています。当社ではその既存価値を生かしつつ、専有部の再生を実施。8階部分をセットアップオフィスとして再構築し、入居後すぐに事業を開始できる環境を整えました。
-
レジデンス開発で培った、デザイン性と機能性を両立した空間設計
GLMがレジデンス開発で培ってきた「居心地」へのこだわりを活かし、無機質になりがちなオフィス空間に温かみを加えました。また、開放感のあるレイアウト設計、細部まで統一されたマテリアルバランス、企業ブランドを引き立てるニュートラルで上質なデザインにより、入居企業が自社の個性を反映しやすい拡張性の高い空間を実現しました。住空間で磨き上げてきた設計思想を、オフィス空間へと昇華させています。
株式会社グローバル・リンク・マネジメント 会社概要
設立: 2005年3月
代表: 代表取締役社長 金 大仲
本社: 東京都渋谷区道玄坂一丁目12番1号 渋谷マークシティウエスト 21F
事業: 不動産ソリューション事業(投資用不動産の開発、再生、土地企画)
会社HP: https://www.global-link-m.com/
再生事業:https://www.global-link-m.com/business/revitalization/
※本プレスリリースは、物件の販売・賃貸を目的としたものではありません。
このプレスリリースには、メディア関係者向けの情報があります
メディアユーザー登録を行うと、企業担当者の連絡先や、イベント・記者会見の情報など様々な特記情報を閲覧できます。※内容はプレスリリースにより異なります。
すべての画像
