エリア14年ぶりの分譲マンション「Brillia 神戸旧居留地」10月19日(土)モデルルームグランドオープン
神戸市初の「ZEH-M Ready」認証を取得
東京建物株式会社は、神戸旧居留地の旧「日本真珠会館」(神戸市中央区)建替え事業として開発中の共同住宅・展示場・事務所からなる複合マンション「Brillia神戸旧居留地」(以下「本物件」)のモデルルームを、2024年10月19日(土)にグランドオープンしますので、お知らせします。モデルルームは、東京建物の新築分譲マンション「Brillia」の神戸における集約販売拠点「Brillia Gallery神戸」に設けます。販売開始は2024年11月中旬を予定しています。

本物件は、JR線「三ノ宮」駅から徒歩10分に位置し、旧居留地エリアで14年ぶり※1となる分譲マンションです。神戸市初の「ZEH-M Ready」※2の認定を住棟で取得したほか、都市の低炭素化の促進に関する法律(略称:エコまち法)で定める「低炭素建築物」※3としての認定も受け、環境や家計に配慮した計画としています。また、「コープこうべ」と次世代型宅配システム「Pabbit」が連携した宅配BOXを各住戸の玄関横に設置し、居住者不在時でも各住戸玄関前まで配送が可能となるサービスを導入することで、入居者の利便性向上と再配達削減を図ります。さらに入居者の安全・安心につなげるため、災害に備えた種々の施策を講じています。
【本リリースのポイント】
・ 神戸旧居留地エリアで14年ぶりの分譲マンション。
・ 高い省エネ性能により、神戸市初となる「ZEH-M Ready」認証、「低炭素建築物」認定を取得。
・ 「コープこうべ」と「Pabbit」が連携する宅配BOXを各戸玄関横に設置。再配達の削減にも貢献。
・ 災害に備えた「Brillia」独自のトリプルセーフティ(そなえる、まもる、たすけあう)を実施。
※1 神戸市中央区の神戸旧居留地内の新築分譲マンションとして14年ぶりの供給となります。神戸旧居留地とは、神戸市の旧居留地地区地区計画に定められた約22.1haの地域を指します。
※2 「ZEH-M Ready」とは省エネと創エネで年間消費エネルギーをマンションの住棟単位で50%以上削減するものです。これまでに神戸市で発売された新築分譲マンション(投資用除く)において、「ZEH-M Ready」認定のマンションは本件が初となります。(2024年9月現在 ※MRC調べ)
※3 低炭素建築物とは、建築物における生活や活動に伴って発生する二酸化炭素抑制のため、低炭素化に資するさまざまな措置が講じられている建築物で、所管行政庁が認定を行います。
本物件の特徴
1. 神戸旧居留地エリアで14年ぶりの分譲マンション
・ 希少性、利便性の高い立地
神戸旧居留地は、1868 年の神戸港開港に始まり、西洋の近代都市計画によるまちづくりが受け継がれてきた街です。大正から昭和初期に建てられたレトロモダンな近代建造物を保全、活用しながらハイブランドショップやカフェが建ち並び、神戸の風土と国際的な雰囲気が融合した独特の魅力を持っています。本物件は旧居留地にあった旧「日本真珠会館」(2023年3月閉館)の建替えにより、新築分譲マンションとして2026年9月下旬(引渡し予定)に誕生します。


・ 旧居留地の景観を維持する外観デザインと独立性の高い住戸プランニング
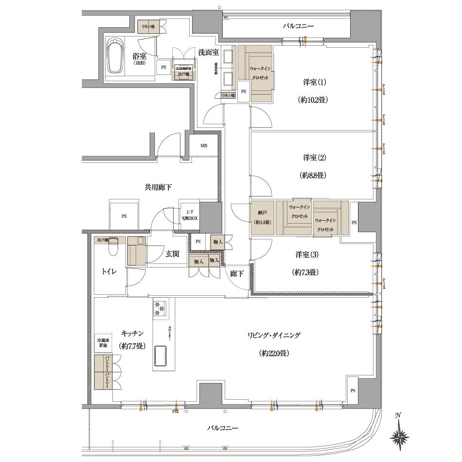
本物件は、旧居留地の建物に多くみられる三層構成に倣い、頂部、中層部、低層部の三層で構成されたデザインとしています。頂部は旧「日本真珠会館」のモダニズム建築の要素を取り入れ、中層部は旧居留地の西洋建築の縦基調をアール型マリオンで表現、低層部は外壁の水平ラインを強調することで西洋建築の美意識を反映しています。住戸は38㎡台の1LDKから147㎡台の3LDKまで幅広いプランニングを用意し、10階以上は1フロア2~3戸とするプレミアムフロアに設定しました。全体住戸の約67%を独立性の高い角住戸とし、近接の東遊園地を望める住戸も用意しています。


2. 高い省エネ性能により、神戸市初となる「ZEH-M Ready」認証、「低炭素建築物」を取得
本物件は、Low-E 複層ガラスや断熱材、エネファーム※4の採用等による省エネと、屋上に設置する太陽光発電パネルからの創エネにより、一次エネルギー消費量を50%以上削減する計画としており、神戸市初となる「ZEH-M Ready」の認証を取得しています。また、エコまち法で定める「低炭素建築物」認定に加え、建築物の省エネ性能を第三者機関が評価・認証する制度「BELS(ベルス)」にて、6段階中5つ星のランクを獲得しています。高い省エネ性能を誇る本物件は、光熱費節約につながる家計にもやさしい計画となっています。
※4 一部タイプには「エコジョーズ」を採用しています。
3. 「コープこうべ」と「Pabbit」が連携する宅配BOXを各戸玄関横に設置、再配達の削減に貢献
「コープこうべ」と次世代型宅配システム「Pabbit」※5が連携した宅配BOXを採用し、「コープこうべ」と指定配送業者が配送する荷物を、居住者不在時でも各住戸玄関前に設置した宅配BOXまでお届けするサービスを導入します。本サービスの提供により、居住者の利便性向上だけでなく、再配達の削減にも貢献します。宅配BOXは上下2段に分かれており、下段が「コープこうべ」専用のBOXとなります。

※5 「Pabbit」とは、株式会社PacPortとアイホン株式会社が共同開発した、荷物の伝票番号をセキュリティ解錠キーとする次世代型宅配システムです。オートロックマンションにおいて、指定配送業者が配達中の荷物の伝票番号で集合玄関のセキュリティ扉を解錠して入館することで、居住者が不在の時でも各住戸専用宅配BOXへの投函が可能になります。
4. 災害に備えた「Brillia」独自のトリプルセーフティ(そなえる、まもる、たすけあう)を実施
本物件では、Brillia独自の総合的防災対策「Brillia防災対策ガイドライン」(2011年グッドデザイン賞受賞)に沿って、平常時[そなえる]、災害時[まもる]、災害後[たすける]のトリプルセーフティに取り組みます。
・ 平常時:そなえる
地震や風水害発生時の備えた「オリジナル防災マニュアル」を全戸に配布。入居者向けの防災説明会や消防訓練を実施し、入居者の防災意識を醸成します。
・ 災害時:まもる
地震対策機能付きエレベーター、耐震枠玄関ドア、足元保安灯、耐震ラッチ、家具固定用下地(リビング・ダイニング、キッチン)など、さまざまな対策を施しています。


・ 災害後:助ける
機能ラジオ、災害用トイレセット、ヒートパック、アルミック救急シート等が同梱されたイス付き避難用「オリジナル防災リュック」を全戸に配置。阪神・淡路大震災などの経験から、路上へのガラス等の飛散を考慮してリュック形式とし、避難者などが安全に休憩を取れるようイス付きとしています。共用部には「防災備蓄倉庫」を設置し、LEDライト、マンホールトイレ、蓄電池用太陽光パネル等を用意。また、エレベーター内に万が一閉じ込められた場合のために、「エレベーター内防災キャビネット」も設置しています。


「Brillia神戸旧居留地」概要

|
所在地 |
兵庫県神戸市中央区東町122 番1、伊藤町121 番2(計2 筆・地番) |
|---|---|
|
交通 |
JR東海道本線(JR神⼾線)「三ノ宮」駅・阪神本線「神⼾三宮」駅徒歩10分 神戸市営地下鉄海岸線「旧居留地・⼤丸前」駅徒歩10分 阪急神⼾線「神⼾三宮」駅徒歩11分ほか |
|
総戸数 |
53戸(⼀般販売43⼾、特定会員優先販売10⼾) 他、事務所・展⽰場1区画 |
|
敷地面積 |
743.64㎡(建築確認申請上面積) |
|
構造・規模 |
鉄筋コンクリート造地上13階、地下1階建 |
|
建築面積 |
568.26㎡ |
|
延床面積 |
6,188.85㎡ |
|
間取り |
1LDK~3LDK |
|
専有面積 |
38.74㎡~147.65㎡(宅配BOX面積0.5㎡~1.9㎡含む) |
|
販売時期 |
2024年11月中旬販売開始(予定) |
|
売主 |
東京建物株式会社 |
|
施工 |
株式会社大木工務店 |
|
竣工 |
2026年7月下旬(予定) |
|
引渡し |
2026年9月下旬(予定) |
|
公式サイト |
「Brillia Gallery神戸」(モデルルーム)概要

|
所在地 |
兵庫県神戸市中央区明石町32 明海ビルB1F |
|---|---|
|
交通 |
JR東海道本線(JR神⼾線)「元町」駅徒歩5分、阪神本線「元町」駅徒歩5分 市営地下鉄海岸線「旧居留地・⼤丸前」駅徒歩3分、阪急神⼾線「神⼾三宮」駅徒歩11分 |
|
電話番号 |
0120-012-250 |
|
営業時間 |
11:00~17:00(定休日:火・水・木/祝日を除く) |
本物件位置図・「Brillia Gallery神戸」(モデルルーム)案内図

「Brillia」について
Brilliaは、東京建物が展開するマンションブランドです。その時代にふさわしい「洗練」と「安心」を追い求め、住まいと暮らしを通じて、お客様一人ひとりに「自分らしい豊かさ」=「NEW LUXURY」を提供しています。
建物の企画・製造・販売だけでなく、管理・仲介(売買・賃貸)など、東京建物グループの多彩なサービスにより、みなさまの価値あるライフスタイルの実現をお手伝いします。
公式サイト:https://brillia.com/
公式Instagram:https://www.instagram.com/brillia.official/
公式X:https://x.com/Brillia_info
以上
このプレスリリースには、メディア関係者向けの情報があります
メディアユーザー登録を行うと、企業担当者の連絡先や、イベント・記者会見の情報など様々な特記情報を閲覧できます。※内容はプレスリリースにより異なります。
すべての画像
- 種類
- その他
- ビジネスカテゴリ
- 住宅・マンション商業施設・オフィスビル
- ダウンロード
