ハイグレード賃貸マンション「LUXENA」シリーズ、「サウナ付き」プレミアムプランを備え八王子寺町に誕生
~ フィンランド生まれの世界的ブランド「ハルビア」のサウナキャビンを設置 ~
MIRARTHホールディングス株式会社(本社:東京都千代田区/代表取締役:島田和一)のグループ会社である株式会社タカラレーベン(本社:東京都千代田区/代表取締役:秋澤昭一)は、2月1日より東京都八王子市において「LUXENA」シリーズ初の「サウナ付き」プレミアムプラン(限定2邸)を備えた「LUXENA 八王子寺町」を供給しましたので、お知らせします。

ハイグレード賃貸マンション「LUXENA(ラグゼナ)」ブランド
「LUXENA(ラグゼナ)」は、2017年に誕生した賃貸マンションブランドです。これまで当社が分譲マンション事業で培ってきた住まいづくりの技術と経験を基に、「ラグジュアリー(LUXURY)な住空間と、上質な暮らしを可能に(ENABLE)」といった意味合いを込めた、当社が自信を持ってお送りするハイグレード賃貸マンションシリーズとなります。
この度、東京都八王子市において「LUXENA 八王子寺町」を供給しました。「LUXENA(ラグゼナ)」ブランドとしては、今回で43棟目(LUXENA+を除く)の展開となります。
当物件では、上層階の2邸限定で優雅なサウナ付きプランをご用意しました。洗面室にサウナ発祥の地・フィンランド生まれの世界的ブランド「ハルビア」のサウナキャビンを設置。わが家にいながら、心とカラダがリフレッシュする本格的な「サウナのある生活」をお届けします。


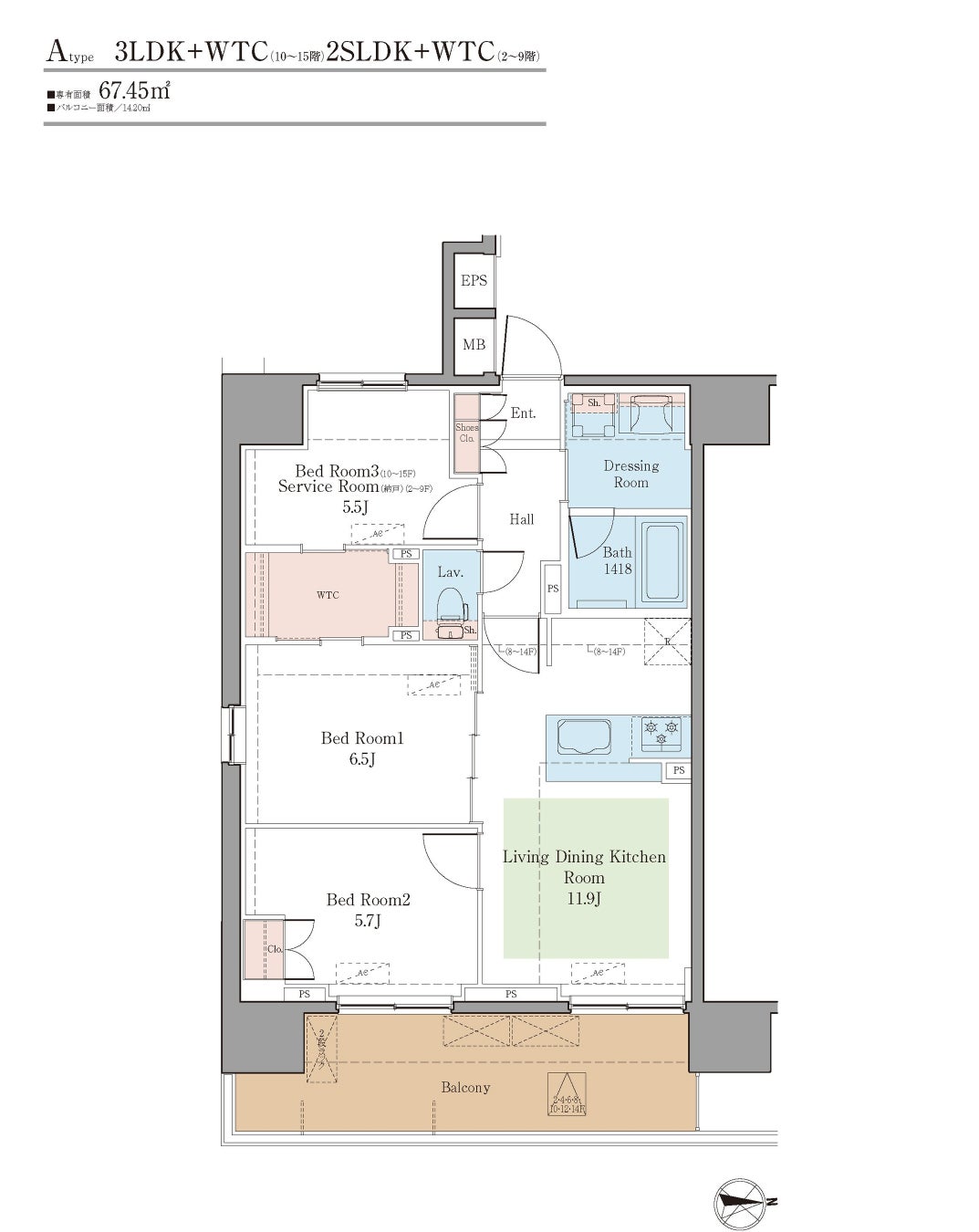
プラン
「わが家にサウナ」の贅沢を。HARVIA社製のサウナルームを導入。
日常から解き放たれるスパやリゾートホテルのリラックスをわが家で味わえたら。
そんな贅沢な願いをかなえる「サウナ付き」のプレミアムプランが登場。
賃貸住宅の概念を変えるような、ラグジュアリーなひとときをお届けします。

サウナヒーター世界シェアNo.1。
サウナ発祥の地フィンランドで75年の歴史を誇る
世界No.1サウナ&スパブランド「ハルビア」。
サウナ発祥の地として知られる北欧フィンランドで生まれた「ハルビア」は、70年以上の歴史を持ち、サウナヒーターでは世界シェアNo.1を誇るサウナブランド。
サウナの熱がもたらすさまざまな効果を、世界90ヶ国以上に届けています。

「ラグゼナ」シリーズならではの先進性と上質さを調和した住空間。

ロケーション
多彩なショッピングやグルメ、生活利便まで、八王子の中心を思いのままに愉しむ。
人口57万人を超える都内唯一の中核都市として、優れた利便性と賑わい、水と緑の潤いが調和する街「八王子」。「寺町」はその中でもJR「八王子」駅に近く、ユーロードをはじめとする数々のショッピングゾーンや駅前の大規模商業施設や生活施設、彩りあふれるグルメシーンも身近。
八王子の中心エリアにふさわしい日常が待っています。

アクセス
JR「八王子」駅徒歩7分、「京王八王子」駅徒歩11分。
2駅4線利用で、通勤・通学にも軽快なアクセス。
JR「八王子」駅からJR中央線、横浜線、八高線の各線、また「京王八王子」駅から始発の京王線が利用可能。中央線では快速、特別快速、さらに中央本線や特急も利用でき、立川、吉祥寺、新宿、東京方面への快適なアクセスを実現。通勤や通学はもちろん、レジャーへのお出かけも便利です。

設備仕様
快適性を高めるきめ細やかな配慮で、豊かな暮らしの実現を目指しました。

ペット可マンション
家族の一員とも言える、愛しいペットと暮らせます。
※小型犬・猫あわせて3匹まで飼育可です。
(飼育規約あり)
電気式床暖房
床暖房は床から足元を直接刺激する「伝道熱」と、空気を通過して物体にあたり熱になる「ふく射熱(遠赤外線)」の2つの組み合わせにより、部屋全体を均一に温めます。
(リビングダイニング)


iEL ZEROを玄関ドアに採用
IDキーを取り出すことなく、リーダー内蔵のドアボタンを押すだけでドアを施解錠できます。


Raccessポップアップキー(ハンズフリーキー)
住戸玄関のキーをポケットやバッグに携帯し、風除室等のセンサー近くを通行することで認証を行い解錠します。



物件概要
名称 : LUXENA 八王子寺町
所在地(地番) : 東京都八王子市寺町46番、47-2(一部)、47-4
交通 : JR中央本線・中央本線快速・横浜線・八高線「八王子」駅北口徒歩7分、
京王線「京王八王子」駅出口2より徒歩11分
構造・規模 : 鉄筋コンクリート造地上15階建
総賃貸戸数 : 70戸、店舗1区画
間取り : 1LDK+サウナ、1SLDK~3LDK+WTC
専有面積 : 52.54㎡~67.45㎡
駐車場 : 20台(機械式18台、障害者用1台、店舗用1台)
駐輪場 : 70台
URL : https://luxena.jp/area/tokyo_hachiojiteramachi/
会社概要(タカラレーベン)
商号 : 株式会社タカラレーベン
代表者 : 代表取締役 秋澤 昭一
所在地 : 〒100-0005 東京都千代田区丸の内1-8-2
設立 : 1989年8月
事業内容 : 新築分譲マンションの企画・開発並びに販売、不動産流動化事業、賃貸事業、流通事業
資本金 : 400百万円
URL : https://www.leben.co.jp/
会社概要(HARVIA JAPAN)
商号 : 株式会社HARVIA JAPAN
代表者 : CEO 笠間 聖司
所在地 : 〒107-0052 東京都港区赤坂7-1-1 青山安田ビルB1F
設立 : 2023年8月
事業内容 : ハルビア サウナ&スパ製品の輸入及び販売事業
資本金 : 5000万円
URL : https://harvia.jp/

MIRAI for EARTH プロジェクト
MIRARTHホールディングスは、2022年の10月に持株会社体制への移行、商号変更を行いました。同時に「サステナブルな環境をデザインする力で、人と地球の未来を幸せにする。」というパーパスを策定し、未来環境デザイン企業を目指して事業に取り組んでおります。そして2024年10月、MIRARTHホールディングスとして2周年を迎え、パーパスの理解・浸透をさらに加速させていくため、「MIRAI for EARTH」プロジェクトを実施しております。
このプレスリリースには、メディア関係者向けの情報があります
メディアユーザー登録を行うと、企業担当者の連絡先や、イベント・記者会見の情報など様々な特記情報を閲覧できます。※内容はプレスリリースにより異なります。
すべての画像
