5LDKのエサキホーム、愛知県豊橋市にて24区画の販売をスタート
『家族それぞれが自分の時間を持てる場所』を叶える5LDK
- 2023年3月17日、『E's Avenue豊橋市飯村町』(全24区画)販売開始
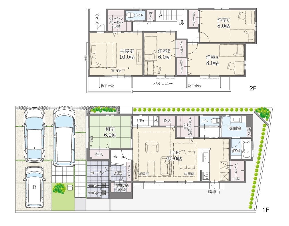
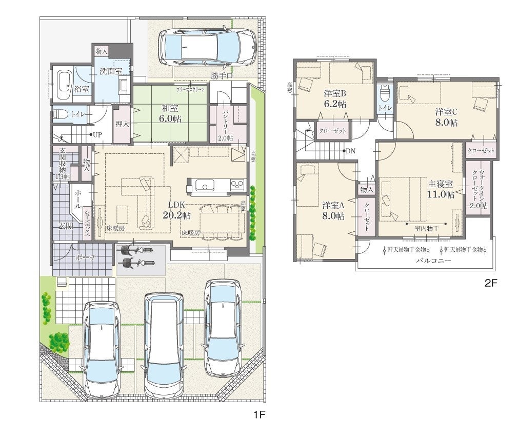
2023年3月17日、エサキホームは全24区画からなる『E's Avenue豊橋市飯村町』について、第1期5棟の販売を開始します。販売価格は4,150~4,695万円(税込)。第1期竣工は2023年5・6月を予定しています。
この第1期の竣工を皮切りに『E's Avenue豊橋市飯村町』(全24区画)は順次竣工を予定。敷地面積160~188平米、木造2階建て、住戸面積140平米。5LDKを基本の間取りとし、かつ収納も兼ね備えた『ゆとりある住宅』を豊橋市にて展開します。本物件は『こどもエコすまい』支援事業<対象物件>となる高い省エネ性能(ZEHレベル)も備えています。
『E’s Avenue豊橋市飯村町』分譲予定地
『E’s Avenue豊橋市飯村町』全体区画図
- 少子化時代の5LDKニーズ
少子化や世帯あたり人数の減少に伴い、東海エリアのほとんどの分譲住宅が4LDK以下で提供される中、エサキホームは創業以来5LDKの間取りを基本とした『ゆとりある住まい』を提供し続けています。少子化の中にあっても「2世帯・3世帯で暮らしたい」「子供の数が多い」というニーズは根強く、またコロナ禍を経て「在宅ワークに使える部屋がほしい」など『家族それぞれが自分の時間を持てる場所』へのニーズ定着も見られます。
在宅ワークイメージ(エサキホーム別物件写真)
LDKイメージ(エサキホーム別物件写真)
- 居住スペースへの思いを形にした『部屋数+収納』
玄関収納イメージ(エサキホーム別物件写真)
洗面室収納イメージ(エサキホーム別物件写真)
- 株式会社エサキホームについて
会社名:株式会社エサキホーム
代表取締役社長:江㟢豪治
本社所在地:愛知県一宮市東出町7番地1
設立:1973年4月11日
事業内容:分譲住宅の企画開発・設計施工・販売 / 住宅リフォーム / 土地建物売買仲介
公式HP:https://www.esakihome.co.jp/
このプレスリリースには、メディア関係者向けの情報があります
メディアユーザー登録を行うと、企業担当者の連絡先や、イベント・記者会見の情報など様々な特記情報を閲覧できます。※内容はプレスリリースにより異なります。
すべての画像
