【音楽を愛する方々のための住まいをリノベーションで実現!】防音音響設計の専門家とタッグを組んで、住空間と音響空間を一つの“住まい”としてデザインします
リノベーションプロジェクトで2023年グッドデザイン賞を受賞した「晃南土地株式会社」と、防音音響設計に特化した「株式会社アーキノート設計室」の業務連携により、“音を奏でる住空間”をデザインします。

「音」を暮らしの中に~マンションの一室を防音音響設計の「音楽室」にするという選択肢~
「私たちにしかできない街創りを」を理念に掲げる総合不動産会社「晃南⼟地株式会社(以下、晃南⼟地)」では、中古分譲マンションの⼀室を購⼊し、リノベーションを行うことで住まいと地域の価値を向上する、リノベーションプロジェクトを始動しています。
このたび、そのリノベーションのオプションの一つとしてご提案するのが「音楽室のある暮らし」です。
「防音」と聞くと、一般的には「窓が無くて暗い・天井が低く狭い・吸音板が張ってあるため響きが悪い」という無機質な箱のような部屋を思い浮かべる方が多いと思います。私たちは、そういった箱のような防音室ではなく、響きの美しい音響空間であり、明るく居心地のよい住空間の一部としての「音楽室」をご提案しています。
「音楽室」のある暮らし~このような方におすすめです
・プロの演奏家、音楽家の方
ご自宅や練習室として。小さな演奏会もできる雰囲気にデザインが可能です。
・ピアノやバイオリン講師の方
ご自宅やレッスン室として。マンションでもレッスンが可能になります。
・音大を目指している方
練習室として。ご自宅で練習ができる環境づくりが可能です。
・音楽が好きなご家庭
ご家族やご友人と合奏などを気軽に楽しみたいという方に「音楽室」のあるお住まいを提案しています。
防音・音響の専門知識と長年の経験を持つ「株式会社アーキノート設計室」による設計・デザイン
「音楽室」の設置において、その防音工事の設計・施工には専門的な技術が必要とされます。特に分譲マンションにおいては、クリアすべき注意事項がいくつかあります。そのポイント一つひとつを私たちが解決し、夢の実現のお手伝いをいたします。
1. 物件の選定
マンションによっては規約にて楽器のレッスンを行ってはいけないところもあります。音楽室の設置が可能かどうか管理規約での制限の確認が必要です。また、ピアノなど大きな楽器の場合は搬入経路などを考慮する必要があります。このような物件についての確認は、長年地域で実績を上げてきた「晃南土地」がしっかりと選定いたします。

2. 確かな技術による設計・施工
「アーキノート設計室」代表の紅谷信行氏は建設会社勤務の後、スタジオ防音音響設計を専門とする会社での17年間で、530件を超える防音音響工事を手掛けてきました。その経験を基に、単なる吸音板などの建材を張るだけの防音工事ではなく、構造的なアプローチから創り上げることで質の良い音響と防音環境づくりを叶えています。

3. 住空間を豊かにするインテリアデザイン
紅谷氏の業務パートナーである「CLACHIC Style」の建築士・インテリアコーディネーターの宮澤由佳氏が住空間のデザインを担当します。無機質な防音室ではなく、天然素材をふんだんに使いつつ防音のための工夫がされている設計で、音楽を楽しみながらも気持ちよく暮らせる空間をデザインいたします。

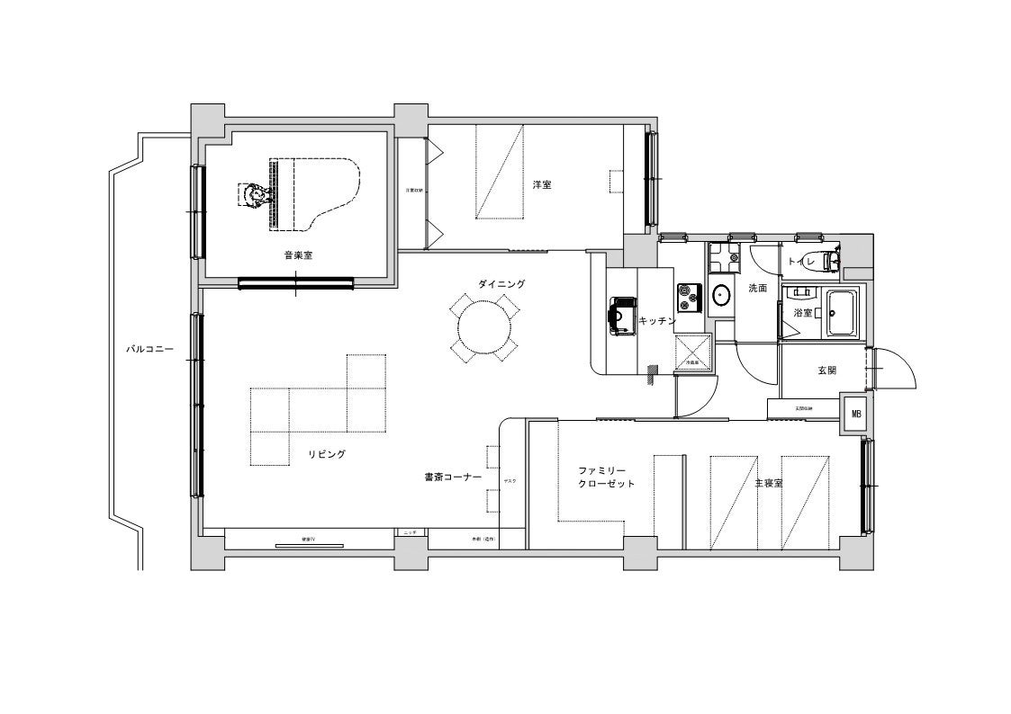
施工例:ピアニストのご自宅リノベーション


4LDKのマンションで間取りの変更を伴う全面リノベーション。リビングに隣接する部屋を防音室にリフォームしました。リビングとはガラスの二重サッシで仕切り、視覚的なつながりを確保しています。
ピアニストの奥様と旦那様の素敵なお二人暮らし。お持ちの家具がどれも大変趣きがあり、センスの良さを感じさせます。その雰囲気を大切にしながら防音の音楽室をデザインしました。
晃南土地のリノベーションプラン
基本的にはお客様のライフスタイルやご希望に合わせてリノベーションをしていきますが、インフラ整備や構造上の問題など建築設計的なアドバイスや、⼯事中の仮住まいの提供、建材を選ぶところから家具などの室内デザインについてもご提案が可能です。
【晃南⼟地のリノベーションプ ジェクトのメリット】
●晃南⼟地が販売からリノベーションの間もずっと並⾛してまいりますので、複数の会社とのやり取りが無く、安⼼してご⼊居の⽇を迎えられます。
●リノベーション費⽤を含めて住宅ローンを⼀括に組めます。
●好きなレイアウトやデザインで部屋を仕上げることができます。防音室・音楽室についてもご希望に沿ってご提案をいたします。
このようなリノベーションマンションの購⼊に興味を持たれた⽅、また、リノベーションプロ ジェクトのノウハウを知りたいデベロッパーや不動産会社様も、ぜひ下のボタンよりお気軽にお問い合わせください。
晃南土地の想い・・・持続可能な地域活性化を推進していくことが不動産会社の社会的意義

今まで親が住んでいたが使わなくなった家を、⾃分たちがリノベーションして住みたい、
今住んでいる部屋をきれいにしたい、などのお問い合わせをいただいて、実際に契約が増えてきました。団地再⽣のリノベーションプロジェクト『ART-VILLAGE|アートヴィレッジ』でグッドデザイン賞を取ったというだけではなく、地道ではありますが継続して結果が出ています。古い分譲マンションの⼀室からスタートした地域課題解決への取り組みですが、家を貸すとか売るとかだけではなく、⼈と⼈を繋げて、外の⼈に街を紹介していく結果、その街⾃体が良くなり、⾃分たちのビジネスも繁栄していく。さらに、この『音楽室』のように、アートを身近なものとして家に取り入れることで、豊かに暮らしていただけることで家やまちに新たな価値を⽣み出し、持続可能な地域活性化を推進していくことが不動産会社の社会的意義ではないかと思います」(晃南⼟地株式会社代表取締役 中澤 洋⼀)
晃南⼟地は今後も、地域の課題解決に向けた取り組みを続け、住まいとアート、そして⼈々がつながる新しい暮らしの形を提案していきます。
《企業情報》
会社情報:晃南⼟地株式会社 代表取締役 中澤 洋⼀
所在地:〒270-1151 千葉県我孫⼦市本町2-3-24 TEL04-7182-6662
FAX:04-7182-1962
メール:pr@kounantoti.co.jp設⽴平成3年9⽉4⽇
資本⾦:3,000万円
営業時間:10︓00〜18︓00(⽔曜⽇/第3⽕曜⽇定休)
事業内容:
売買仲介・不動産買取り・賃貸仲介・賃貸管理・宅地開発・⼟地分譲・駐⾞場管理・リノベーション・各種リフォーム⼯事
許認可:
宅地建物取引業免許:国土交通大臣(1)第10991号
賃貸住宅管理業者登録:国⼟交通⼤⾂(1)第002958号
建設業許可:千葉県知事(般-4)第55596号
(古物商許可)
加盟団体:
(社)全国宅地建物取引業保証協会会員
(社)千葉県宅地建物取引業協会会員
中央学院⼤学指定不動産店
協力会社:
株式会社アーキノート設計室 https://archinote.net/
CLACHIC Style https://www.clachicstyle.com/
このプレスリリースには、メディア関係者向けの情報があります
メディアユーザー登録を行うと、企業担当者の連絡先や、イベント・記者会見の情報など様々な特記情報を閲覧できます。※内容はプレスリリースにより異なります。
すべての画像
