【実施レポート】3D-CAD × AIを活用した大学授業 学生アンケートから見えた“実務直結”の教育効果を公開
~九州産業大学での特別講義が終了し、学生による「自由な発想の住宅プラン」一般投票コンテストを開催中~
安心計画株式会社(本社:福岡市/代表取締役社長:高田政和)は、前回リリース(2025年12月3日発表)にてお知らせした、九州産業大学 建築都市工学部 住居・インテリア学科における「3D-CADと生成AIを導入した特別講義」の実施結果を公開します。
本プログラムは、産学連携による次世代の建築人材育成を目的とした試みです。講義を終えた学生へのアンケート結果に基づき、最新のデジタルツールが設計スキルの習得や実務意識の醸成にどのような効果をもたらしたのか、その検証結果を報告します。
■授業の概要
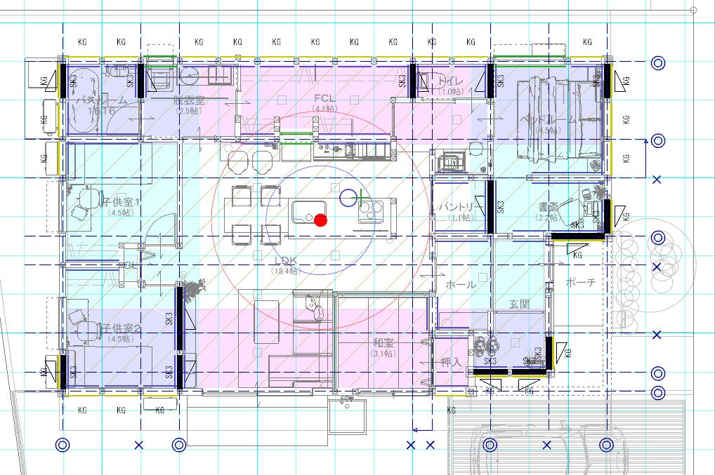
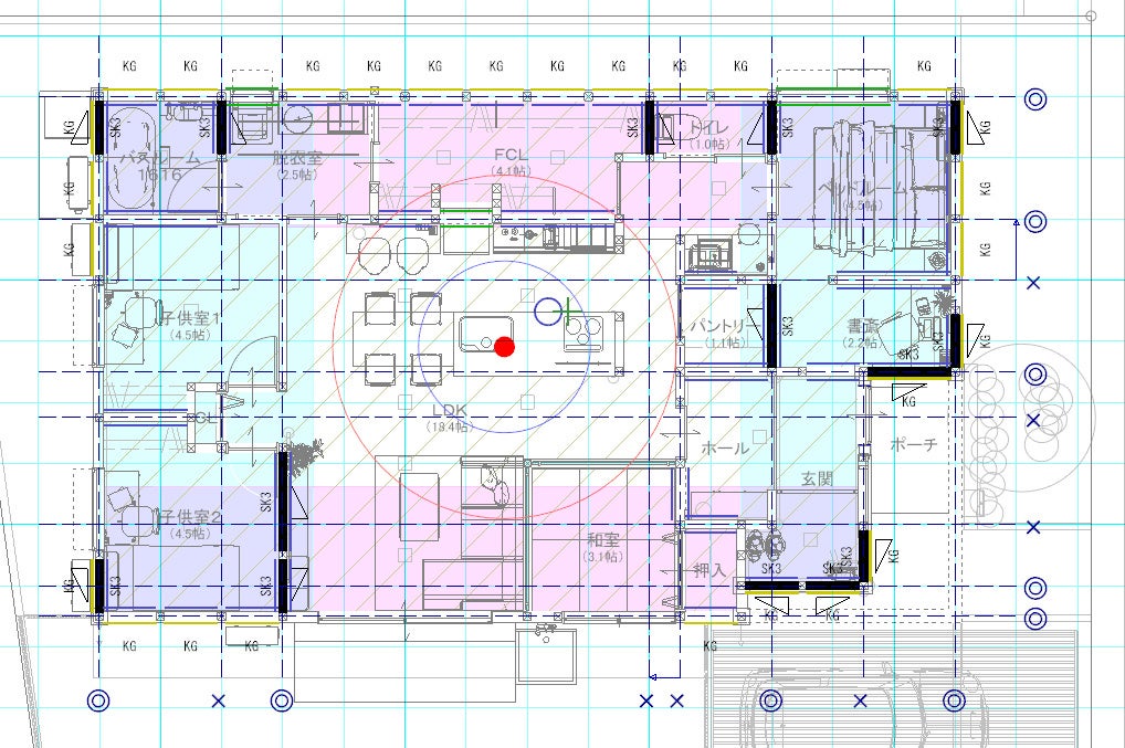
本授業は、安心計画株式会社と株式会社 Lib Work、九州産業大学 香川治美研究室との共創によって開発された教材を用い、住宅設計の実務で使用されている 3D-住宅CAD「Walk in home」と 建築生成AI「タノモシカ」を大学教育に導入した実践型プログラムです。学生は3人1組のチームとなり、プランニングから3D化、AIによる表現補助、最終プレゼンテーションまでを一貫して体験しました。
• 実施期間:2025年12月4日(木)~12月25日(木)
• 授業形式:3人1組(14チーム)のグループワーク
• 内容:CAD操作習得/住宅設計/耐震・省エネ性能の検討/AI活用/発表

■学生アンケートから見えた5つの教育効果
最新ツールの導入により、従来の設計教育を補完する多角的な学びが得られました。
1.「短期間で形にする成功体験」が設計への自信に
直感的な操作が可能な3D-CADとAIを組み合わせることで、設計経験の有無差に関わらず、短期間でアイデアを形にすることができました。その結果、限られた時間内で発表までやり遂げることができ、「自分にもできる」という自信と、設計に対する意欲の向上に繋がりました。
2.3D可視化による「空間把握能力」の向上
3Dモデリングにより、天井高や動線、家具配置を体感的に理解しながら設計を進行。「図面上の数字ではなく、実際の暮らしを想像しながら考える力が養われた」といった、平面図中心の学習では得られにくい成果が見られました。

3.構造・性能を意識した「実務的視点」の芽生え
意匠デザインだけでなく、耐震性や断熱性能を数値で確認しながら設計を進めた結果、多くの学生に「安全性とデザインを両立させる」という実務的な視点が芽生え、根拠ある設計の重要性を学ぶ機会となりました。


4.生成AI活用による「発想力・表現力の拡張」と気づき
AIを単なる自動化ツールではなく、アイデア発想の補助や表現を洗練させる道具として活用し、その過程で、多くの学生が「設計意図を言語化する力の重要性」に気づくという教育的効果が見られました。
【学生コメント抜粋】
・「AIは何をどう見せたいかを明確に指示することで力を発揮するツールだと分かった」
・「AIを使うことで、自分の設計意図を言語化する重要性に気づいた」
・「AIは考えを整理し、表現を洗練させるための道具だと理解できた」


5.チーム設計を通じた「協働スキル」の育成
3人1組のグループワークにより、役割分担、意見の共有、合意形成、時間管理など、実務で求められる協働スキルを体験的に学ぶ機会を提供することができました。「設計は個人作業ではなく、対話と共有によって完成度が高まるものだと理解できた」という声も多く、本授業の重要な成果の一つとして挙げられる結果となりました。
【学生コメント抜粋】
「今回の授業では、チームで一つの作品を制作し、発表まで行うプロセスを通して、計画設計における協働の重要性を実感しました。個人で行う設計とは異なり、コンセプトを共有し、役割分担をしながら進めることで、設計意図を言語化し、他者に分かりやすく伝える力が求められることを学びました」


■大学と実務をつなぐ教育モデルとしての意義
今回の試みは、学生が将来の進路をより具体的に描く「キャリア教育」としても高い効果を発揮しました。実際に企業が現場で使用しているツールやワークフローを体験することにより、学生にとって自身の適性や今後の課題を客観的に捉え直す機会となっています。
こうした「実務直結の体験」は、大学教育と社会とのギャップを縮める新たな教育モデルとして、極めて高い教育効果を示しています。
【学生コメント抜粋】
「企業の方々と意見交換をしながら課題に取り組めたことは非常に有意義でした。実際に企業の現場で使用されているCADやAIを体験することで、設計の進め方や、設計後にどのように顧客へ提案・表現しているのかを具体的に理解することができ、大変勉強になりました」
■今後の展望
安心計画株式会社は、今後もテクノロジーを活用した実践的な学習機会を継続的に提供することで、次世代の建築業界を牽引する人材の育成を支援してまいります。
■【お知らせ】住宅プラン一般投票コンテスト開催中
本授業の集大成として、学生が3D-CADとAIを駆使して作成した住宅プランの一般投票コンテストを開催しております。
投票ページURL: https://www.anshin.co.jp/information/761
投票期間: 2025年12月26日(金) 〜 2026年1月31日(土)
課題内容: 仮想の施主を想定し、自由な発想と最新技術で作成した住宅プラン
皆様からの温かい一票をお待ちしております。なお、投票結果については、後日改めてお知らせいたします。
※Walk in homeは株式会社DTSの商標または登録商標です。
■安⼼計画株式会社の概要
安⼼計画株式会社は、1988年設立の、建築業界に特化したプレゼンシステムの専門企業です。2023年6月、事業基盤の強化とサービス拡充を目的に、総合情報サービス企業である株式会社DTSのグループに参画しました。DTSグループの最先端IT技術・開発リソースと、当社が長年培ってきた営業力・サポート力を掛け合わせることで生まれるシナジーを最大限に活かし、全国のビルダーの皆様へ革新的なソリューションを提供してまいります。
■会社情報
会社名:安⼼計画株式会社
所在地:福岡市博多区博多駅前3-22-8
設⽴:1988年3⽉
代表者:代表取締役社⻑ ⾼⽥ 政和
事業内容:住空間提案システムの活⽤⽀援
会社名:株式会社Lib Work
代表者:代表取締役社長 瀬口 力
本店所在地:熊本県山鹿市鍋田178-1
設 立:1997年8月1日
資本金:13億2150万円
事業内容:戸建住宅事業・プラットフォーム事業・3Dプリンター住宅事業
■株式会社DTSの概要
DTSは、総合力を備えたトータルシステムインテグレーター(Total SIer)です。主に金融、情報通信、製造、公共、建築分野向けに、コンサルティングからシステム設計・開発、基盤構築・運用までをワンストップで提供します。
また、DTSグループは、システムに関わるさまざまな専門性を活かした付加価値の高いサービスを提供します。
本社所在地:〒104-0032 東京都中央区八丁堀 2-23-1 エンパイヤビル
このプレスリリースには、メディア関係者向けの情報があります
メディアユーザー登録を行うと、企業担当者の連絡先や、イベント・記者会見の情報など様々な特記情報を閲覧できます。※内容はプレスリリースにより異なります。
すべての画像
