最大100万円補助?!補助金を活用したリノベーション事例をご紹介します
国土交通省の管轄している制度「子育て支援型共同住宅推進事業」をうまく活用、グッドルームで活用するメリットとは?
グッドルーム株式会社(本社:東京都渋谷区、代表取締役社長:小倉 弘之、以下「グッドルーム」)が提供するリノベーション賃貸住宅ブランド「TOMOS」において、国土交通省管轄の「子育て支援型共同住宅推進事業」を活用したリノベーションを北九州で実施いたしました。

- 子育て支援型共同住宅推進事業とは?
出典元:国土交通省HP
https://www.realestate.vmi.co.jp/house/
- 子育て支援型共同住宅推進事業を活用したグッドルームリノベーション事例
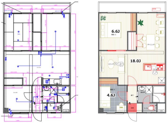
■総階数: 地上6階
■構造 : 鉄筋コンクリート造
■間取り: 3LDK(2部屋施工)→2LDK
■平米数: 63.36㎡
■所在地: 福岡県北九州市
■入居開始予定日: 7月上旬
■施工費: 子育て支援型共同住宅推進事業により、100万円補助を活用しました
■メリット: 補助金を活用する際には国土交通省へ資料の提出が求められますが、面倒な書類業務はグッドルームで代行いたします。(一部オーナー様の身分証のご提出などはお願いいたします。)

- ご相談方法
https://www.haptic.co.jp/contact/
最短1週間でお見積りを無料で作成します。
子育て支援型共同住宅推進事業を活用したい方もこちらよりお問い合わせください。
物件それぞれが持つ課題に合わせたご提案をさせていただきますので、お気軽にご連絡ください。

すべての画像
