SOU・SOU のテキスタイルが存分に楽しめる「現代の和の家」誕生。NIHON NOIE PROJECT by SOU・SOU の家、受注販売のお知らせ

京都のテキスタイルブランド「SOU・SOU」(代表取締役:若林剛之)は、住宅エンターテインメントメディア「Dlive(ドライブ)」(運営会社:株式会社ベツダイ東京支社)のNIHON NOIE PROJECT に参画。谷尻誠(建築設計事務所 SUPPOSE DESIGN OFFICE 代表)、土井地博(BEAMS コミュニケーションディレクター )らとともに、古き良きものをあらためて見直し、現代に寄り添った柔軟な視点で、これまでにない “和の暮らし”を提案する「現代の和の家」NIHON NOIE PROJECT by SOU・SOU の受注販売をスタートしました。壁紙やソファの張り地、のれんなどにSOU・SOU のオリジナルテキスタイルをふんだんに採用し、「昔からあるものと現代のものをミックスし、SOU・SOU らしく」100 年経てばこれが伝統になることを目指した、新しい和のカルチャーを目指した家づくりが実現しました。
- プロジェクトメンバーについて

林哲平氏(BETSUDAI Inc. TOKYO CEO 兼 Dolive ディレクター )
谷尻誠氏(建築設計事務所SUPPOSE DESIGN OFFICE 代表)
若林剛之(若林株式会社 SOU・SOU プロデューサー)
土井地博氏(BEAMS コミュニケーショ ンディレクター)
【Dolive(ドライブ)】
「Dolive」は、家づくりをもっとカジュアルにシミュレーションして楽しむために生まれた、住宅エンターテインメントメディア。毎日を楽しんで暮らすためにユーザー視点の情報を発信しています。 また、新しいアイデアから発想した規格住宅商品を「Dolive HOUSE」として提案しています。
https://dolive.media/
【株式会社社外取締役】
日本を代表する建築家、企業家でもある谷尻誠氏とBEAMSのコミュニケーションディレクター土井地博氏、そしてDolive を運営するBETSUDAI Inc. TOKYO の CEO・林哲平の3人が主宰するクリエイティブプロダクション。企業のブランディングをはじめ、プロジェクトに応じてチームを編成し、新しい価値を提案している。
https://shagaitori-pro.com/
- “和” の魅力を自由に解釈した新しい“和” の家。

なつかしい日本の家。
" 和" の空間は、
気持ちを素直にしてくれる。
新しさにワクワク。
でもどこかなつかしい。
そんな和のデザインで、
自分たちらしい暮らしを
コーディネートしてみませんか。
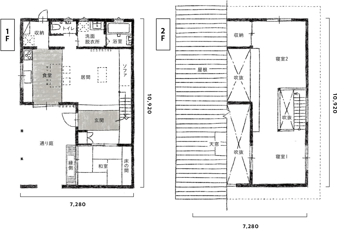
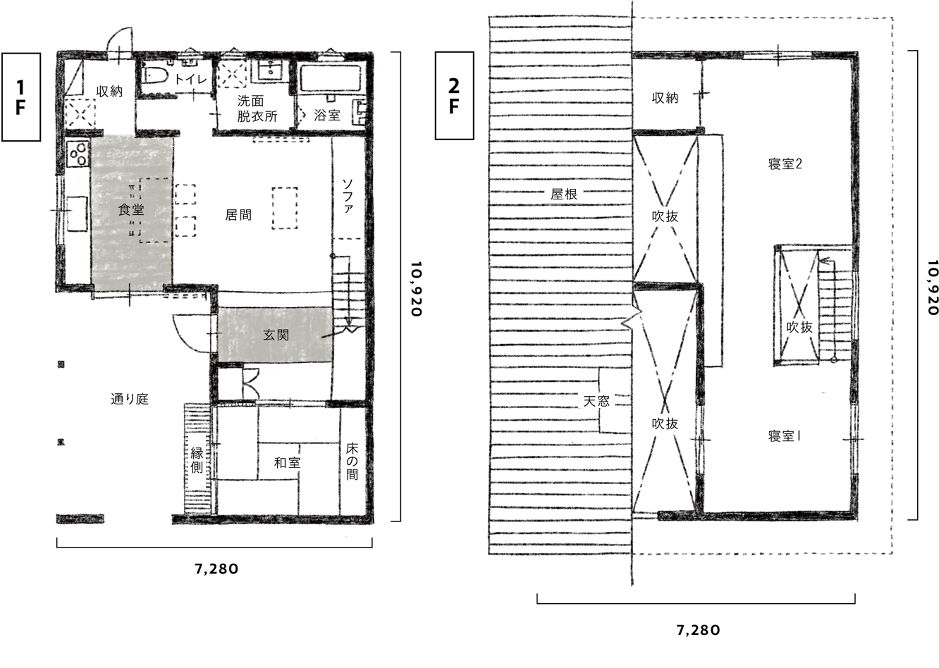
- “和” の魅力を活かした間取り。

延床面積 100.19 ㎡(30.30 坪)
1F 床面積 59.62 ㎡(18.03 坪)
2F 床面積 40.57 ㎡(12.27 坪)※
※表記されている床面積は建築基準法上の床面積とは異なります。建築基準法上の床面積は別途取扱店へご確認ください。


縁側と和室に面した、玄関へとつながるアプローチ。大きな梁を見せる天井は軒先を低く抑え、品の良い空間を作り出します。縁側と和室の障子は、庭と部屋をつなぎ美しい外観のひとつとなり、住む人と来客をゆったりとお迎えします。


通り庭から食堂、キッチンは床が高くなることなくつながっている“通り土間”。食堂から居間への段差は、そのま
まダイニングチェアに。居間のソファは階段とつながり、吹き抜けの天井で開放的な空間に。素材や色味にこだわった床や壁に風情と落ち着きを感じます。


玄関から正面に見える壁面には「SOU•SOU」の壁紙。床の間には掛け軸の代わりに「SOU•SOU」のテキスタイルを用いたファブリックパネルをご用意。四季に合わせて四種の柄を楽しめます。アプローチに面した窓には雪見障子を立て、軒先の景色とやわらかな光を取り込みます。

床の表面には道具の痕跡を残す名栗(なぐり)加工を施した床材を使用。下からの照明と合わせ、新しさと“和” が融合した上質な住まいを印象づけます。

仕切りがなく、自由度の高いフロア。住む人の生活に合わせて拡張性のある空間に。寝室の小窓は、あえて光を採りすぎない設計です。

和の家らしい引き戸のトイレ。さっぱりとしたカラーリングの室内に窓からの光が差し、落ち着く空間です。
- 「現代の和の家」とお揃いで、SOU・SOU の和のエコバッグも同時販売


■高解像度画像リンク
https://drive.google.com/drive/u/1/folders/1SljdSE1fqNB5RFDTdqFp2EMwEHHyFXCx
■「NIHON NOIE PROJECT by SOU・SOU」プロジェクトページURL
https://nihon-noie.dolive.media/
■小巾折商品ページURL
https://www.sousou.co.jp/?mode=cate&cbid=666947&csid=2

このプレスリリースには、メディア関係者向けの情報があります
メディアユーザーログイン既に登録済みの方はこちら
メディアユーザー登録を行うと、企業担当者の連絡先や、イベント・記者会見の情報など様々な特記情報を閲覧できます。※内容はプレスリリースにより異なります。
すべての画像
