UMITOシリーズ初となるオーベルジュ『UMITO KAMAKURA KOSHIGOE』を2024年11月26日(火)にオープン!
海最前列という究極の贅沢「UMITO」1日2組限定のシェアリゾートが鎌倉腰越に誕生。

全国の海の目の前一等地にスモールラグジュアリーホテル「UMITO」をプロデュースする株式会社UMITO(東京都千代田区、代表取締役:堀鉄平)は、都心からわずか60分のリゾート地、古都の風情と絶景が調和する鎌倉に『UMITO 鎌倉腰越』を2024年11月26日(火)にオープンいたします。
本施設は、フレンチレストラン『Le RESTAURANT』を備えた「 UMITO」シリーズ初の本格オーベルジュです。料理長には8年間「レストランひらまつ 広尾」で料理長を務めた小川大樹シェフを迎えました。小川シェフ自ら鎌倉魚市場や地元の無農薬農家を訪れ厳選した食材を使用、素材本来の味を最大限に引き出した料理と、鎌倉の魅力を感じられる豊かな食体験をお届けします。
『UMITO 鎌倉腰越』は、都心のラグジュアリーホテルとは異なる、リゾート地らしいリラックスした空間と、 グランメゾン出身のシェフによるもてなしが織りなすオーベルジュです。都会の喧騒を離れ、波音をBGMにリラックスした“チルアウトタイム”を過ごすことも、徒歩 30秒で腰越海岸に出て海を満喫することもできます。珠玉の美食体験とリラックスした宿泊体験をこの鎌倉の地でぜひご堪能ください。
Rooms / 絶景ロケーション、海景が広がる特等席!独り占めはわずか2室
室内のインテリアには自然素材をふんだんに使い、“チルアウト”をコンセプトに西海岸のリラックスしたムードを演出。ノスタルジックな港町、腰越の雰囲気にマッチする落ち着いた空間が、まるで自宅で過ごすような安らぎのステイを叶えてくれます。

Restaurant / 鎌倉の海辺で、至高の料理にひたる旅
「レストランひらまつ広尾」で料理長を務めた小川大樹シェフが創り出すフレンチは、食材にとことん向き合いその真髄を追求し、繊細さと力強さが共存する一皿一皿がまるで芸術品のように美しいと称賛されています。鎌倉という地で、旅の思い出に刻まれるような五感を刺激する至福のひとときをお楽しみいただけます。

絶景の中で非日常を味わう特別な場所

「UMITO」は、“絶景の中で非日常を味わう特別な場所 ”をコンセプトに、海と共に過ごす贅沢な別邸です。煌めく海と江の島が目の前に広がる開放的なリゾートで、日常を忘れ、心と身体が解放されるひとときをお楽しみください。『 UMITO 鎌倉腰越』でしか味わえない極上の滞在体験をご提供します。
また、「UMITO」はホテルタイプ・ヴィラタイプと多様なスモールラグジュアリーな別邸を開発していますが、『 UMITO 鎌倉腰越』は、初のオーベルジュとして誕生します。江ノ島電鉄「腰越」駅から徒歩 6分、小田急江ノ島線「片瀬江ノ島」駅から徒歩 7分と、都心からアクセスの良いのも魅力です。目の前には腰越海岸が広がり、オーシャンビューを遮るものは何もありません。昼間には壮大な海と青空を、夕刻には夕焼けに染まる江の島を一望できる絶好のロケーションです。
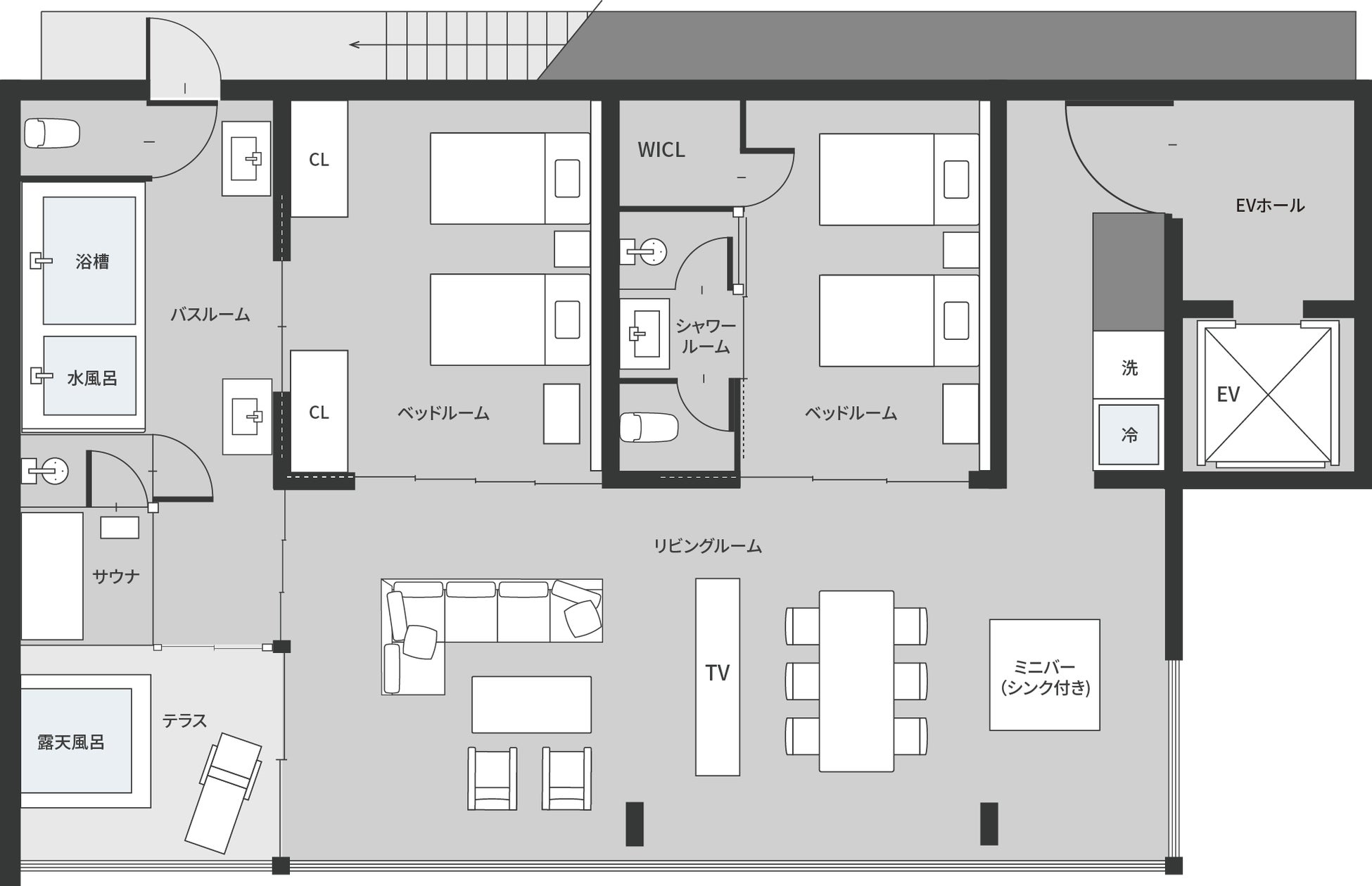
1日2組限定で、各フロア1室のみの特別な客室は、 130㎡超の2ベッドルームスイートで、ゆったりと余裕のある “間”を大切にしています。鎌倉の海を一面に望む贅沢で開放感あふれるリビングルームと露天風呂、サウナが備えられており、都会にある緊張感から解放される場所でありつつまるで自宅で過ごしているかのようなリラックスしたステイスタイルを叶えます。静かに暮れゆく夕日や波の音、満天の星空と共に、極上の安らぎの時間をお過ごしいただけます。
『UMITO 鎌倉腰越』の最大の魅力の一つは、美食の贅沢を堪能できることにもあります。
1階にはフレンチレストラン『 Le RESTAURANT』を併設しています。老舗グランメゾン「レストランひらまつ 広尾」で8年間料理長を務めた小川大樹シェフが、こだわりのフレンチ料理をお届けします。
客室 / 1日2組だけの贅沢で海を満喫する
UMITO鎌倉腰越は1階がレストラン、2・3階はワンフロア1部屋のみのスモールラグジュアリーホテルです。 1日2組だけが過ごせる贅沢空間。客室は、海側が全面ガラス張りになっており、どの場所からも鎌倉の海を一望できる開放的な空間です。ゆるやかな仕切りがあることで、滞在スタイルにとらわれることなく、自由で伸びやかな海辺の時間をお楽しみいただけます。木の温もりを感じるラグジュアリーなデザインと、窓いっぱいに広がる鎌倉の水平線が調和し、まるで一枚の絵画に包まれているかのような感覚を味わえます。
「波音に包まれるスモールラグジュアリー」
客室にはオーシャンビューのサウナ、露天風呂付きテラス、水風呂、そして海辺のテラスへとスムーズに移動できる動線が確保されています。贅沢なプライベートスペースで、リラックスと癒しのリトリート空間をお楽しみください。
心地よい波音に包まれ、穏やかな眠りについた後、朝は大海原に反射する光と共に目覚める特別な癒しの時間をお届けします。

客室 / 非日常なのに自宅のように寛げる空間



客室詳細
広さ 屋内面積:121.48㎡+テラス8.8㎡
定員 6名 (エキストラベッド利用時)
ベッド セミダブルベッド 4台 エキストラベッド2台
設備
サウナ/水風呂/露天風呂付きテラス/シャワールーム/シモンズベッド/クローゼット/ダイニングテーブル/ダイニングチェア/ローテーブル/ソファ/テラスチェア/オットマン/サイドテーブル/50インチテレビ/冷凍冷蔵庫/電気ポット/電子レンジ/洗濯乾燥機/空気清浄機/ワイヤレススピーカー
施設概要
名称:UMITO鎌倉腰越
開業日:2024年11月26日(火)
所在地:〒248-0033 神奈川県鎌倉市腰越三丁目 12番16号
駐車場:5台
階数:3階建て(1階:Le RESTAURANT)
TEL ホテル代表:0467-55-8084
TEL 宿泊専用フリーダイヤル:0120-511-098(受付時間 9:00-18:00 土日祝休み)
客室数:2室
公式サイト:https://hotel.umito.jp/kamakura-koshigoe/
Instagram:https://www.instagram.com/umito_koshigoe/
UMITO販売サイト:https://umito.jp/

建築家の寶田陵が基本構想から設計まで参画

寶田陵
デザイナー/建築家
1971年 東京都生まれ。日本大学理工学部海洋建築工学科卒業。設計事務所や大手ゼネコン設計部を経て、 2016年に「the range design INC.」を設立。
ホテル、旅館、共同住宅、商業施設、オフィス等、幅広い分野で建築設計及びインテリアデザインを手掛ける。
近年ではプロデュースなど活動の幅を広げている。
UMITO鎌倉腰越のコンセプトは “湘南のチルアウトな空間”

コンセプトは“湘南のチルアウトな空間”“時間と美食のオーベルジュ”
UMITO鎌倉腰越に込めた[肩肘張らないラグジュアリー](寶田氏のインタビューから引用)
希少な鎌倉の海沿いに、 UMITOのフラッグシップとなるUMITO鎌倉腰越が完成。同エリアでは由比ガ浜、材木座、秋谷、稲村ケ崎と次々にUMITOがオープンしていく中で、江の島を臨める鎌倉腰越の地にわずか 2室のスモールラグジュアリーホテルが誕生。 1階メインダイニングには「レストランひらまつ広尾」元料理長の小川シェフが腕を振るう『Le RESTAURANT』で美食を楽しむオーベルジュです。
全体的に、高級感は持ちつつほんの少しだけ敷居を下げた[肩肘張らない、チルアウトなラグジュアリー]な空間を意識しました。 ロサンゼルスの西海岸と湘南をかけ合わせたようなイメージです。
UMITO鎌倉腰越はホテルではなくオーベルジュ(※)なので、わかりやすいラグジュアリー感より、湘南のリゾート感を作りたかった。都心からパッと来てレストランで食事をしたらそのまま泊まることができてゆっくり過ごせる、そのくらいの堅苦しさのない場所があったら嬉しいですよね。
なぜなら、「UMITO」にいらっしゃるお客様は経験も豊富ですから、大理石などのわかりやすいラグジュアリー感は見慣れていますから、その日常の景色がここにあると非日常の時間を過ごせないのではないかと思いました。だからこそ、従来のラグジュアリーホテルとは全く違うものにしたく、都会にある緊張感から解放される場所を目指しました。
湘南のチルアウトな空間を表現しつつ、「UMITO」らしいスモールラグジュアリーさを表現するのに、ミッドセンチュリー(※)テイストをインテリア、内装に取り入れたいと思いました。
ミッドセンチュリーは本物志向の中にも有機的な親しみやすさがあります。今回はチルアウト・ハイドアウト (隠れ家)にこだわった結果、有機的な素材や本物の自然素材に辿り着いたように思います。ミッドセンチュリーのような思想は、王道のラグジュアリー感に飽きた方や、比較的若い世代に人気が広がっていますし、 UMITO鎌倉腰越が目指すオーベルジュの姿を表していると思います。
老若男女問わず幅広い世代が都会の喧騒から離れてハイドアウトな空間で肩の力を抜いてリラックスするチルアウトな時間を過ごしていただきたいです。
※オーベルジュ...フランスでは郊外に点在する「レストランで食事を愉しみながら宿泊できる建物」の呼称。五つ星クラスのメゾンやレストランが経営しているケースが多い。
※ミッドセンチュリー...20世紀の中ごろ、特に1940年代から1960年代にかけて発展したデザイン。シンプルで機能的でありながら、曲線や有機的な形を取り入れて温かみを感じさせるのが特徴。
Le RESTAURANT / プライベート感溢れるフレンチレストラン

広尾の名店「レストランひらまつ広尾」で8年間にわたり料理長を務めた小川大樹シェフが創り出すフレンチは食材にとことん向き合い、 フレンチの真髄を追求しつづけ繊細さと力強さが共存する一皿一皿がまるで芸術品のように美しいと称賛されています。
鎌倉の海とフランスの感性が調和するオーベルジュ「 UMITO鎌倉腰越」では旅の思い出に刻まれるような、五感を刺激する至福のひとときをお楽しみいただけます。『 Le RESTAURANT』は20名様までのプライベート感あふれる空間で、オーナー様やご来店されるお客様一人ひとりのお顔が見える距離感を大切にしています。お客様の好みを理解したうえでのきめ細やかなサービスを提供できる規模であり、まさに UMITOが理想とする“スモールラグジュアリー “を体現したレストランです。
「食材や産地の開拓を重ね、日本料理の手法を取り入れながら、素材そのものの味を最大限に引き出すための試行錯誤を続けてきました。 5年以上にわたる研究の末、日本人としての感性を活かした素材の味を極限まで引き出すフランス料理を表現できるようになりました」と語る小川シェフ。
フランスと日本での経験を通じて研ぎ澄まされた感性とセンスをもとに、四季折々の素材を活かした繊細で芸術的な料理をご堪能いただけます。ここ『Le RESTAURANT』では、美しい海の風景が広がる中で、こだわりのテーブルウェアやインテリアに彩られた上質な空間と最高のおもてなしで、お客様の特別なひとときを演出します。ぜひ特別な日に、心に残るひとときをお過ごしください。
洗練されたフレンチを紡ぐ小川大樹シェフ

1981年大阪府生まれ。17歳の頃に一流のシェフになると決意し、フランスの三ツ星レストランで研鑽を積む。「レストランひらまつパリ」の副料理長を経て、「レストランひらまつ広尾」では 8年間にわたり料理長を務め、フランス料理の第一線で20年の経験を持つ。
「パリや東京広尾での経験を経て、鎌倉の海を望むこの地で、のびのびと料理に打ち込むために移り住みました。毎日を新鮮な気持ちで過ごしながら、腰越のアースカラーをテーマに、海や砂浜、夕日をイメージした食器や空間を整えています。一人ひとりのお客様のお顔や好みに応じ、鎌倉の山海の恵みを活かした最高の料理とおもてなしで、特別なひとときを提供いたします。ぜひ一度お越しください。」(小川シェフ)
心地よさと美を追求したインテリアデザイン
「Le RESTAURANT」では、料理だけでなく、空間全体を特別な体験にするため、細部に至るまでこ
だわり抜いたデザインを提供しています。カトラリーや調度品、インテリア、照明に至るまで、目の前
の海とのつながりを感じられるよう、波や海をテーマにしたアイテムで統一しています。ここでの食事
が旅の目的そのものとなるよう、心を込めてお迎えいたします。

【レストラン営業時間】
ご朝食 :8:00–10:00(L.O. 9:00)※宿泊者のみ
ディナー:18:00-22:00(L.O.19:30)
不定休 ※営業時間については変更する場合がございます。予めご了承ください。
※宿泊者のみならず、ビジターも利用できます。
レストラン予約はこちらのサイトから
https://www.tablecheck.com/ja/shops/lerestaurant/reserve
Dinner / 鎌倉にこだわった食材を活かした料理と心地良いサービスを最高のしつらえで味わう
至高のフレンチを追い求めて20余年、UMITOで理想を実現していきます
(小川氏のインタビューから引用)

「鎌倉は海と山に恵まれた素晴らしい立地だと感じています。単に地元の食材を使う地産地消にとどまらず、地域に深く根ざした地産地消を目指しています。例えば、鎌倉の伝統野菜の生産者を訪れて食材を仕入れたり、朝市で新たな食材を探したり、地域のシェフと密に情報交換を繰り返すことで、地域と一体化したレストランを目指しています。」
「お客様一人ひとりが心からご満足いただける料理こそがスペシャリテである」という小川シェフの哲学に基づき、料理は創り上げられています。地元の新鮮な魚介類やワタリガニ、鎌倉産の野菜を使用し、南仏のパスティスリカールで香りづ
けを施し、ロゼワインを合わせることで、鎌倉腰越と南仏が調和した絶妙なマリアージュをお楽しみいただけます。」
旬の食材を活かしたシェフ小川大樹によるディナーコースと、ソムリエが厳選したフランスと日本のワインをご用意いたします。鎌倉の海とフランスの感性が調和するオーベルジュで、贅沢なひとときを。

【ディナー コース】
・アミューズ・ブーシュ
・アペタイザー
・スープ
・魚料理
・肉料理
・プレ・デセール
・デザート
・ミニャルディーズ/アンフュージョン
¥24,200
(消費税10%・サービス料が含まれます)
Wine / 心躍る料理とワインのマリアージュ

料理の魅力を最大限に引き出すため、シェフとソムリエが一体となってワインの選定を行っています。料理とワインが互いに引き立て合うことで、深い味わいの美食の旅へと誘います。繊細な味わいに寄り添うお酒をご堪能ください。
ワイン愛好家の間で注目を集めている、
山梨を代表するワイナリー「ボー・ペイサージュ」(BeauPaysage)をはじめ希少な日本ワインも用意しております。
ペアリング: ¥12,000〜
Breakfast / ご宿泊者だけが味わえる特別な朝食

ご宿泊者様だけの特別なひととき
ご宿泊いただいたお客様限定で、 Le RESTAURANTが一日の始まりにふさわしい一皿一皿を心を込めてご用意いたします。地元の農家から直接仕入れる季節の野菜や果物、新鮮な魚介類を中心に、鎌倉の美しい海の景色を眺めながら、リラックスした朝のひとときを ゆっくりとお過ごしください。
※朝食は宿泊者限定
「UMITO」とは
海と共に過ごす別邸「UMITO」
ホテルや別荘のオーナーのように暮らせるシェア購入型「UMITO」シリーズを2021年に販売開始。
UMITO 沖縄 恩納村、UMITO 鎌倉 腰越、UMITO 鎌倉 材木座、UMITO 熱海 別邸、UMITO 熱海 和田浜といった、海を最前列で感じられるホテルにもなる別荘を続々と販売しています。
日本全国に、海を感じるラグジュアリーホテルを持とう
海の目の前の一等地にスモールラグジュアリーホテルをつくっています。
使いたい分だけ購入でき、泊まれる場所がどんどん増えていくUMITO 波の音を聞きながら、海と共に過ごす贅沢。
使いたい分だけ購入可能な新しい仕組みで、海と自由なライフスタイルをお過ごしいただけます。
別荘として使いたい分だけ購入可能
従来の別荘は使っていない期間が多く、管理やメンテナンスも大変でした。
UMITOでは別荘として使いたい分だけ、年間10泊からライフスタイルに合わせて保有できる「シェア購入」が可能です。
自分が使いたいときに使う悠々自適な別荘でのくらしができます。
UMITOの購入方法
購入方法はとてもシンプルです。
30泊や10泊、使いたい分だけ選択して購入します。
10泊780万円から購入できます。
全国のUMITOが相互利用可能
UMITOのオーナーは、
自分の所有する利用可能日数を使用することで、他のUMITOにも泊まることができます。
使っていないときはホテルとして貸し出し
使わないときにはホテルとして貸し出され、収益を得ることができます。ホテルとしての運営や建物の管理はUMITOが行い、いつでもメンテナンスの行き届いた状態で利用が可能です。

会社概要
会社名 :株式会社UMITO
英文社名 :UMITO Co., Ltd.
所在地 :東京都千代田区紀尾井町4番1号 ニューオータニガーデンコート 10階
設立日 :2019年4月16日
資本金 :7億9000万円
代表者 :代表取締役 堀鉄平
従業員数 :連結 104名(臨時従業員を含む)
許認可 :小規模不動産特定共同事業 金融庁長官・国土交通大臣(1)第9号
宅地建物取引業 東京都知事 (1)第104443号
旅行業 東京都知事 第3-85545
グループ会社:株式会社UMITOホスピタリティ
HORIJUKU Agency株式会社
事業内容
ホテル、旅館その他施設の会員権の販売、仲介
ホテル、レストランの運営
別荘のサブスクリプションサービスの運営
ウェブサイトの制作、メールマガジンの企画、制作、保守並びに管理
雑誌、書籍販売及び出版業務
インターネットポータルサイトの企画、開発、制作、及び運営
不動産投資の塾の企画・運営及び管理
不動産の売買、仲介、斡旋及びコンサルティング
不動産特定共同事業
<本件に関するお問い合わせ先>
担当部署:UMITO事業部
info-cs@horijuku.jp
お問い合わせの際には、下記についてご記載いただくようお願いいたします。
・氏名 ・連絡先(電話番号、メールアドレス) ・企業名 ・お問い合わせ内容
このプレスリリースには、メディア関係者向けの情報があります
メディアユーザー登録を行うと、企業担当者の連絡先や、イベント・記者会見の情報など様々な特記情報を閲覧できます。※内容はプレスリリースにより異なります。
すべての画像
