全11棟の「リストガーデン宿河原Ⅱ」を販売開始
グローカル総合不動産企業、リスト株式会社(代表取締役社長:北見尚之、本社所在地:神奈川県横浜市)の連結子会社であるリストホームズ株式会社(代表取締役社長:北見尚之、本社所在地:神奈川県横浜市)は、「リストガーデン宿河原Ⅱ」全11棟を開発・分譲し、2022年4月29日より販売を開始します。

「リストガーデン宿河原Ⅱ」は、リストホームズが購入者のライフスタイルに合わせ下記の空間プランニングを施しています。
【STYLE 1 ルーフバルコニー付きプラン】※1号棟
屋上部分には自由に使えるルーフバルコニーを設置。開放感のある空間で気軽にアウトドア気分を味わうことができます。
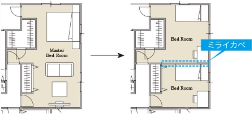
【STYLE 2 可変間取りの「ミライカベ」プラン】※1・6・10・11号棟

【STYLE3 書斎付きプラン】※8号棟
テレワークスペースとしても活用可能な約2畳の書斎を設置。作業に集中したい際に最適なスペースです。
【物件概要】※第2期販売開始日は未定
名称 :リストガーデン宿河原II
所在地 :神奈川県川崎市多摩区長尾5-9
交通 :JR南武線「宿河原」歩10分、JR南武線「久地」歩14分
土地面積(登記):第1期 85.49m2~91.62m2 第2期 85.42m2~95.98m2
建物面積(登記):第1期 95.22m2~101.84m2 第2期 98.33m2~100.81m2
販売棟数 :第1期 5棟 第2期 6棟
販売予定価格 :第1期 5,790万円~6,290万円 第2期 5,890万円~6,490万円
間取り :3LDK~4LDK
完成時期(予定):第1期 2022年6月下旬 第2期 2022年7月末
事業主・売主 :リストホームズ株式会社
URL :https://suumo.jp/ikkodate/kanagawa/sc_kawasakishitama/nc_98025443/〈媒介:リストインターナショナルリアルティ株式会社〉
【リストホームズ株式会社】
所在地 :神奈川県横浜市中区尾上町 4-47
代表 :代表取締役社長 北見 尚之(きたみ ひさし)
設立 :2017年4月12日
事業概要 :戸建住宅の企画、開発、分譲、設計、施工、請負および監理、既存住宅のリフォーム
URL :https://listhomes.jp/
【リストインターナショナルリアルティ株式会社】
所在地 :神奈川県横浜市中区尾上町 4-47
代表 :代表取締役社長 北見 尚之(きたみ ひさし)
設立 :2009年10月16日
事業概要 :不動産の売買・賃貸の仲介、受託販売、不動産賃貸管理、不動産の運用、
管理、資産コンサルティング業務、損害保険代理店
URL :https://www.listsothebysrealty.co.jp/
【リスト株式会社】
所在地 :神奈川県横浜市中区尾上町4-47
代表 :代表取締役社長 北見 尚之(きたみ ひさし)
創業 :1991年5月10日
設立 :2016年5月20日
連結売上高 :350億円(2021年12月期)
事業概要 :持株会社、グループ経営事業
URL :https://www.list.co.jp/
事業説明動画 :https://www.youtube.com/watch?v=04MOhp2zMvU
1991 年、不動産仲介業を行うリスト株式会社を設立。以降、戸建住宅・マンションの開発分譲事業、アセットマネジメント事業など一貫して不動産関連事業を行っております。また、2016 年からは、グループ会社の再編を行い持株会社制度に移行し、当社を中核とした「リストグループ」としての経営体制に移行しました。
2010 年には、現リストインターナショナルリアルティ株式会社において世界最大級のオークションハウスである「サザビーズ」を起源とする不動産仲介ブランド「サザビーズ インターナショナル リアルティ®」の国内独占営業権を取得し、「リスト サザビーズ インターナショナル リアルティ」のブランドで、アメリカ ハワイ州を皮切りに、シンガポール、香港、フィリピン、タイで不動産仲介事業や開発事業を行っております。リストグループでは、これらの事業を通じてお客様に「価値ある不動産」を提供し続けてまいります。
このプレスリリースには、メディア関係者向けの情報があります
メディアユーザーログイン既に登録済みの方はこちら
メディアユーザー登録を行うと、企業担当者の連絡先や、イベント・記者会見の情報など様々な特記情報を閲覧できます。※内容はプレスリリースにより異なります。
すべての画像
